4-Bedroom, 4179 Sq Ft Country Plan with Peninsula/Eating Bar

Color Rendering of this house plan

Images/Plans copyrighted by designer. Photos may reflect homeowner modifications.

About House Plan #135-1020

Sq Ft
4179
Sq Ft
Bedrooms
4
Bedrooms
Bathroom
4
Baths
Half Baths
1
Half Baths
Bedrooms
3
Cars
Bedrooms
1
Stories
Bedrooms
104' 4'
Width
Bedrooms
90
Depth
Starting at$5181.96What's included
STEP 1Bedrooms
STEP 2Bedrooms
STEP 3Bedrooms

Subtotal:$0
Plan Collection

How much will it cost to build?

Estimate your costs based on your location and materials.

Free Cost Instant Estimator

Floor Plans

Floor Plan First Story
Floor Plan First Story
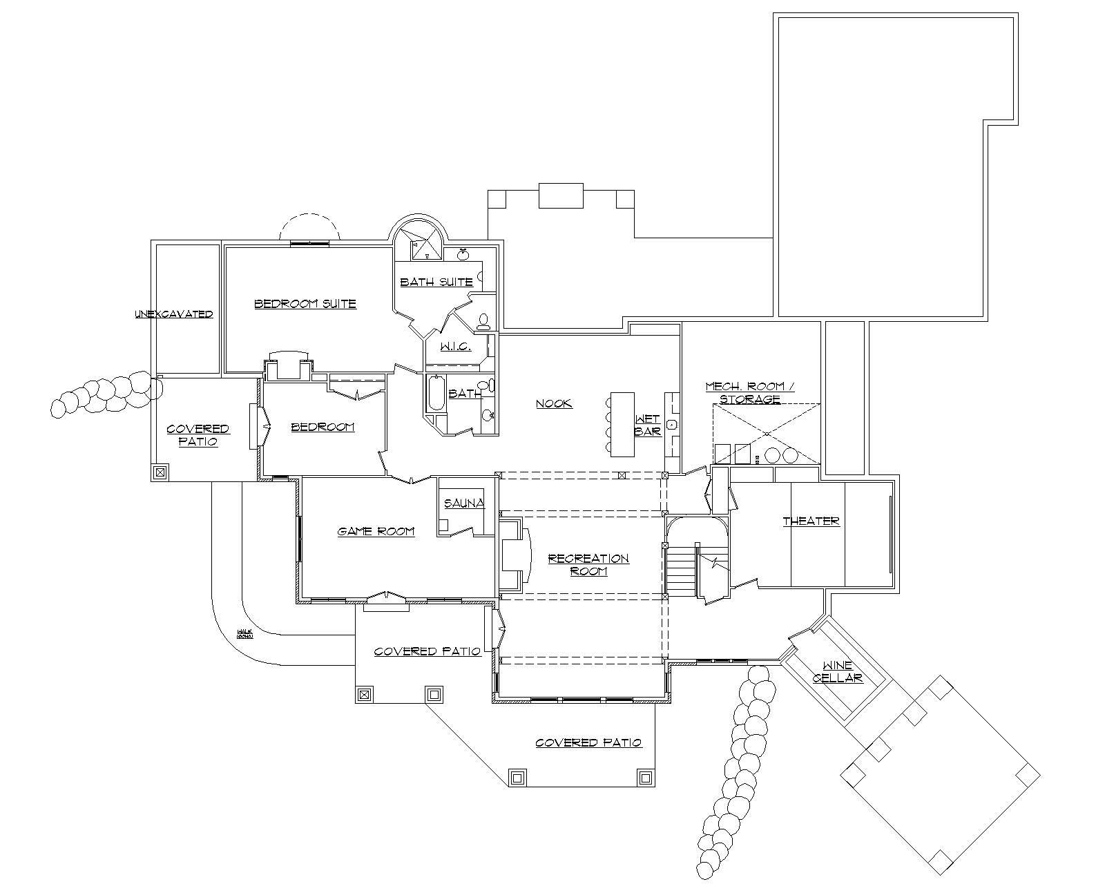
Floor Plan Basement
Floor Plan Basement
Plan Collection

Can I modify this plan?

Yes! This plan can be customized—contact us for a free quote.

House Plan Description

This house plan is a styled in a mountain fashion. The master suite of this room is very big and has an exercise room and covered deck on its sides.

Home Details

Summary
Plan #:135-1020
Starting at:$5181.96
Floors:1
Bedrooms:4
Full Baths:4
Half Baths:1
Garage:
Square Footage
Heated Area:4179 Sq. Ft.
First Floor:4179 Sq. Ft.
Unheated Area:
Basement:3360 Sq. Ft.
Dimensions
Width:104' 4''
Depth:90' 2''
Ridge Height:41'11"' 0''
Architectural Styles
Exterior Wall Material
Rock/StoneWood Siding
Roofing Type
Hip
Roof Pitch
6/12
Special Feature
FireplaceGuest RoomMud RoomGame RoomMain Level LaundryHome TheaterDenWine CellarExercise Room
Garage Type
Side Entry
Fireplaces
Three Fireplaces
Exterior Wall Framing
2x6
Building Lot Type
Flat Site
Kitchen Features
Kitchen IslandNook/Breakfast AreaWalk-in PantryPeninsula/Eating Bar
Porches and Exterior Features
Covered Front PorchCovered Rear PorchPorte-Cochere
Master Suite Features
Main Floor MasterFireplace in MasterMaster BathroomWalk In ClosetPrivate Deck

What’s Included

Most plan sets include the following:

icon text-secondary-400 includedCover

icon text-secondary-400 includedGeneral notes

icon text-secondary-400 includedFoundation/Footing plan

icon text-secondary-400 includedBasement plan

icon text-secondary-400 includedFloor framing plan

icon text-secondary-400 includedMain level plan

icon text-secondary-400 includedUpper-level floor framing (if applicable)

icon text-secondary-400 includedUpper floor plan (if applicable)

icon text-secondary-400 includedRoof framing plan

icon text-secondary-400 includedBuilding sections/details

icon text-secondary-400 includedElectrical layout

What’s Not Included

These items are  NOT included:

icon text-secondary-400 includedArchitectural or Engineering Stamp - handled locally if required.

icon text-secondary-400 includedSite Plan - handled locally when required.

icon text-secondary-400 includedMechanical Drawings (location of heating and air equipment and ductwork) - your subcontractors handle this.

icon text-secondary-400 includedPlumbing Drawings (drawings showing the actual plumbing pipe sizes and locations) - your subcontractors handle this.

icon text-secondary-400 includedEnergy calculations - handled locally when required.

Related House Plans

Plan Collection
Plan Collection
Plan Collection
Plan#153-1095
Starting at$1650
3766
Sq Ft
1
Story
4
Bed
4
Bath
3
Car
Plan Collection
Plan Collection
Plan Collection
Plan#139-1089
Starting at$755
3388
Sq Ft
1
Story
4
Bed
4
Bath
3
Car
Plan Collection
Plan Collection
Plan Collection
Plan#193-1091
Starting at$1850
3416
Sq Ft
1
Story
4
Bed
4
Bath
4
Car
View All

Other Plans By This Designer

Plan Collection
Plan Collection
Plan Collection
Plan#135-1015
Starting at$0
5022
Sq Ft
2
Story
5
Bed
5
Bath
4
Car
Plan Collection
Plan Collection
Plan Collection
Plan#135-1081
Starting at$1725
2759
Sq Ft
1
Story
5
Bed
3.5
Bath
3
Car
Plan Collection
Plan Collection
Plan Collection
Plan#135-1018
Starting at$0
3102
Sq Ft
1
Story
5
Bed
3.5
Bath
3
Car