6-Bedroom, 4356 Sq Ft Craftsman Plan with Walk In Closet

Color Rendering of this house plan

Images/Plans copyrighted by designer. Photos may reflect homeowner modifications.

About House Plan #135-1007

Sq Ft
4356
Sq Ft
Bedrooms
6
Bedrooms
Bathroom
6
Baths
Half Baths
0
Half Baths
Bedrooms
4
Cars
Bedrooms
1
Stories
Bedrooms
110' 2'
Width
Bedrooms
90
Depth
Starting at$5401.44What's included
STEP 1Bedrooms
STEP 2Bedrooms
STEP 3Bedrooms

Subtotal:$0
Plan Collection

How much will it cost to build?

Estimate your costs based on your location and materials.

Free Cost Instant Estimator

Floor Plans

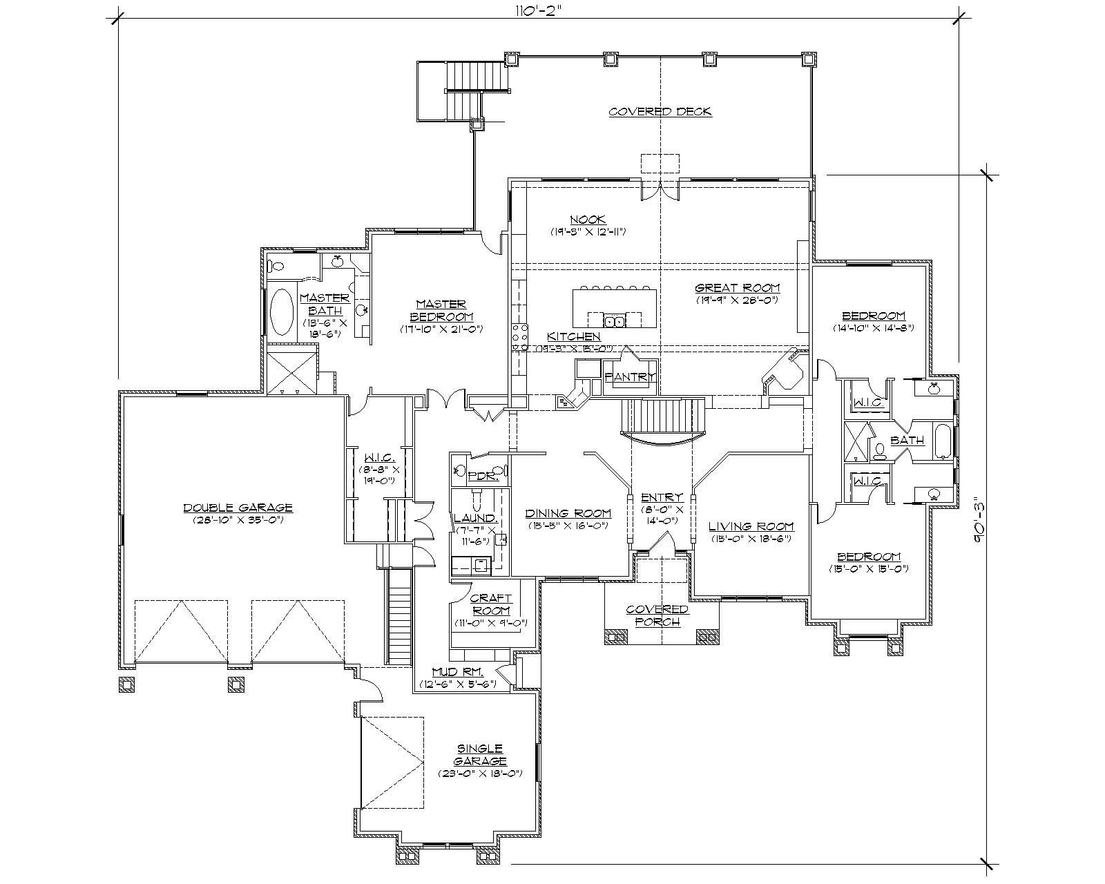
Floor Plan First Story
Floor Plan First Story
Floor Plan Basement
Floor Plan Basement
Plan Collection

Can I modify this plan?

Yes! This plan can be customized—contact us for a free quote.

House Plan Description

This Mountain house plan features a stacked main floor with an almost exact replica on the basement level.

Home Details

Summary
Plan #:135-1007
Starting at:$5401.44
Floors:1
Bedrooms:6
Full Baths:6
Half Baths:0
Garage:
Square Footage
Heated Area:4356 Sq. Ft.
First Floor:4356 Sq. Ft.
Unheated Area:
Basement:4404 Sq. Ft.
Dimensions
Width:110' 2''
Depth:90' 3''
Ridge Height:26'6"' 0''
Architectural Styles
Exterior Wall Material
StuccoRock/Stone
Roofing Type
Gable
Roof Pitch
6/12
Ceiling Height
10 Foot Ceiling
Special Feature
FireplaceDining RoomHome OfficeMud RoomGame RoomMain Level LaundryHome TheaterExercise Room
Garage Type
Side EntryFront Entry
Fireplaces
Two Fireplaces
Exterior Wall Framing
2x6
Building Lot Type
Down Site
Kitchen Features
Kitchen IslandNook/Breakfast AreaWalk-in PantryPeninsula/Eating Bar
Porches and Exterior Features
Covered Front PorchCovered Rear Porch
Master Suite Features
Main Floor MasterMaster BathroomWalk In Closet

What’s Included

Most plan sets include the following:

icon text-secondary-400 includedCover

icon text-secondary-400 includedGeneral notes

icon text-secondary-400 includedFoundation/Footing plan

icon text-secondary-400 includedBasement plan

icon text-secondary-400 includedFloor framing plan

icon text-secondary-400 includedMain level plan

icon text-secondary-400 includedUpper-level floor framing (if applicable)

icon text-secondary-400 includedUpper floor plan (if applicable)

icon text-secondary-400 includedRoof framing plan

icon text-secondary-400 includedBuilding sections/details

icon text-secondary-400 includedElectrical layout

What’s Not Included

These items are  NOT included:

icon text-secondary-400 includedArchitectural or Engineering Stamp - handled locally if required.

icon text-secondary-400 includedSite Plan - handled locally when required.

icon text-secondary-400 includedMechanical Drawings (location of heating and air equipment and ductwork) - your subcontractors handle this.

icon text-secondary-400 includedPlumbing Drawings (drawings showing the actual plumbing pipe sizes and locations) - your subcontractors handle this.

icon text-secondary-400 includedEnergy calculations - handled locally when required.

Related House Plans

Plan Collection
Plan Collection
Plan Collection
Plan#193-1077
Starting at$2250
5106
Sq Ft
1
Story
6
Bed
6.5
Bath
5
Car
Plan Collection
Plan Collection
Plan Collection
Plan#107-1205
Starting at$2700
5084
Sq Ft
1
Story
6
Bed
6.5
Bath
3
Car
View All

Other Plans By This Designer

Plan Collection
Plan Collection
Plan Collection
Plan#135-1015
Starting at$0
5022
Sq Ft
2
Story
5
Bed
5
Bath
4
Car
Plan Collection
Plan Collection
Plan Collection
Plan#135-1081
Starting at$1725
2759
Sq Ft
1
Story
5
Bed
3.5
Bath
3
Car
Plan Collection
Plan Collection
Plan Collection
Plan#135-1018
Starting at$0
3102
Sq Ft
1
Story
5
Bed
3.5
Bath
3
Car