5-Bedroom, 4381 Sq Ft Ranch Plan with Walk-in Pantry

Main image for house plan # 13949

Images/Plans copyrighted by designer. Photos may reflect homeowner modifications.

About House Plan #101-1482

Sq Ft
4381
Sq Ft
Bedrooms
5
Bedrooms
Bathroom
3
Baths
Half Baths
0
Half Baths
Bedrooms
3
Cars
Bedrooms
1
Stories
Bedrooms
74' 0'
Width
Bedrooms
60
Depth
Starting at$1971.45What's included
STEP 1Bedrooms
STEP 2Bedrooms
STEP 3Bedrooms

Subtotal:$0
Plan Collection

How much will it cost to build?

Estimate your costs based on your location and materials.

Free Cost Instant Estimator

Floor Plans

MAIN FLOOR PLAN
MAIN FLOOR PLAN
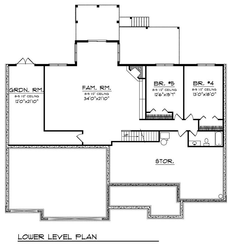
BASEMENT FLOOR PLAN
BASEMENT FLOOR PLAN
Plan Collection

Can I modify this plan?

Yes! This plan can be customized—contact us for a free quote.

House Plan Description

A spacious porch, stone and shingle detailing and graceful columns give this home an unbeatable curb-appeal. Art niches, arched entries, columns and built-ins are all some of the amenities you’ll love as you tour this home. As you enter the home, you’ll love the view of the back yard through the wall of windows in the great room directly ahead. Here you’ll find arched openings flanked by columns that beg you to enter the room A fireplace with built-ins on either side makes the room comfortable and welcoming. The adjacent kitchen/nook area features an eat-in island that creates an eating area...

Home Details

Summary
Plan #:101-1482
Starting at:$1971.45
Floors:1
Bedrooms:5
Full Baths:3
Half Baths:0
Garage:
Square Footage
Heated Area:4381 Sq. Ft.
First Floor:2775 Sq. Ft.
Unheated Area:
Basement:1606 Sq. Ft.
Dimensions
Architectural Styles
Exterior Wall Material
Vinyl SidingRock/StoneShakes
Roof Pitch
10/12
Ceiling Height
10 Foot Ceiling9 Foot Ceiling
Special Feature
Fireplace
Garage Type
Attached Garage
Exterior Wall Framing
2x6

What’s Included

Most plan sets include the following:

icon text-secondary-400 includedFront, Back & Side Elevations

icon text-secondary-400 includedFloor Plans

icon text-secondary-400 includedElectrical Layout (location of outlets, switches, etc. - it does not have wiring schematics)

icon text-secondary-400 includedRoof Plan (Birdseye view)

icon text-secondary-400 includedFoundation Layout

icon text-secondary-400 includedWall & Stair Sections

icon text-secondary-400 includedCross Section

icon text-secondary-400 includedKitchen Layout

icon text-secondary-400 includedGeneral Notes

What’s Not Included

These items are  NOT included:

icon text-secondary-400 includedArchitectural or Engineering Stamp - handled locally if required.

icon text-secondary-400 includedSite Plan - handled locally when required.

icon text-secondary-400 includedMechanical Drawings (location of heating and air equipment and ductwork) - your subcontractors handle this.

icon text-secondary-400 includedPlumbing Drawings (drawings showing the actual plumbing pipe sizes and locations) - your subcontractors handle this.

icon text-secondary-400 includedFraming layouts with beam sizes and locations.

icon text-secondary-400 includedEnergy calculations - handled locally when required.

Related House Plans

Plan Collection
Plan Collection
Plan Collection
Plan#153-2067
Starting at$1850
3580
Sq Ft
1
Story
5
Bed
3.5
Bath
4
Car
Plan Collection
Plan Collection
Plan Collection
Plan#120-2566
Starting at$1475
3927
Sq Ft
1
Story
5
Bed
3.5
Bath
3
Car
Plan Collection
Plan Collection
Plan Collection
Plan#145-1499
Starting at$1200
3625
Sq Ft
1
Story
5
Bed
3
Bath
4
Car
View All

Other Plans By This Designer

Plan Collection
Plan Collection
Plan Collection
Plan#101-2006
Starting at$0
4724
Sq Ft
2
Story
4
Bed
4.5
Bath
4
Car
Plan Collection
Plan Collection
Plan Collection
Plan#101-2024
Starting at$1180
3235
Sq Ft
1
Story
5
Bed
3.5
Bath
3
Car
Plan Collection
Plan Collection
Plan Collection
Plan#101-2028
Starting at$0
4406
Sq Ft
2
Story
4
Bed
3.5
Bath
4
Car