4-Bedroom, 4458 Sq Ft Luxury Home with 2-Story-High Grand Room

Front elevation of Luxury home (ThePlanCollection: House Plan #106-1295)
Plan Collection View Video

Images/Plans copyrighted by designer. Photos may reflect homeowner modifications.

About House Plan #106-1295

Sq Ft
4458
Sq Ft
Bedrooms
4
Bedrooms
Bathroom
4
Baths
Half Baths
1
Half Baths
Bedrooms
5
Cars
Bedrooms
2
Stories
Bedrooms
138' 0'
Width
Bedrooms
73
Depth
Starting at$1695.00What's included
STEP 1Bedrooms
STEP 2Bedrooms
STEP 3Bedrooms

Subtotal:$0
Plan Collection

How much will it cost to build?

Estimate your costs based on your location and materials.

Free Cost Instant Estimator

Floor Plans

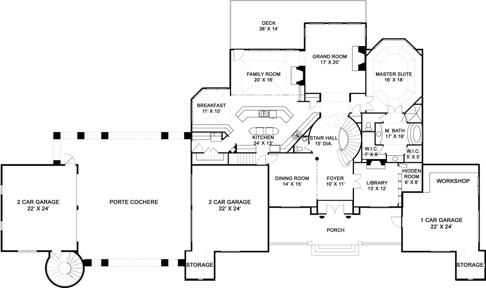
Floor Plan Main Level
Floor Plan Main Level
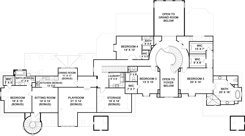
Floor Plan Upper Level
Floor Plan Upper Level
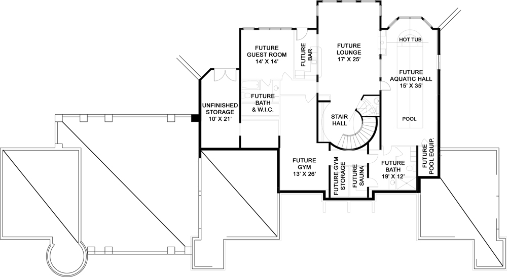
Floor Plan Basement
Floor Plan Basement
Plan Collection

Can I modify this plan?

Yes! This plan can be customized—contact us for a free quote.

Additional Notes from Designer

The plans by this designer do NOT include framing. PLEASE NOTE: An Unlimited Use License is available for purchase through the designer BUT YOU MUST purchase a CAD package!

Please note : 2x4 framing on the main and second level.  Concrete wall and 2x6 framing for the basement

House Plan Description

This luxurious European-influenced manor home has 8503 square feet of total space, finished and unfinished. The 2-story floor plan includes 4 bedrooms, 4.5 baths, plus lots of bonus space for an upper-level in-law or guest suite (with bedroom, bath, sitting room, kitchen, and dining room) and playroom, and lower level guest suite, lounge, sauna, storage, and more.

Home Details

Summary
Plan #:106-1295
Starting at:$1695.00
Floors:2
Bedrooms:4
Full Baths:4
Half Baths:1
Garage:
Square Footage
Heated Area:4458 Sq. Ft.
First Floor:2731 Sq. Ft.
Second Floor:1727 Sq. Ft.
Unheated Area:
Basement:2484 Sq. Ft.
Bonus Room:1561 Sq. Ft.
Dimensions
Architectural Styles
Exterior Wall Material
BrickRock/Stone
Roofing Type
HipGable/DormerMansard
Roofing Material
Asphalt Shingles
Ceiling Height
10 Foot Ceiling9 Foot Ceiling
Special Feature
In Home GymFireplaceSwimming PoolDining RoomGuest RoomBonus RoomFamily RoomGame RoomMain Level LaundryLibraryColor PhotosColor PhotosSplit BathroomStorageVaulted CeilingsVideoOpen Floor PlanInterior PhotosInterior Photos
Garage Type
Attached GarageCourtyard EntrySide Entry
Fireplaces
Three Fireplaces
Exterior Wall Framing
2x62x4Concrete
Building Lot Type
Flat SiteCorner Lot
Kitchen Features
Kitchen IslandNook/Breakfast AreaPeninsula/Eating BarEat-In KitchenSecondary Kitchen
Porches and Exterior Features
Covered Front PorchSundeckPorte-Cochere
Master Suite Features
Main Floor MasterTwo or More Master SuitesMaster BathroomWalk In ClosetPrivate DeckSecond Floor MasterSplit Master Bedroom

What’s Included

Most plan sets include the following:

icon text-secondary-400 includedFoundation Plan

icon text-secondary-400 includedFloor plans

icon text-secondary-400 includedElectrical layout

icon text-secondary-400 includedExterior elevations

icon text-secondary-400 includedCross-section

icon text-secondary-400 includedTypical Call detail

icon text-secondary-400 includedTypical footing detail

icon text-secondary-400 includedMiscellaneous details

icon text-secondary-400 includedWindow/Door sizes

icon text-secondary-400 includedRoof plan

What’s Not Included

These items are  NOT included:

icon text-secondary-400 includedFraming.

icon text-secondary-400 includedArchitectural or Engineering Stamp - handled locally if required.

icon text-secondary-400 includedSite Plan - handled locally when required.

icon text-secondary-400 includedMechanical Drawings (location of heating and air equipment and ductwork) - your subcontractors handle this.

icon text-secondary-400 includedPlumbing Drawings (drawings showing the actual plumbing pipe sizes and locations) - your subcontractors handle this.

icon text-secondary-400 includedEnergy calculations - handled locally when required.

Related House Plans

Plan Collection
Plan Collection
Plan Collection
Plan#161-1017
Starting at$3400
4587
Sq Ft
2
Story
4
Bed
4.5
Bath
4
Car
Plan Collection
Plan Collection
Plan Collection
Plan#107-1015
Starting at$1800
5555
Sq Ft
2
Story
4
Bed
4.5
Bath
3
Car
Plan Collection
Plan Collection
Plan Collection
Plan#180-1020
Starting at$1800
4304
Sq Ft
2
Story
4
Bed
4.5
Bath
3
Car
View All

Other Plans By This Designer

Plan Collection
Plan Collection
Plan Collection
Plan#106-1325
Starting at$4095
8628
Sq Ft
2
Story
7
Bed
7.5
Bath
5
Car
Plan Collection
Plan Collection
Plan Collection
Plan#106-1315
Starting at$1695
2830
Sq Ft
1
Story
3
Bed
2.5
Bath
3
Car
Plan Collection
Plan Collection
Plan Collection
Plan#106-1206
Starting at$4095
8210
Sq Ft
2
Story
6
Bed
6.5
Bath
4
Car