2-Bedroom, 4555 Sq Ft Ranch Plan with Master Bathroom

Main image for house plan # 13739

Images/Plans copyrighted by designer. Photos may reflect homeowner modifications.

About House Plan #101-1211

Sq Ft
4555
Sq Ft
Bedrooms
2
Bedrooms
Bathroom
2
Baths
Half Baths
2
Half Baths
Bedrooms
3
Cars
Bedrooms
1
Stories
Bedrooms
84' 0'
Width
Bedrooms
58
Depth
Starting at$2049.75What's included
STEP 1Bedrooms
STEP 2Bedrooms
STEP 3Bedrooms

Subtotal:$0
Plan Collection

How much will it cost to build?

Estimate your costs based on your location and materials.

Free Cost Instant Estimator

Floor Plans

MAIN FLOOR PLAN
MAIN FLOOR PLAN
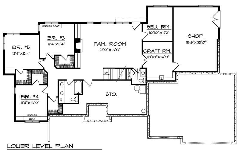
BASEMENT FLOOR PLAN
BASEMENT FLOOR PLAN
Plan Collection

Can I modify this plan?

Yes! This plan can be customized—contact us for a free quote.

House Plan Description

This beautiful stucco home combines traditional elements to create a pleasing exterior. Enter under an arched pediment to a formal foyer where columns and arches define the area and introduce the living room and dining at either side. The family room shares a two-sided fireplace with the study and is open to the gourmet island kitchen and the rear sunroom is inviting year-round. A private bath and large walk-in closet complete a generous bedroom in the master suite. Another bedroom on this level is an ideal guestroom as it is on the opposite side of the home from the master suite. The...

Home Details

Summary
Plan #:101-1211
Starting at:$2049.75
Floors:1
Bedrooms:2
Full Baths:2
Half Baths:2
Garage:
Square Footage
Heated Area:4555 Sq. Ft.
First Floor:2585 Sq. Ft.
Unheated Area:
Basement:1970 Sq. Ft.
Dimensions
Architectural Styles
Exterior Wall Material
Stucco
Roof Pitch
8/12
Ceiling Height
9 Foot Ceiling
Special Feature
FireplaceGuest RoomFamily Room
Garage Type
Attached Garage
Exterior Wall Framing
2x6

What’s Included

Most plan sets include the following:

icon text-secondary-400 includedFront, Back & Side Elevations

icon text-secondary-400 includedFloor Plans

icon text-secondary-400 includedElectrical Layout (location of outlets, switches, etc. - it does not have wiring schematics)

icon text-secondary-400 includedRoof Plan (Birdseye view)

icon text-secondary-400 includedFoundation Layout

icon text-secondary-400 includedWall & Stair Sections

icon text-secondary-400 includedCross Section

icon text-secondary-400 includedKitchen Layout

icon text-secondary-400 includedGeneral Notes

What’s Not Included

These items are  NOT included:

icon text-secondary-400 includedArchitectural or Engineering Stamp - handled locally if required.

icon text-secondary-400 includedSite Plan - handled locally when required.

icon text-secondary-400 includedMechanical Drawings (location of heating and air equipment and ductwork) - your subcontractors handle this.

icon text-secondary-400 includedPlumbing Drawings (drawings showing the actual plumbing pipe sizes and locations) - your subcontractors handle this.

icon text-secondary-400 includedFraming layouts with beam sizes and locations.

icon text-secondary-400 includedEnergy calculations - handled locally when required.

Related House Plans

Plan Collection
Plan Collection
Plan Collection
Plan#161-1091
Starting at$2200
3469
Sq Ft
1
Story
2
Bed
2.5
Bath
4
Car
Plan Collection
Plan Collection
Plan Collection
Plan#161-1160
Starting at$2400
3623
Sq Ft
1
Story
2
Bed
2.5
Bath
3
Car
Plan Collection
Plan Collection
Plan Collection
Plan#161-1118
Starting at$2200
3526
Sq Ft
1
Story
2
Bed
2.5
Bath
3
Car
View All

Other Plans By This Designer

Plan Collection
Plan Collection
Plan Collection
Plan#101-2006
Starting at$0
4724
Sq Ft
2
Story
4
Bed
4.5
Bath
4
Car
Plan Collection
Plan Collection
Plan Collection
Plan#101-2024
Starting at$1180
3235
Sq Ft
1
Story
5
Bed
3.5
Bath
3
Car
Plan Collection
Plan Collection
Plan Collection
Plan#101-2028
Starting at$0
4406
Sq Ft
2
Story
4
Bed
3.5
Bath
4
Car