878 Sq Ft Garage with 487 Sq Ft Upper Level Office

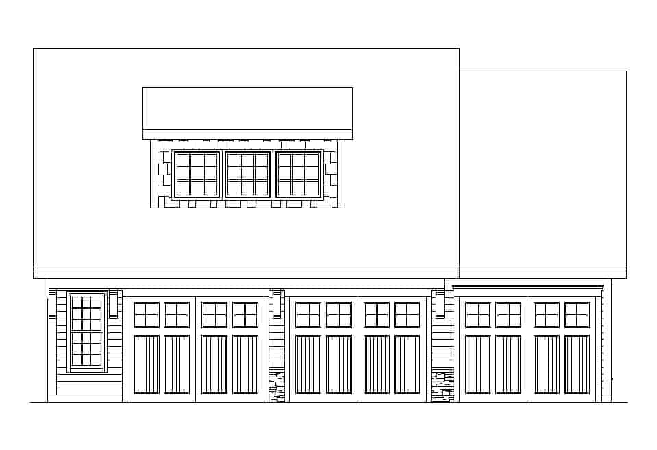
Front elevation of Garage home (ThePlanCollection: House Plan #163-1077)

Images/Plans copyrighted by designer. Photos may reflect homeowner modifications.

About House Plan #163-1077

Sq Ft
487
Sq Ft
Bedrooms
0
Bedrooms
Bathroom
0
Baths
Half Baths
0
Half Baths
Bedrooms
3
Cars
Bedrooms
2
Stories
Bedrooms
37' 0'
Width
Bedrooms
24
Depth
Starting at$425.00What's included
STEP 1Bedrooms
STEP 2Bedrooms
STEP 3Bedrooms

Subtotal:$0
Plan Collection

How much will it cost to build?

Estimate your costs based on your location and materials.

Free Cost Instant Estimator

Floor Plans

Main Level
Main Level
Upper Level
Upper Level
Plan Collection

Can I modify this plan?

Yes! This plan can be customized—contact us for a free quote.

Additional Notes from Designer

Please Note: There might be a 4-5 day delay in getting the sales orders out due to updates being made to the designer's plans.

Garage (main level) has 878 square feet, and the upstairs has 487 square feet.

House Plan Description

This adorable detached garage plan is perfect as an addition to a home with 487-square-foot of heated and cooled living space on the second level, which can be used as an office or a guest room. The 878-square-foot 3-car garage with a side entrance has lots of windows around that exude natural light.  

Home Details

Summary
Plan #:163-1077
Starting at:$425.00
Floors:2
Bedrooms:0
Full Baths:0
Half Baths:0
Garage:
Square Footage
Heated Area:487 Sq. Ft.
Second Floor:487 Sq. Ft.
Unheated Area:
Garage:878 Sq. Ft.
Dimensions
Architectural Styles
Exterior Wall Material
Vinyl SidingWood Siding
Roofing Type
Gable/Dormer
Roofing Material
Asphalt Shingles
Roof Pitch
12/12
Ceiling Height
8 Foot Ceiling
Special Feature
Home OfficeColor PhotosStorageWorkshop
Garage Type
Detached GarageFront Entry
Exterior Wall Framing
2x4
Building Lot Type
Narrow Lot Design

What’s Included

Most plan sets include the following:

icon text-secondary-400 includedFLOOR PLAN: Showing all dimensions, window and door locations, laminated beams, columns, floor materials, ceiling heights, fireplace size, and specifications.

icon text-secondary-400 includedFOUNDATION PLAN: Dimensioned plan detailing the location and size of footings, slabs, reinforcing steel, and other structural elements that are required to support the load of the upper floors.

icon text-secondary-400 includedROOF PLAN: Dimensioned plan showing the elements that make up the roof, including notation of spacing and schematics of peaks and valleys.

icon text-secondary-400 includedFRONT, REAR, AND SIDE ELEVATIONS:The front, rear, and side elevations of the house as drawn. Shows placement of doors & windows on exterior of house, as well as roof pitches, ridge heights, and locations of chimney, exterior vents, etc. The elevations show the positioning of the final grade of the lot, exterior finishes, and other details that are necessary to give the home exterior architectural styling.

icon text-secondary-400 includedCROSS SECTIONS AND INTERIOR DETAILS:Explain certain special conditions more appropriately. A cross section is basically a view of the home (or parts of the home) if it were sliced down the center. These details can be helpful for the contractor.Includes cabinet details and typical details.

What’s Not Included

These items are  NOT included:

icon text-secondary-400 includedArchitectural or Engineering Stamp - handled locally if required.

icon text-secondary-400 includedSite Plan - handled locally when required.

icon text-secondary-400 includedElectrical Layout (location of light fixtures, switches, and fans)- Although may be available for an additional charge.

icon text-secondary-400 includedMechanical Drawings (location of heating and air equipment and ductwork) - your subcontractors handle this.

icon text-secondary-400 includedPlumbing Drawings (drawings showing the actual plumbing pipe sizes and locations) - your subcontractors handle this.

icon text-secondary-400 includedEnergy calculations - handled locally when required.

Related House Plans

Plan Collection
Plan Collection
Plan Collection
Plan#126-1166
Starting at$480
416
Sq Ft
2
Story
0
Bed
0
Bath
0
Car
Plan Collection
Plan Collection
Plan Collection
Plan#126-1097
Starting at$480
587
Sq Ft
2
Story
0
Bed
0
Bath
0
Car
View All

Other Plans By This Designer

Plan Collection
Plan Collection
Plan Collection
Plan#163-1055
Starting at$1230
2618
Sq Ft
1
Story
5
Bed
4.5
Bath
3
Car
Plan Collection
Plan Collection
Plan Collection
Plan#163-1041
Starting at$600
906
Sq Ft
2
Story
1
Bed
1
Bath
2
Car
Plan Collection
Plan Collection
Plan Collection
Plan#163-1052
Starting at$1150
4225
Sq Ft
1
Story
5
Bed
4.5
Bath
3
Car