5-Bedroom, 5460 Sq Ft French Plan with Covered Front Porch

Front elevation of French home (ThePlanCollection: House Plan #120-2473)

Images/Plans copyrighted by designer. Photos may reflect homeowner modifications.

About House Plan #120-2473

Sq Ft
5460
Sq Ft
Bedrooms
5
Bedrooms
Bathroom
5
Baths
Half Baths
2
Half Baths
Bedrooms
4
Cars
Bedrooms
1.5
Stories
Bedrooms
134' 2'
Width
Bedrooms
93
Depth
Starting at$3690.00What's included
STEP 1Bedrooms
STEP 2Bedrooms
STEP 3Bedrooms

Subtotal:$0
Plan Collection

How much will it cost to build?

Estimate your costs based on your location and materials.

Free Cost Instant Estimator

Floor Plans

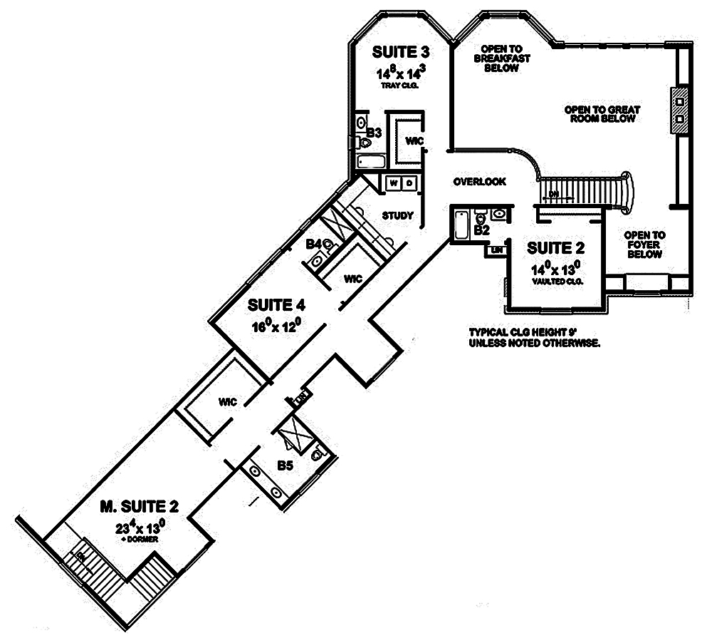
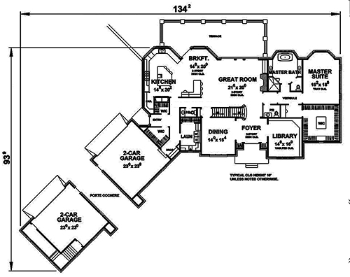
Floor Plan Main Level
Floor Plan Main Level
Floor Plan Upper Level
Floor Plan Upper Level
Floor Plan Basement
Floor Plan Basement
Plan Collection

Can I modify this plan?

Yes! This plan can be customized—contact us for a free quote.

Additional Notes from Designer

PLEASE NOTE! If you order an optional foundation and a materials list, the materials list will NOT include the optional foundation, only the standard foundation. The designer can provide an updated materials list for a fee, so please ask for a quote!

House Plan Description

This lovely French style home with Georgian influences (House Plan #120-2473) has 5460 square feet of living space. The 1.5 story floor plan includes 5 bedrooms.

Home Details

Summary
Plan #:120-2473
Starting at:$3690.00
Floors:1.5
Bedrooms:5
Full Baths:5
Half Baths:2
Garage:
Square Footage
Heated Area:5460 Sq. Ft.
First Floor:3323 Sq. Ft.
Second Floor:2137 Sq. Ft.
Unheated Area:
Basement:2434 Sq. Ft.
Garage:1291 Sq. Ft.
Dimensions
Width:134' 2''
Depth:93' 9''
Architectural Styles
Exterior Wall Material
BrickRock/Stone
Roofing Type
Gable
Roofing Material
Asphalt Shingles
Roof Pitch
Other
Ceiling Height
10 Foot Ceiling9 Foot Ceiling
Special Feature
FireplaceDining RoomGuest RoomGame RoomMain Level LaundryLibraryHome TheaterMedia RoomStorageDenExercise RoomOpen Floor Plan
Garage Type
Attached GarageRear Entry
Fireplaces
One Fireplace
Exterior Wall Framing
2x6
Kitchen Features
Kitchen IslandButler's PantryNook/Breakfast AreaPeninsula/Eating BarEat-In Kitchen
Porches and Exterior Features
Covered Front PorchCovered Rear PorchPorte-Cochere
Master Suite Features
Main Floor MasterMaster BathroomWalk In ClosetSplit Master Bedroom

What’s Included

Most plan sets include the following:

icon text-secondary-400 includedCover Page. Each home plan features the front elevation and informative reference sections including, general notes and design criteria*, abbreviations, and symbols for your plan.

icon text-secondary-400 includedElevations. Scaled elevations for the front, rear, and sides are provided. All elevations are detailed and an aerial view of the roof is provided.

icon text-secondary-400 includedFoundations. Foundations are fully engineered for each design, whether slab or basement.

icon text-secondary-400 includedMain Level Floor Plan

icon text-secondary-400 includedSecond Level Floor Plan

icon text-secondary-400 includedElectrical layout

icon text-secondary-400 includedWall & Stair Sections

What’s Not Included

These items are  NOT included:

icon text-secondary-400 includedArchitectural or Engineering Stamp - handled locally if required.

icon text-secondary-400 includedSite Plan - handled locally when required.

icon text-secondary-400 includedMechanical Drawings (location of heating and air equipment and ductwork) - your subcontractors handle this.

icon text-secondary-400 includedPlumbing Drawings (drawings showing the actual plumbing pipe sizes and locations) - your subcontractors handle this.

icon text-secondary-400 includedEnergy calculations - handled locally when required.

Related House Plans

Plan Collection
Plan Collection
Plan Collection
Plan#189-1140
Starting at$1595
4455
Sq Ft
1.5
Story
5
Bed
5.5
Bath
3
Car
Plan Collection
Plan Collection
Plan Collection
Plan#107-1028
Starting at$1800
5592
Sq Ft
1.5
Story
5
Bed
5.5
Bath
3
Car
Plan Collection
Plan Collection
Plan Collection
Plan#195-1161
Starting at$3295
6065
Sq Ft
1.5
Story
5
Bed
5.5
Bath
3
Car
View All

Other Plans By This Designer

Plan Collection
Plan Collection
Plan Collection
Plan#120-2655
Starting at$1005
800
Sq Ft
1
Story
2
Bed
1
Bath
0
Car
Plan Collection
Plan Collection
Plan Collection
Plan#120-2696
Starting at$1105
1642
Sq Ft
1
Story
3
Bed
2.5
Bath
2
Car
Plan Collection
Plan Collection
Plan Collection
Plan#120-1117
Starting at$1105
1699
Sq Ft
2
Story
3
Bed
2.5
Bath
2
Car