5-Bedroom, 5642 Sq Ft Mediterranean Plan with Split Bathroom

Front elevation of Mediterranean home (ThePlanCollection: House Plan #107-1196)

Images/Plans copyrighted by designer. Photos may reflect homeowner modifications.

About House Plan #107-1196

Sq Ft
5642
Sq Ft
Bedrooms
5
Bedrooms
Bathroom
5
Baths
Half Baths
2
Half Baths
Bedrooms
3
Cars
Bedrooms
2
Stories
Bedrooms
69' 8'
Width
Bedrooms
106
Depth
Starting at$1800.00What's included
STEP 1Bedrooms
STEP 2Bedrooms
STEP 3Bedrooms

Subtotal:$0
Plan Collection

How much will it cost to build?

Estimate your costs based on your location and materials.

Free Cost Instant Estimator

Floor Plans

Main Level
Main Level
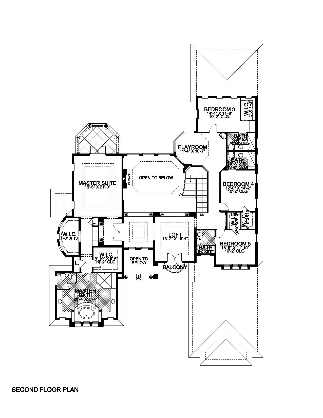
Second Floor
Second Floor
Plan Collection

Can I modify this plan?

Yes! This plan can be customized—contact us for a free quote.

House Plan Description

Luxury House Plan features include concrete-block exterior construction; covered entry with round columns to French doors; foyer with coffered ceiling open to dining and living rooms as well as library; round columns to living room with fireplace and open to upper floor; dining room with coffered ceiling; kitchen with island and walk-in pantry and open to cafe; family room with coffered ceiling and access to rear covered patio bedroom 2 with private bath and access to rear patio library with coffered ceiling; upper floor master suite with coffered...

Home Details

Summary
Plan #:107-1196
Starting at:$1800.00
Floors:2
Bedrooms:5
Full Baths:5
Half Baths:2
Garage:
Square Footage
Heated Area:5642 Sq. Ft.
First Floor:2882 Sq. Ft.
Second Floor:2760 Sq. Ft.
Unheated Area:
Garage:1145 Sq. Ft.
Dimensions
Width:69' 8''
Depth:106' 8''
Architectural Styles
Exterior Wall Material
Stucco
Roofing Material
Tiles
Ceiling Height
9 Foot Ceiling
Special Feature
Mother in law apartmentFireplaceDining RoomFamily RoomGame RoomMain Level LaundryLibraryMedia RoomColor PhotosLoftSplit Bathroom
Garage Type
Attached GarageCourtyard Entry
Exterior Wall Framing
Concrete
Building Lot Type
View Lot
Kitchen Features
Kitchen IslandWalk-in PantryPeninsula/Eating Bar
Porches and Exterior Features
CourtyardCovered Front PorchCovered Rear Porch
Master Suite Features
Master BathroomWalk In ClosetPrivate DeckSecond Floor Master

What’s Included

Most plan sets include the following:

icon text-secondary-400 includedFloor plan

icon text-secondary-400 includedKitchen & Bath layout

icon text-secondary-400 includedExterior elevations

icon text-secondary-400 includedSections

icon text-secondary-400 includedStructural plans

icon text-secondary-400 includedFoundation plan

icon text-secondary-400 includedRoof plan

icon text-secondary-400 includedMechanical layout

icon text-secondary-400 includedElectrical layout

What’s Not Included

These items are  NOT included:

icon text-secondary-400 includedArchitectural or Engineering Stamp - handled locally if required.

icon text-secondary-400 includedSite Plan - handled locally when required.

icon text-secondary-400 includedMechanical Drawings (location of heating and air equipment and ductwork) - your subcontractors handle this.

icon text-secondary-400 includedPlumbing Drawings (drawings showing the actual plumbing pipe sizes and locations) - your subcontractors handle this.

icon text-secondary-400 includedEnergy calculations - handled locally when required.

Related House Plans

Plan Collection
Plan Collection
Plan Collection
Plan#116-1106
Starting at$0
5165
Sq Ft
2
Story
5
Bed
5.5
Bath
3
Car
Plan Collection
Plan Collection
Plan Collection
Plan#161-1077
Starting at$4500
6563
Sq Ft
2
Story
5
Bed
5.5
Bath
5
Car
Plan Collection
Plan Collection
Plan Collection
Plan#161-1048
Starting at$2950
6495
Sq Ft
2
Story
5
Bed
5.5
Bath
3
Car
View All

Other Plans By This Designer

Plan Collection
Plan Collection
Plan Collection
Plan#107-1002
Starting at$1900
6175
Sq Ft
2
Story
6
Bed
7.5
Bath
4
Car
Plan Collection
Plan Collection
Plan Collection
Plan#107-1096
Starting at$1150
1619
Sq Ft
1
Story
3
Bed
2
Bath
2
Car
Plan Collection
Plan Collection
Plan Collection
Plan#107-1182
Starting at$1900
6412
Sq Ft
2
Story
7
Bed
7.5
Bath
3
Car