6-Bedroom, 5700 Sq Ft European Plan with Master Bathroom

Main image for house plan # 16171

Images/Plans copyrighted by designer. Photos may reflect homeowner modifications.

About House Plan #106-1067

Sq Ft
5700
Sq Ft
Bedrooms
6
Bedrooms
Bathroom
4
Baths
Half Baths
2
Half Baths
Bedrooms
3
Cars
Bedrooms
2
Stories
Bedrooms
118' 0'
Width
Bedrooms
53
Depth
Starting at$1695.00What's included
STEP 1Bedrooms
STEP 2Bedrooms
STEP 3Bedrooms

Subtotal:$0
Plan Collection

How much will it cost to build?

Estimate your costs based on your location and materials.

Free Cost Instant Estimator

Floor Plans

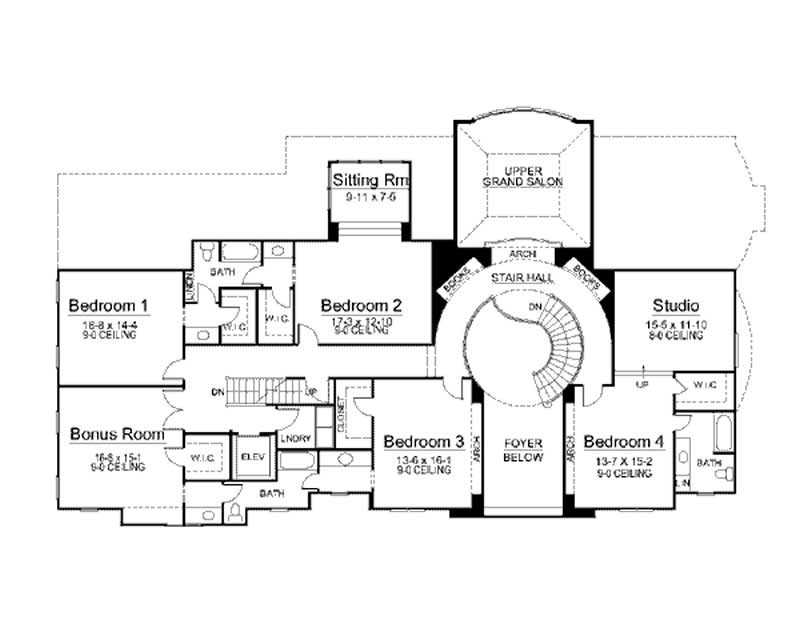
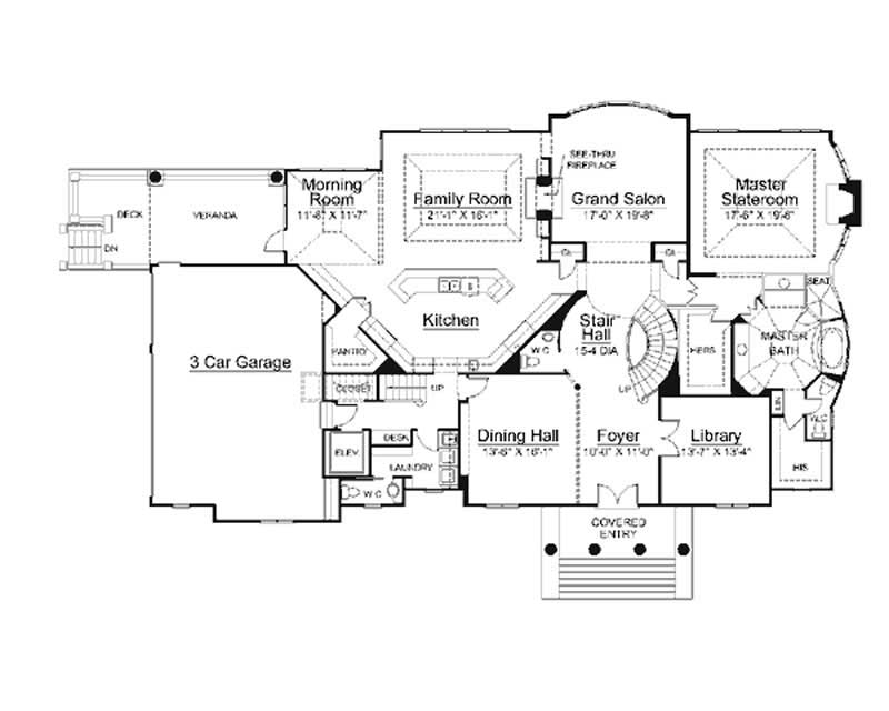
MAIN FLOOR PLAN
MAIN FLOOR PLAN
SECOND FLOOR PLAN
SECOND FLOOR PLAN
Plan Collection

Can I modify this plan?

Yes! This plan can be customized—contact us for a free quote.

Additional Notes from Designer

The plans by this designer do NOT include framing. PLEASE NOTE: An Unlimited Use License is available for purchase through the designer BUT YOU MUST purchase a CAD package!

House Plan Description

This is a traditional European style home with a beautiful hallway from the foyer leading to your grand salon. The master stateroom is very cozy with a personal fireplace and the bathroom is huge. The kitchen gives you plenty of room to prepare those home made meals. The home has two sets of stairs and an elevator. Upstairs there are 4 bedrooms a bonus room and studio.

Home Details

Summary
Plan #:106-1067
Starting at:$1695.00
Floors:2
Bedrooms:6
Full Baths:4
Half Baths:2
Garage:
Square Footage
Heated Area:5700 Sq. Ft.
First Floor:3226 Sq. Ft.
Second Floor:2474 Sq. Ft.
Unheated Area:
Dimensions
Architectural Styles
Exterior Wall Material
StuccoRock/StoneFiber Cement Product
Special Feature
FireplaceBonus Room
Garage Type
Side Entry
Fireplaces
Two Fireplaces

What’s Included

Most plan sets include the following:

icon text-secondary-400 includedFoundation Plan

icon text-secondary-400 includedFloor plans

icon text-secondary-400 includedElectrical layout

icon text-secondary-400 includedExterior elevations

icon text-secondary-400 includedCross-section

icon text-secondary-400 includedTypical Call detail

icon text-secondary-400 includedTypical footing detail

icon text-secondary-400 includedMiscellaneous details

icon text-secondary-400 includedWindow/Door sizes

icon text-secondary-400 includedRoof plan

What’s Not Included

These items are  NOT included:

icon text-secondary-400 includedFraming.

icon text-secondary-400 includedArchitectural or Engineering Stamp - handled locally if required.

icon text-secondary-400 includedSite Plan - handled locally when required.

icon text-secondary-400 includedMechanical Drawings (location of heating and air equipment and ductwork) - your subcontractors handle this.

icon text-secondary-400 includedPlumbing Drawings (drawings showing the actual plumbing pipe sizes and locations) - your subcontractors handle this.

icon text-secondary-400 includedEnergy calculations - handled locally when required.

Related House Plans

Plan Collection
Plan Collection
Plan Collection
Plan#196-1023
Starting at$2420
6858
Sq Ft
2
Story
6
Bed
4.5
Bath
3
Car
Plan Collection
Plan Collection
Plan Collection
Plan#107-1058
Starting at$1900
6170
Sq Ft
2
Story
6
Bed
4.5
Bath
3
Car
Plan Collection
Plan Collection
Plan Collection
Plan#161-1148
Starting at$3850
4966
Sq Ft
2
Story
6
Bed
4.5
Bath
3
Car
View All

Other Plans By This Designer

Plan Collection
Plan Collection
Plan Collection
Plan#106-1325
Starting at$4095
8628
Sq Ft
2
Story
7
Bed
7.5
Bath
5
Car
Plan Collection
Plan Collection
Plan Collection
Plan#106-1315
Starting at$1695
2830
Sq Ft
1
Story
3
Bed
2.5
Bath
3
Car
Plan Collection
Plan Collection
Plan Collection
Plan#106-1206
Starting at$4095
8210
Sq Ft
2
Story
6
Bed
6.5
Bath
4
Car