5-Bedroom, 6116 Sq Ft Luxury Plan with Nook/Breakfast Area

Front Elevation for AA6116-0515 luxury house plans.

Images/Plans copyrighted by designer. Photos may reflect homeowner modifications.

About House Plan #107-1038

Sq Ft
6116
Sq Ft
Bedrooms
5
Bedrooms
Bathroom
6
Baths
Half Baths
1
Half Baths
Bedrooms
3
Cars
Bedrooms
2
Stories
Bedrooms
69' 10'
Width
Bedrooms
59
Depth
Starting at$1900.00What's included
STEP 1Bedrooms
STEP 2Bedrooms
STEP 3Bedrooms

Subtotal:$0
Plan Collection

How much will it cost to build?

Estimate your costs based on your location and materials.

Free Cost Instant Estimator

Floor Plans

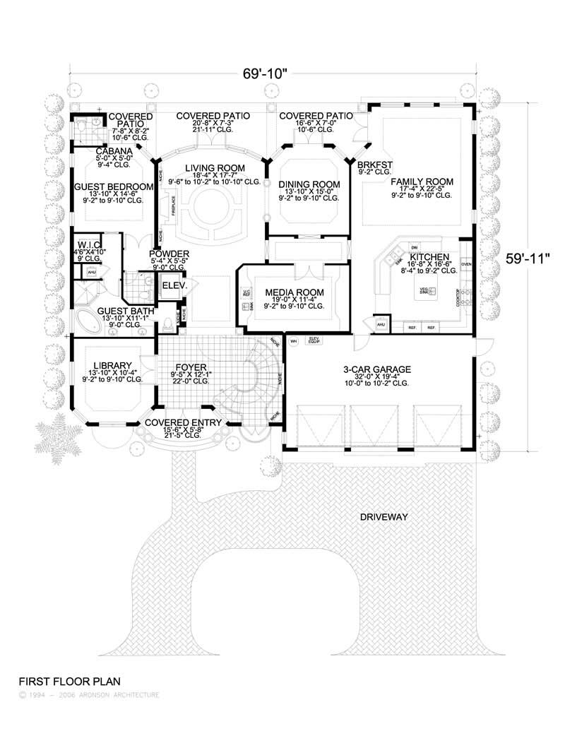
MAIN LEVEL FLOOR PLAN
MAIN LEVEL FLOOR PLAN
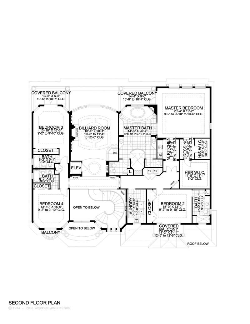
SECOND LEVEL FLOOR PLAN
SECOND LEVEL FLOOR PLAN
Plan Collection

Can I modify this plan?

Yes! This plan can be customized—contact us for a free quote.

House Plan Description

Luxury HousePlans #107-1038 have beautiful front columns. This home plan is Two Story, with 5 bedrooms, 5 bathrooms plus a cabana bath, and a three car garage. These Classic Mediterranean plans are Luxurious inside and out, having a towering covered entrance, eight foot French doors with arched transom accent the entrance, covered balconies, and a residential elevator. The first floor suite has a private entrance, a cozy library makes a perfect retreat, and the media room has a wet bar and billiard room. The huge island kitchen has an eating bar that opens to the Family Room. The Luxurious...

Home Details

Summary
Plan #:107-1038
Starting at:$1900.00
Floors:2
Bedrooms:5
Full Baths:6
Half Baths:1
Garage:
Square Footage
Heated Area:6116 Sq. Ft.
First Floor:2968 Sq. Ft.
Second Floor:3148 Sq. Ft.
Unheated Area:
Garage:656 Sq. Ft.
Dimensions
Width:69' 10''
Depth:59' 10''
Ridge Height:33'0' 0''
Architectural Styles
Exterior Wall Material
Stucco
Roofing Type
Hip
Roofing Material
Other Composites
Roof Pitch
5/12
Special Feature
Mother in law apartmentFireplaceDining RoomGuest RoomFamily RoomGame RoomApartmentLibraryMedia RoomElevatorBalconySecond Level Laundry
Garage Type
Attached GarageFront Entry
Fireplaces
One Fireplace
Building Lot Type
Flat Site
Kitchen Features
Kitchen IslandNook/Breakfast AreaWalk-in PantryPeninsula/Eating Bar
Porches and Exterior Features
Covered Front PorchCovered Rear PorchSundeck
Master Suite Features
Main Floor MasterTwo or More Master SuitesMaster BathroomWalk In ClosetSitting AreaPrivate DeckSecond Floor Master

What’s Included

Most plan sets include the following:

icon text-secondary-400 includedFloor plan

icon text-secondary-400 includedKitchen & Bath layout

icon text-secondary-400 includedExterior elevations

icon text-secondary-400 includedSections

icon text-secondary-400 includedStructural plans

icon text-secondary-400 includedFoundation plan

icon text-secondary-400 includedRoof plan

icon text-secondary-400 includedMechanical layout

icon text-secondary-400 includedElectrical layout

What’s Not Included

These items are  NOT included:

icon text-secondary-400 includedArchitectural or Engineering Stamp - handled locally if required.

icon text-secondary-400 includedSite Plan - handled locally when required.

icon text-secondary-400 includedMechanical Drawings (location of heating and air equipment and ductwork) - your subcontractors handle this.

icon text-secondary-400 includedPlumbing Drawings (drawings showing the actual plumbing pipe sizes and locations) - your subcontractors handle this.

icon text-secondary-400 includedEnergy calculations - handled locally when required.

Related House Plans

Plan Collection
Plan Collection
Plan Collection
Plan#175-1073
Starting at$4500
6780
Sq Ft
2
Story
5
Bed
6.5
Bath
4
Car
Plan Collection
Plan Collection
Plan Collection
Plan#193-1125
Starting at$4000
7519
Sq Ft
2
Story
5
Bed
6.5
Bath
5
Car
Plan Collection
Plan Collection
Plan Collection
Plan#107-1192
Starting at$1800
5872
Sq Ft
2
Story
5
Bed
6
Bath
3
Car
View All

Other Plans By This Designer

Plan Collection
Plan Collection
Plan Collection
Plan#107-1002
Starting at$1900
6175
Sq Ft
2
Story
6
Bed
7.5
Bath
4
Car
Plan Collection
Plan Collection
Plan Collection
Plan#107-1096
Starting at$1150
1619
Sq Ft
1
Story
3
Bed
2
Bath
2
Car
Plan Collection
Plan Collection
Plan Collection
Plan#107-1182
Starting at$1900
6412
Sq Ft
2
Story
7
Bed
7.5
Bath
3
Car