5-Bedroom, 6455 Sq Ft Spanish Plan with Dining Room

Front elevation of Spanish home (ThePlanCollection: House Plan #108-1567)

Images/Plans copyrighted by designer. Photos may reflect homeowner modifications.

About House Plan #108-1567

Sq Ft
6455
Sq Ft
Bedrooms
5
Bedrooms
Bathroom
6
Baths
Half Baths
2
Half Baths
Bedrooms
2
Cars
Bedrooms
2
Stories
Bedrooms
136' 0'
Width
Bedrooms
55
Depth
Starting at$3950.00What's included
STEP 1Bedrooms
STEP 2Bedrooms
STEP 3Bedrooms

Subtotal:$0
Plan Collection

How much will it cost to build?

Estimate your costs based on your location and materials.

Free Cost Instant Estimator

Floor Plans

Upper Level
Upper Level
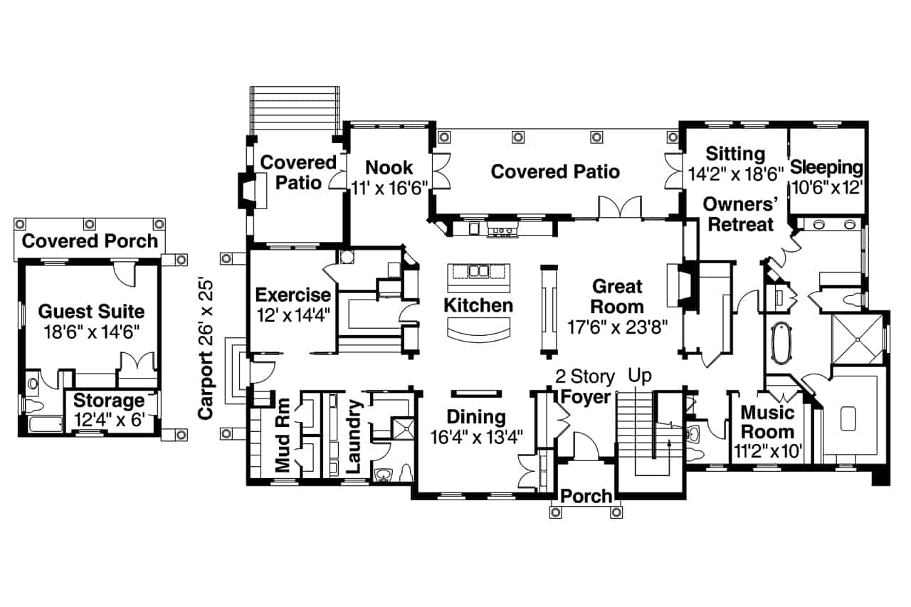
MAIN FLOOR PLAN
MAIN FLOOR PLAN
Garage
Garage
Plan Collection

Can I modify this plan?

Yes! This plan can be customized—contact us for a free quote.

Additional Notes from Designer

PLEASE NOTE!! For this designer, The PDF that comes with the PRINT Packages (5 set+PDF and 8 set+PDF) is NOT Modifiable - it is for printing ONLY! PLEASE NOTE!! Optional Foundations (foundations that cost extra money) will take 5-10 business days to complete.

House Plan Description

Everyone in your family will surely fall in love with this Spanish-style house and make it their top choice. This luxurious, highly attractive, and desirable home gives you a total heated area of 6,455 square feet (which includes a 500SF guest cottage).  The multiple roof levels and natural stone on the walls gave this house its great curb appeal.  The oversized and detached 1,238-square-foot 2-car garage with a separate bay for the workshop and has a very flexible layout making the possibility of adding workshop or bedrooms. 

A covered entry porch will...

Home Details

Summary
Plan #:108-1567
Starting at:$3950.00
Floors:2
Bedrooms:5
Full Baths:6
Half Baths:2
Garage:
Square Footage
Heated Area:6455 Sq. Ft.
First Floor:3819 Sq. Ft.
Second Floor:2136 Sq. Ft.
Unheated Area:
Garage:1238 Sq. Ft.
Dimensions
Ridge Height:31' 0''
Architectural Styles
Exterior Wall Material
StuccoRock/Stone
Roofing Type
Hip
Roofing Material
Tiles
Roof Pitch
5/12
Ceiling Height
10 Foot Ceiling
Special Feature
FireplaceDining RoomMud RoomFamily RoomMain Level LaundryColor PhotosColor PhotosSplit BathroomStorageWorkshopBalconyExercise RoomOpen Floor PlanInterior PhotosInterior Photos
Garage Type
Detached GarageFront Entry
Fireplaces
Two Fireplaces
Exterior Wall Framing
2x6
Kitchen Features
Kitchen IslandNook/Breakfast AreaWalk-in PantryOutdoor KitchenPeninsula/Eating BarEat-In Kitchen
Porches and Exterior Features
CourtyardCovered Front PorchCovered Rear Patio
Master Suite Features
Master BathroomWalk In ClosetSecond Floor Master

What’s Included

Most plan sets include the following:

icon text-secondary-400 included Artist’s rendering of the home,

icon text-secondary-400 included Front/Rear/Left and Right Elevations,

icon text-secondary-400 included Main floor plan, Second or Basement floor plans (if applicable),

icon text-secondary-400 included Foundation plan and detail,

icon text-secondary-400 included Floor framing plan,

icon text-secondary-400 included Roof framing plan, supporting details and

icon text-secondary-400 included Electric layout.

What’s Not Included

These items are  NOT included:

icon text-secondary-400 includedArchitectural or Engineering Stamp - handled locally if required.

icon text-secondary-400 includedSite Plan - handled locally when required.

icon text-secondary-400 includedMechanical Drawings (location of heating and air equipment and ductwork) - your subcontractors handle this.

icon text-secondary-400 includedPlumbing Drawings (drawings showing the actual plumbing pipe sizes and locations) - your subcontractors handle this.

icon text-secondary-400 includedEnergy calculations - handled locally when required.

Related House Plans

Plan Collection
Plan Collection
Plan Collection
Plan#175-1073
Starting at$4500
6780
Sq Ft
2
Story
5
Bed
6.5
Bath
4
Car
Plan Collection
Plan Collection
Plan Collection
Plan#193-1125
Starting at$4000
7519
Sq Ft
2
Story
5
Bed
6.5
Bath
5
Car
Plan Collection
Plan Collection
Plan Collection
Plan#107-1192
Starting at$1800
5872
Sq Ft
2
Story
5
Bed
6
Bath
3
Car
View All

Other Plans By This Designer

Plan Collection
Plan Collection
Plan Collection
Plan#108-1923
Starting at$1150
2928
Sq Ft
1
Story
4
Bed
3
Bath
2
Car
Plan Collection
Plan Collection
Plan Collection
Plan#108-1538
Starting at$725
1216
Sq Ft
2
Story
2
Bed
2
Bath
0
Car
Plan Collection
Plan Collection
Plan Collection
Plan#108-2031
Starting at$450
1808
Sq Ft
2
Story
2
Bed
1
Bath
2
Car