1-Bedroom, 664 Sq Ft Cottage Plan with Master Bathroom

Front elevation of Cottage home (ThePlanCollection: House Plan #178-1343)

Images/Plans copyrighted by designer. Photos may reflect homeowner modifications.

About House Plan #178-1343

Sq Ft
664
Sq Ft
Bedrooms
1
Bedrooms
Bathroom
1
Baths
Half Baths
1
Half Baths
Bedrooms
0
Cars
Bedrooms
1.5
Stories
Bedrooms
27' 0'
Width
Bedrooms
17
Depth
Starting at$680.00What's included
STEP 1Bedrooms
STEP 2Bedrooms
STEP 3Bedrooms

Subtotal:$0
Plan Collection

How much will it cost to build?

Estimate your costs based on your location and materials.

Free Cost Instant Estimator

Floor Plans

Floor Plan Main Level
Floor Plan Main Level
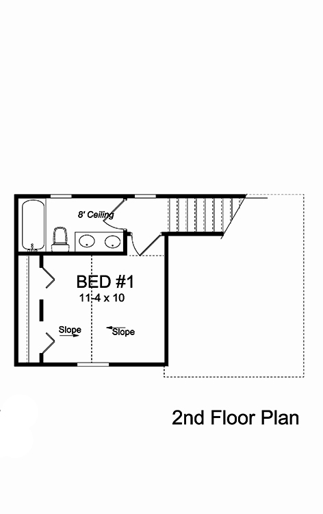
Floor Plan Upper Level
Floor Plan Upper Level
Plan Collection

Can I modify this plan?

Yes! This plan can be customized—contact us for a free quote.

Additional Notes from Designer

Please Note: This plan comes standard with a Construction License that gives the original purchaser the right to build the plan as many times as you like.

House Plan Description

This lovely Cottage style home with Craftsman influences (House Plan #178-1343) has 664 square feet of living space. The 1.5 story floor plan includes 1 bedrooms.

Home Details

Summary
Plan #:178-1343
Starting at:$680.00
Floors:1.5
Bedrooms:1
Full Baths:1
Half Baths:1
Garage:
Square Footage
Heated Area:664 Sq. Ft.
First Floor:435 Sq. Ft.
Second Floor:229 Sq. Ft.
Unheated Area:
Dimensions
Ridge Height:22' 0''
Architectural Styles
Exterior Wall Material
Vinyl SidingWood Siding
Roofing Type
Gable
Roofing Material
Asphalt Shingles
Roof Pitch
8/12
Ceiling Height
8 Foot Ceiling
Special Feature
Main Level LaundryOpen Floor Plan
Exterior Wall Framing
2x4
Building Lot Type
Narrow Lot Design
Kitchen Features
Kitchen IslandWalk-in PantryPeninsula/Eating Bar
Master Suite Features
Main Floor MasterMaster BathroomWalk In ClosetSecond Floor Master

What’s Included

Most plan sets include the following:

icon text-secondary-400 includedFront elevation and construction notes

icon text-secondary-400 includedRear and side elevations

icon text-secondary-400 includedFloor plan, including electrical, window and door sizes, floor joist span directions, and ceiling type notes (9’ ceiling, vault, etc)

icon text-secondary-400 includedSecond-floor plan (if applicable) with the same info as shown on first-floor plan

icon text-secondary-400 includedTypical wall section

icon text-secondary-400 includedTypical foundation details

icon text-secondary-400 includedRoof plan showing roof pitches, ridges & valleys.

icon text-secondary-400 includedFoundation plan

What’s Not Included

These items are  NOT included:

icon text-secondary-400 includedArchitectural or Engineering Stamp - handled locally if required.

icon text-secondary-400 includedSite Plan - handled locally when required.

icon text-secondary-400 includedMechanical Drawings (location of heating and air equipment and duct work) - your subcontractors handle this.

icon text-secondary-400 includedPlumbing Drawings (drawings showing the actual plumbing pipe sizes and locations) - your subcontractors handle this.

icon text-secondary-400 includedEnergy calculations - handled locally when required.

Related House Plans

Plan Collection
Plan Collection
Plan Collection
Plan#178-1346
Starting at$680
597
Sq Ft
1.5
Story
1
Bed
1
Bath
0
Car
View All

Other Plans By This Designer

Plan Collection
Plan Collection
Plan Collection
Plan#178-1345
Starting at$680
395
Sq Ft
1
Story
1
Bed
1
Bath
0
Car
Plan Collection
Plan Collection
Plan Collection
Plan#178-1248
Starting at$945
1277
Sq Ft
1
Story
3
Bed
2
Bath
0
Car
Plan Collection
Plan Collection
Plan Collection
Plan#178-1393
Starting at$965
1558
Sq Ft
1
Story
3
Bed
2
Bath
0
Car