6-Bedroom, 6784 Sq Ft Luxury Plan with Walk-in Pantry

This image shows the front elevation of these Luxury house plans.

Images/Plans copyrighted by designer. Photos may reflect homeowner modifications.

About House Plan #107-1033

Sq Ft
6784
Sq Ft
Bedrooms
6
Bedrooms
Bathroom
7
Baths
Half Baths
1
Half Baths
Bedrooms
3
Cars
Bedrooms
2
Stories
Bedrooms
65' 0'
Width
Bedrooms
91
Depth
Starting at$2000.00What's included
STEP 1Bedrooms
STEP 2Bedrooms
STEP 3Bedrooms

Subtotal:$0
Plan Collection

How much will it cost to build?

Estimate your costs based on your location and materials.

Free Cost Instant Estimator

Floor Plans

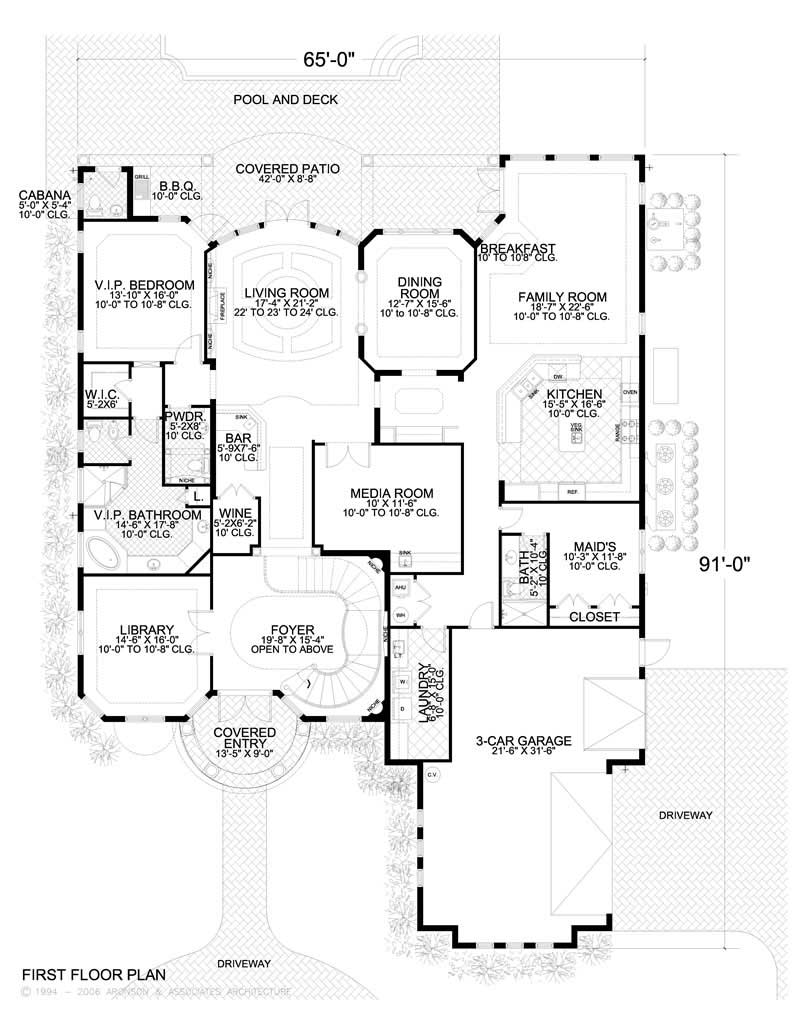
MAIN LEVEL FLOOR PLAN
MAIN LEVEL FLOOR PLAN
SECOND LEVEL FLOOR PLAN
SECOND LEVEL FLOOR PLAN
Plan Collection

Can I modify this plan?

Yes! This plan can be customized—contact us for a free quote.

House Plan Description

Luxury Home Plans #107-1033 have Spanish and Mediterranean style and flair. This plan has two stories, six Bedrooms, a three car garage , six and a half bathrooms plus a cabana bath. These plans have classic Mediterranean style which can be seen through the columns and arches that provide strong curb appeal as well as the towering covered entrance. This unique design has everything, including a Media and/or Playroom plus extra storage areas, Covered patios with summer kitchen as well as Large Living Room with two story tray ceilings and stately fireplace and wet bar. You’ll love this design...

Home Details

Summary
Plan #:107-1033
Starting at:$2000.00
Floors:2
Bedrooms:6
Full Baths:7
Half Baths:1
Garage:
Square Footage
Heated Area:6784 Sq. Ft.
First Floor:3636 Sq. Ft.
Second Floor:3148 Sq. Ft.
Unheated Area:
Garage:800 Sq. Ft.
Dimensions
Ridge Height:35'0' 0''
Architectural Styles
Exterior Wall Material
Stucco
Roofing Type
Hip
Roofing Material
Other Composites
Roof Pitch
5/12
Special Feature
In Home GymFireplaceSwimming PoolDining RoomFamily RoomLibraryMedia RoomLoftVaulted CeilingsWine CellarBalcony
Garage Type
Attached GarageCourtyard EntrySide Entry
Fireplaces
One Fireplace
Building Lot Type
Flat Site
Kitchen Features
Kitchen IslandButler's PantryNook/Breakfast AreaWalk-in PantryOutdoor KitchenPeninsula/Eating BarEat-In Kitchen
Porches and Exterior Features
Covered Front PorchCovered Rear PorchSundeck
Master Suite Features
Main Floor MasterTwo or More Master SuitesMaster BathroomWalk In ClosetSitting AreaPrivate Deck

What’s Included

Most plan sets include the following:

icon text-secondary-400 includedFloor plan

icon text-secondary-400 includedKitchen & Bath layout

icon text-secondary-400 includedExterior elevations

icon text-secondary-400 includedSections

icon text-secondary-400 includedStructural plans

icon text-secondary-400 includedFoundation plan

icon text-secondary-400 includedRoof plan

icon text-secondary-400 includedMechanical layout

icon text-secondary-400 includedElectrical layout

What’s Not Included

These items are  NOT included:

icon text-secondary-400 includedArchitectural or Engineering Stamp - handled locally if required.

icon text-secondary-400 includedSite Plan - handled locally when required.

icon text-secondary-400 includedMechanical Drawings (location of heating and air equipment and ductwork) - your subcontractors handle this.

icon text-secondary-400 includedPlumbing Drawings (drawings showing the actual plumbing pipe sizes and locations) - your subcontractors handle this.

icon text-secondary-400 includedEnergy calculations - handled locally when required.

Related House Plans

Plan Collection
Plan Collection
Plan Collection
Plan#107-1085
Starting at$2100
7100
Sq Ft
2
Story
6
Bed
7.5
Bath
3
Car
Plan Collection
Plan Collection
Plan Collection
Plan#107-1002
Starting at$1900
6175
Sq Ft
2
Story
6
Bed
7.5
Bath
4
Car
Plan Collection
Plan Collection
Plan Collection
Plan#107-1207
Starting at$2000
6679
Sq Ft
2
Story
6
Bed
7.5
Bath
3
Car
View All

Other Plans By This Designer

Plan Collection
Plan Collection
Plan Collection
Plan#107-1002
Starting at$1900
6175
Sq Ft
2
Story
6
Bed
7.5
Bath
4
Car
Plan Collection
Plan Collection
Plan Collection
Plan#107-1096
Starting at$1150
1619
Sq Ft
1
Story
3
Bed
2
Bath
2
Car
Plan Collection
Plan Collection
Plan Collection
Plan#107-1182
Starting at$1900
6412
Sq Ft
2
Story
7
Bed
7.5
Bath
3
Car