Luxury Rustic Lodge with 15 Bedrooms, 7903 Sq Ft

Front elevation of Luxury home (ThePlanCollection: House Plan #132-1283)

Images/Plans copyrighted by designer. Photos may reflect homeowner modifications.

About House Plan #132-1283

Sq Ft
7158
Sq Ft
Bedrooms
15
Bedrooms
Bathroom
1
Baths
Half Baths
17
Half Baths
Bedrooms
0
Cars
Bedrooms
1
Stories
Bedrooms
137' 2'
Width
Bedrooms
64
Depth
Starting at$2395.00What's included
STEP 1Bedrooms
STEP 2Bedrooms
STEP 3Bedrooms

Subtotal:$0
Plan Collection

How much will it cost to build?

Estimate your costs based on your location and materials.

Free Cost Instant Estimator

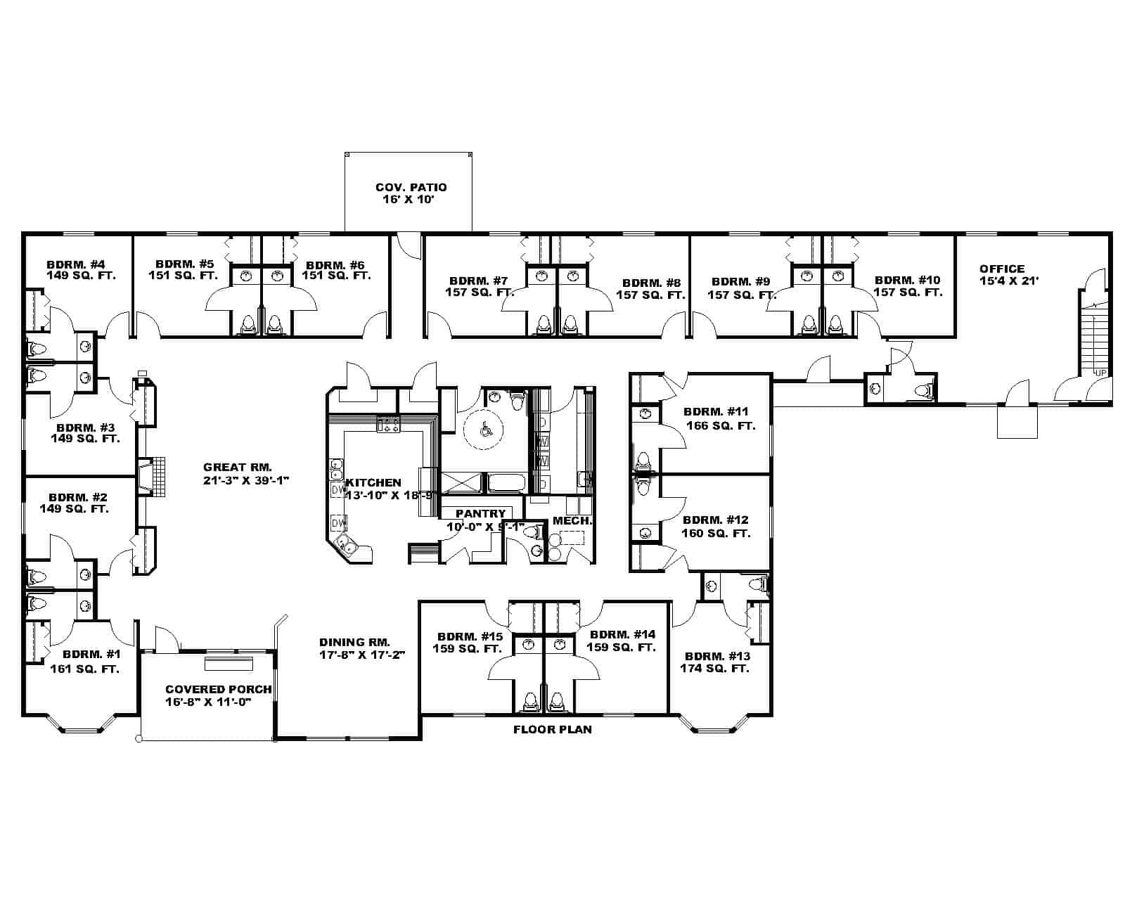
Floor Plans

Floor Plan First Story
Floor Plan First Story
Plan Collection

Can I modify this plan?

Yes! This plan can be customized—contact us for a free quote.

Additional Notes from Designer

PLEASE NOTE! The CAD - Unlimited package is NOT an unlimited license - it is a license to build up to 5 homes.

House Plan Description

*Standard Frame Construction *Assisted Living Home *15 Bedrooms *Large Meeting Room *Large Office *Large Dining Room *Large Great Room With Fireplace *Covered Porch *Large Kitchen With Pantry *Double Laundry Room

The Overall Depth with the Covered Patio 74'

The Depth of the House Only is 64'

The Overall Width is 137' and 2''

 

 

Home Details

Summary
Plan #:132-1283
Starting at:$2395.00
Floors:1
Bedrooms:15
Full Baths:1
Half Baths:17
Garage:
Square Footage
Heated Area:7158 Sq. Ft.
First Floor:6619 Sq. Ft.
Second Floor:539 Sq. Ft.
Unheated Area:
Dimensions
Width:137' 2''
Ridge Height:30' 0''
Architectural Styles
Exterior Wall Material
Shakes
Roof Pitch
8/12
Ceiling Height
9 Foot Ceiling
Special Feature
FireplaceDining RoomHome OfficeVaulted CeilingsOpen Floor Plan
Garage Type
Side Entry
Fireplaces
One Fireplace
Exterior Wall Framing
2x6
Kitchen Features
Peninsula/Eating Bar
Porches and Exterior Features
Patio

What’s Included

Most plan sets include the following:

icon text-secondary-400 includedExterior elevations: shows the home on all four sides, calls out exterior finishes, rooflines, window and door locations.

icon text-secondary-400 includedFloor plans: includes interior and exterior dimensions, window/door schedule, wall framing details.

icon text-secondary-400 includedFoundation plan: shows footing, stem wall, and slab placement, including all connection details.

icon text-secondary-400 includedFloor and roof framing plans show truss/rafter placements, including all beams/connection details.

icon text-secondary-400 includedCross-sections: cut-through view of the structure from roof to foundation, shows framing, plate heights, insulation, etc.

icon text-secondary-400 includedElectrical layout

icon text-secondary-400 includedGeneral notes/details to cover the entirety of the project

What’s Not Included

These items are  NOT included:

icon text-secondary-400 includedArchitectural or Engineering Stamp - handled locally if required.

icon text-secondary-400 includedSite Plan - handled locally when required.

icon text-secondary-400 includedMechanical Drawings (location of heating and air equipment and ductwork) - your subcontractors handle this.

icon text-secondary-400 includedPlumbing Drawings (drawings showing the actual plumbing pipe sizes and locations) - your subcontractors handle this.

icon text-secondary-400 includedEnergy calculations - handled locally when required.

Related House Plans

Plan Collection
Plan Collection
Plan Collection
Plan#132-1274
Starting at$1760
5997
Sq Ft
1
Story
15
Bed
1.5
Bath
0
Car
View All

Other Plans By This Designer

Plan Collection
Plan Collection
Plan Collection
Plan#132-1697
Starting at$1145
1176
Sq Ft
1
Story
2
Bed
2
Bath
0
Car
Plan Collection
Plan Collection
Plan Collection
Plan#132-1313
Starting at$1245
2281
Sq Ft
2
Story
3
Bed
2.5
Bath
0
Car
Plan Collection
Plan Collection
Plan Collection
Plan#132-1107
Starting at$995
689
Sq Ft
1
Story
1
Bed
1
Bath
0
Car