Fourplex Plan with 3 Bedrooms, 1707-1979 Living Sq Ft Per Unit

Front elevation of Multi-Unit home (ThePlanCollection: House Plan #138-1054)

Images/Plans copyrighted by designer. Photos may reflect homeowner modifications.

About House Plan #138-1054

Sq Ft
7372
Sq Ft
Bedrooms
12
Bedrooms
Bathroom
10
Baths
Half Baths
2
Half Baths
Bedrooms
8
Cars
Bedrooms
2
Stories
Bedrooms
116' 0'
Width
Bedrooms
72
Depth
Starting at$1850.00What's included
STEP 1Bedrooms
STEP 2Bedrooms
STEP 3Bedrooms

Subtotal:$0
Plan Collection

How much will it cost to build?

Estimate your costs based on your location and materials.

Free Cost Instant Estimator

Floor Plans

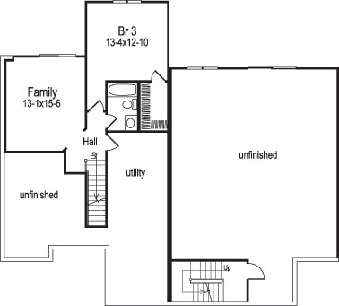
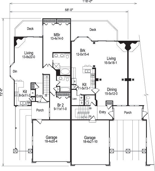
Floor Plan Main Level
Floor Plan Main Level
Floor Plan Upper Level
Floor Plan Upper Level
Floor Plan Basement
Floor Plan Basement
Plan Collection

Can I modify this plan?

Yes! This plan can be customized—contact us for a free quote.

Additional Notes from Designer

PLEASE NOTE: Not all plans from this designer can be modified! Please check before sending in a mod request. Thank you!

Units B and C include 3 bedrooms, 2 1/2 baths, 2-car garage in a two-story plan with 1,979 square feet of living area with 1,055 on the first floor and 924 on the second floor

Units A and D include 3 bedrooms, 3 baths, 2-car garage in a ranch plan with 1,707 square feet of living area with 1,149 on the first floor and 558 on the lower level

House Plan Description

This delightful traditional fourplex has a total of 7372 living sq ft. The 2-story floor plan includes 12 bedrooms in all. Each of the four units has 3 bedrooms and 1707-1979 living square feet.

Home Details

Summary
Plan #:138-1054
Starting at:$1850.00
Floors:2
Bedrooms:12
Full Baths:10
Half Baths:2
Garage:
Square Footage
Heated Area:7372 Sq. Ft.
First Floor:4408 Sq. Ft.
Second Floor:1116 Sq. Ft.
Unheated Area:
Dimensions
Depth:72' 6''
Architectural Styles
Exterior Wall Material
Vinyl SidingWood Siding
Roofing Type
Hip
Roofing Material
Asphalt Shingles
Special Feature
FireplaceDining RoomFamily RoomMain Level LaundryOpen Floor Plan
Garage Type
Attached Garage
Fireplaces
Two Fireplaces
Exterior Wall Framing
2x4
Kitchen Features
Nook/Breakfast AreaWalk-in PantryPeninsula/Eating BarEat-In Kitchen
Porches and Exterior Features
Covered Front PorchSundeck
Master Suite Features
Main Floor MasterMaster BathroomWalk In ClosetSplit Master Bedroom

What’s Included

Most plan sets include the following:

icon text-secondary-400 includedCover sheet

icon text-secondary-400 includedFoundation plan

icon text-secondary-400 includedFloor plans

icon text-secondary-400 includedExterior elevations

icon text-secondary-400 includedRoof plan

icon text-secondary-400 includedDetails Sheet

icon text-secondary-400 includedSections

icon text-secondary-400 includedInterior elevations

What’s Not Included

These items are  NOT included:

icon text-secondary-400 includedArchitectural or Engineering Stamp - handled locally if required.

icon text-secondary-400 includedSite Plan - handled locally when required.

icon text-secondary-400 includedMechanical Drawings (location of heating and air equipment and ductwork) - your subcontractors handle this.

icon text-secondary-400 includedPlumbing Drawings (drawings showing the actual plumbing pipe sizes and locations) - your subcontractors handle this.

icon text-secondary-400 includedEnergy calculations - handled locally when required.

Other Plans By This Designer

Plan Collection
Plan Collection
Plan Collection
Plan#138-1209
Starting at$450
421
Sq Ft
1
Story
1
Bed
1
Bath
1
Car
Plan Collection
Plan Collection
Plan Collection
Plan#138-1314
Starting at$1050
1536
Sq Ft
1
Story
4
Bed
2
Bath
0
Car
Plan Collection
Plan Collection
Plan Collection
Plan#138-1315
Starting at$1050
1536
Sq Ft
1
Story
4
Bed
2
Bath
0
Car