2-Car Garage with 1-Bedroom, 910 Sq Ft Apartment with Vaulted Ceilings

Garage w/Apartment home (ThePlanCollection: Plan #196-1229)

Images/Plans copyrighted by designer. Photos may reflect homeowner modifications.

About House Plan #196-1229

Sq Ft
910
Sq Ft
Bedrooms
1
Bedrooms
Bathroom
1
Baths
Half Baths
0
Half Baths
Bedrooms
2
Cars
Bedrooms
2
Stories
Bedrooms
26' 0'
Width
Bedrooms
35
Depth
Starting at$925.00What's included
STEP 1Bedrooms
STEP 2Bedrooms
STEP 3Bedrooms

Subtotal:$0
Plan Collection

How much will it cost to build?

Estimate your costs based on your location and materials.

Free Cost Instant Estimator

Floor Plans

Upper Level
Upper Level
Garage
Garage
Plan Collection

Can I modify this plan?

Yes! This plan can be customized—contact us for a free quote.

Additional Notes from Designer

NOTE FROM DESIGNER REGARDING PLAN PURCHASES: 80% of a 5 set purchase price can be applied to any PDF or CAD license upgrade. Additionally, 80% of PDF Study purchase price can be applied to any CAD or PDF license upgrade.

House Plan Description

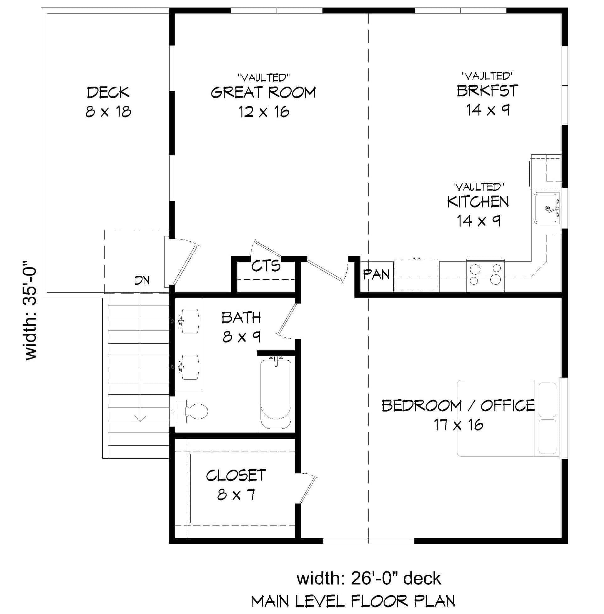
This marvelous garage with apartment in a quaint Colonial style will surely appeal to you with its thoughtful design both inside and out. The large garage with plenty of storage and the vaulted open floor plan upstairs with cozy master bedroom suite – also vaulted – makes for comfortable living in minimal square footage. Covering a total heated and cooled area of 910 square feet, the home is perfect as a vacation getaway or starter home!

 

Home Details

Summary
Plan #:196-1229
Starting at:$925.00
Floors:2
Bedrooms:1
Full Baths:1
Half Baths:0
Garage:
Square Footage
Heated Area:910 Sq. Ft.
Second Floor:910 Sq. Ft.
Unheated Area:
Garage:910 Sq. Ft.
Porch:159 Sq. Ft.
Dimensions
Architectural Styles
Exterior Wall Material
Vinyl SidingWood SidingShakes
Roofing Type
Gable
Roofing Material
Asphalt Shingles
Roof Pitch
6/12
Ceiling Height
8 Foot Ceiling
Special Feature
Family RoomMain Level LaundryStorageVaulted CeilingsOpen Floor Plan
Garage Type
Attached GarageUnder Main Floor EntrySide Entry
Exterior Wall Framing
2x4
Building Lot Type
Flat SiteNarrow Lot DesignCorner Lot
Kitchen Features
Nook/Breakfast Area
Porches and Exterior Features
Covered Front PorchSundeck
Master Suite Features
Master BathroomWalk In ClosetSecond Floor Master

What’s Included

Most plan sets include the following:

What’s Not Included

These items are  NOT included:

Related House Plans

Plan Collection
Plan Collection
Plan Collection
Plan#146-1841
Starting at$885
908
Sq Ft
2
Story
1
Bed
1
Bath
0
Car
Plan Collection
Plan Collection
Plan Collection
Plan#196-1049
Starting at$695
820
Sq Ft
2
Story
1
Bed
1
Bath
2
Car
Plan Collection
Plan Collection
Plan Collection
Plan#138-1274
Starting at$700
1086
Sq Ft
2
Story
1
Bed
1.5
Bath
2
Car
View All

Other Plans By This Designer

Plan Collection
Plan Collection
Plan Collection
Plan#196-1211
Starting at$695
650
Sq Ft
2
Story
1
Bed
1
Bath
2
Car
Plan Collection
Plan Collection
Plan Collection
Plan#196-1196
Starting at$810
1500
Sq Ft
1
Story
2
Bed
2
Bath
3
Car
Plan Collection
Plan Collection
Plan Collection
Plan#196-1216
Starting at$845
1727
Sq Ft
2
Story
2
Bed
2
Bath
2
Car