6-Bedroom, 9166 Sq Ft Luxury Plan with Kitchen Island

Luxurious Mansion Estate

Images/Plans copyrighted by designer. Photos may reflect homeowner modifications.

About House Plan #134-1365

Sq Ft
9166
Sq Ft
Bedrooms
6
Bedrooms
Bathroom
6
Baths
Half Baths
1
Half Baths
Bedrooms
5
Cars
Bedrooms
2
Stories
Bedrooms
251' 0'
Width
Bedrooms
125
Depth
Starting at$21998.40What's included
STEP 1Bedrooms
STEP 2Bedrooms
STEP 3Bedrooms

Subtotal:$0
Plan Collection

How much will it cost to build?

Estimate your costs based on your location and materials.

Free Cost Instant Estimator

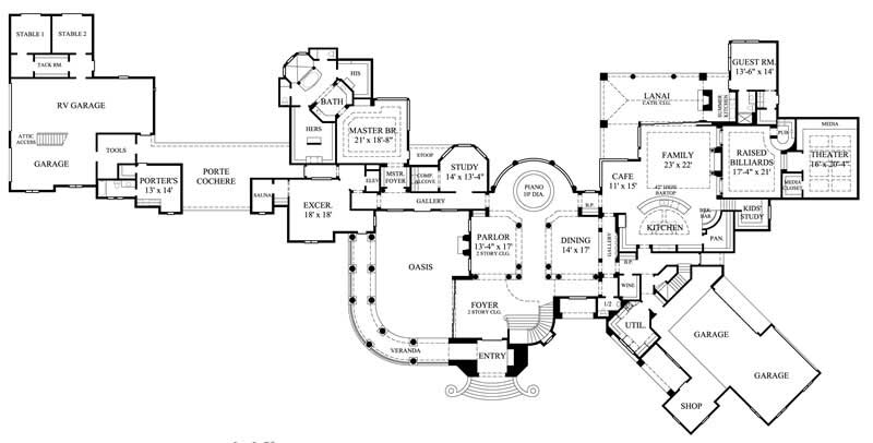
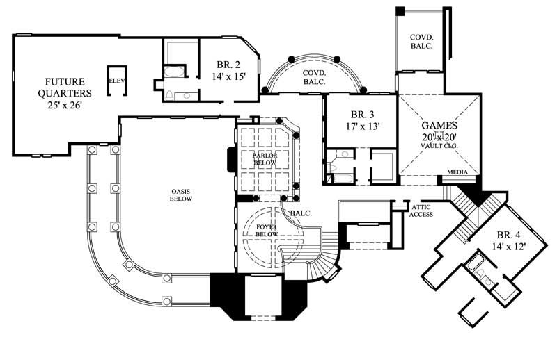
Floor Plans

FLOOR PLAN FIRST STORY
FLOOR PLAN FIRST STORY
FLOOR PLAN SECOND STORY
FLOOR PLAN SECOND STORY
Plan Collection

Can I modify this plan?

Yes! This plan can be customized—contact us for a free quote.

House Plan Description

One of our more magnificent luxury house plans, this mansion has a place for everything!

Home Details

Summary
Plan #:134-1365
Starting at:$21998.40
Floors:2
Bedrooms:6
Full Baths:6
Half Baths:1
Garage:
Square Footage
Heated Area:9166 Sq. Ft.
First Floor:6965 Sq. Ft.
Second Floor:2201 Sq. Ft.
Unheated Area:
Dimensions
Architectural Styles
Exterior Wall Material
StuccoRock/Stone
Ceiling Height
10 Foot Ceiling12 Foot Ceiling
Special Feature
In Home GymFireplaceDining RoomBonus RoomFamily RoomGame RoomMain Level LaundryHome TheaterMedia RoomColor PhotosDenWorkshopExercise Room
Garage Type
Attached GarageCourtyard EntrySide Entry
Fireplaces
Two Fireplaces
Exterior Wall Framing
2x6
Building Lot Type
View Lot
Kitchen Features
Kitchen IslandNook/Breakfast AreaWalk-in PantryOutdoor KitchenPeninsula/Eating Bar
Porches and Exterior Features
CourtyardCovered Front PorchFriend's EntryCovered LanaiPorte-Cochere
Master Suite Features
Main Floor MasterMaster BathroomWalk In ClosetSplit Master Bedroom

What’s Included

Most plan sets include the following:

icon text-secondary-400 included1/4 scale elevations

icon text-secondary-400 includedFully dimensioned floor plans

icon text-secondary-400 includedFoundation footprint

icon text-secondary-400 includedRoof plan and section details

What’s Not Included

These items are  NOT included:

icon text-secondary-400 includedArchitectural or Engineering Stamp - handled locally if required.

icon text-secondary-400 includedSite Plan - handled locally when required.

icon text-secondary-400 includedMechanical Drawings (location of heating and air equipment and ductwork) - your subcontractors handle this.

icon text-secondary-400 includedPlumbing Drawings (drawings showing the actual plumbing pipe sizes and locations) - your subcontractors handle this.

icon text-secondary-400 includedEnergy calculations - handled locally when required.

Related House Plans

Plan Collection
Plan Collection
Plan Collection
Plan#106-1206
Starting at$4095
8210
Sq Ft
2
Story
6
Bed
6.5
Bath
4
Car
Plan Collection
Plan Collection
Plan Collection
Plan#116-1108
Starting at$0
9465
Sq Ft
2
Story
6
Bed
6.5
Bath
6
Car
Plan Collection
Plan Collection
Plan Collection
Plan#120-2531
Starting at$7490
9360
Sq Ft
2
Story
6
Bed
6.5
Bath
4
Car
View All

Other Plans By This Designer

Plan Collection
Plan Collection
Plan Collection
Plan#134-1400
Starting at$0
3929
Sq Ft
1
Story
4
Bed
3.5
Bath
3
Car
Plan Collection
Plan Collection
Plan Collection
Plan#134-1027
Starting at$0
6634
Sq Ft
2
Story
4
Bed
5.5
Bath
4
Car
Plan Collection
Plan Collection
Plan Collection
Plan#134-1355
Starting at$0
8617
Sq Ft
2
Story
5
Bed
5.5
Bath
3
Car