2-Car, Traditional Style Garage w/Apartment

Garage w/Apartment home (ThePlanCollection: Plan #108-2007)

Images/Plans copyrighted by designer. Photos may reflect homeowner modifications.

About House Plan #108-2007

Sq Ft
933
Sq Ft
Bedrooms
1
Bedrooms
Bathroom
1
Baths
Half Baths
0
Half Baths
Bedrooms
2
Cars
Bedrooms
2
Stories
Bedrooms
36' 0'
Width
Bedrooms
40
Depth
Starting at$700.00What's included
STEP 1Bedrooms
STEP 2Bedrooms
STEP 3Bedrooms

Subtotal:$0
Plan Collection

How much will it cost to build?

Estimate your costs based on your location and materials.

Free Cost Instant Estimator

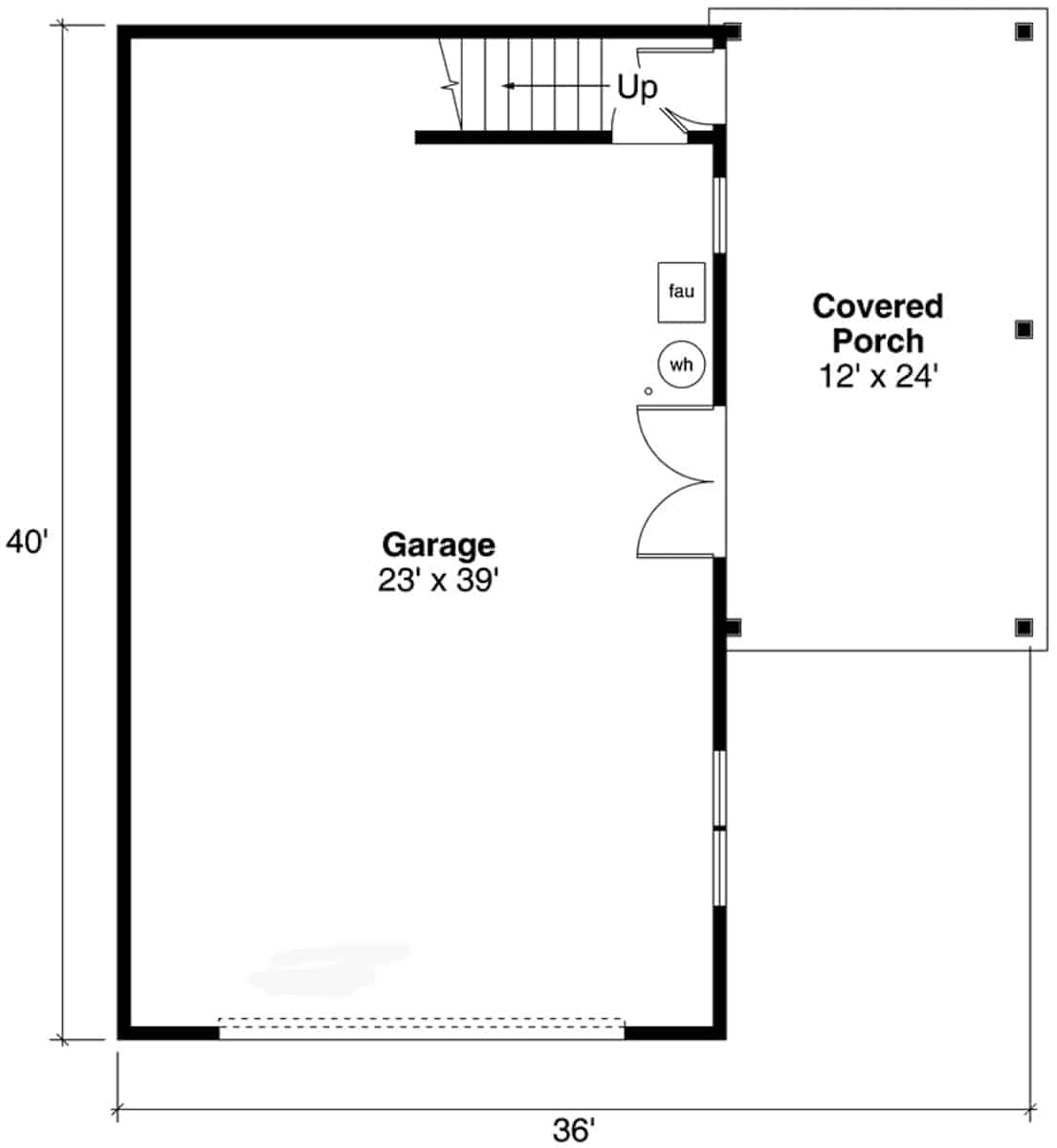
Floor Plans

Main Level
Main Level
Upper Level
Upper Level
Plan Collection

Can I modify this plan?

Yes! This plan can be customized—contact us for a free quote.

Additional Notes from Designer

PLEASE NOTE!! For this designer, The PDF that comes with the PRINT Packages (5 set+PDF and 8 set+PDF) is NOT Modifiable - it is for printing ONLY! PLEASE NOTE!! Optional Foundations (foundations that cost extra money) will take 5-10 business days to complete.

House Plan Description

This oversized detached 1836-total-square-foot car garage with a 933-square-foot loft/studio apartment above is truly adorable in design both inside out, with kitchenette, dining area, living/sleeping loft, and full bathroom in the upper level for the owner’s convenience. This is an excellent garage and would make a great income property, in-law suite, or guest carriage house.


 

Home Details

Summary
Plan #:108-2007
Starting at:$700.00
Floors:2
Bedrooms:1
Full Baths:1
Half Baths:0
Garage:
Square Footage
Heated Area:933 Sq. Ft.
First Floor:57 Sq. Ft.
Second Floor:876 Sq. Ft.
Garage:903 Sq. Ft.
Unheated Area:
Dimensions
Architectural Styles
Exterior Wall Material
Vinyl SidingWood Siding
Roofing Type
GableGable/Dormer
Roofing Material
Asphalt ShinglesMetal
Roof Pitch
3/12
Ceiling Height
9 Foot Ceiling8 Foot Ceiling
Special Feature
LoftStorageOpen Floor Plan
Garage Type
Detached Garage
Exterior Wall Framing
2x6
Kitchen Features
Kitchen IslandPeninsula/Eating Bar
Porches and Exterior Features
Covered Front Porch

What’s Included

Most plan sets include the following:

icon text-secondary-400 included Artist’s rendering of the home,

icon text-secondary-400 included Front/Rear/Left and Right Elevations,

icon text-secondary-400 included Main floor plan, Second or Basement floor plans (if applicable),

icon text-secondary-400 included Foundation plan and detail,

icon text-secondary-400 included Floor framing plan,

icon text-secondary-400 included Roof framing plan, supporting details and

icon text-secondary-400 included Electric layout.

What’s Not Included

These items are  NOT included:

icon text-secondary-400 includedArchitectural or Engineering Stamp - handled locally if required.

icon text-secondary-400 includedSite Plan - handled locally when required.

icon text-secondary-400 includedMechanical Drawings (location of heating and air equipment and ductwork) - your subcontractors handle this.

icon text-secondary-400 includedPlumbing Drawings (drawings showing the actual plumbing pipe sizes and locations) - your subcontractors handle this.

icon text-secondary-400 includedEnergy calculations - handled locally when required.

Related House Plans

Plan Collection
Plan Collection
Plan Collection
Plan#109-1008
Starting at$1045
792
Sq Ft
2
Story
1
Bed
1
Bath
2
Car
Plan Collection
Plan Collection
Plan Collection
Plan#108-1784
Starting at$625
896
Sq Ft
2
Story
1
Bed
1
Bath
3
Car
Plan Collection
Plan Collection
Plan Collection
Plan#163-1041
Starting at$600
906
Sq Ft
2
Story
1
Bed
1
Bath
2
Car
View All

Other Plans By This Designer

Plan Collection
Plan Collection
Plan Collection
Plan#108-1923
Starting at$1150
2928
Sq Ft
1
Story
4
Bed
3
Bath
2
Car
Plan Collection
Plan Collection
Plan Collection
Plan#108-1538
Starting at$725
1216
Sq Ft
2
Story
2
Bed
2
Bath
0
Car
Plan Collection
Plan Collection
Plan Collection
Plan#108-2031
Starting at$450
1808
Sq Ft
2
Story
2
Bed
1
Bath
2
Car