Front view of Duplex/Multi-Unit home (ThePlanCollection: House Plan #146-2682)

Images/Plans copyrighted by designer. Photos may reflect homeowner modifications.

About House Plan #146-2682

Sq Ft
934
Sq Ft
Bedrooms
2
Bedrooms
Bathroom
1
Baths
Half Baths
1
Half Baths
Bedrooms
2
Cars
Bedrooms
1
Stories
Bedrooms
112' 0'
Width
Bedrooms
74
Depth
Starting at$1645.00What's included
STEP 1Bedrooms
STEP 2Bedrooms
STEP 3Bedrooms

Subtotal:$0
Plan Collection

How much will it cost to build?

Estimate your costs based on your location and materials.

Free Cost Instant Estimator

Floor Plans

Main Level
Main Level
Plan Collection

Can I modify this plan?

Yes! This plan can be customized—contact us for a free quote.

House Plan Description

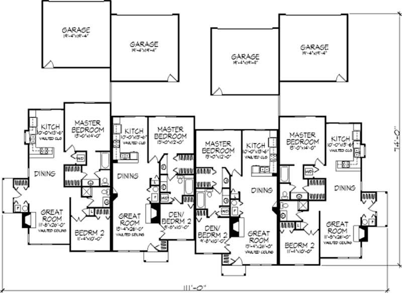
This duplex design offers two exciting floor plans. Unit A has a vaulted Great Room with a fireplace and a master suite with a private dressing area. A patio covers the area between the home and the garage. Unit B has a vaulted Great Room with a fireplace. The master suite has a private bath with a walk-in closet. It also features a courtyard patio.

Home Details

Summary
Plan #:146-2682
Starting at:$1645.00
Floors:1
Bedrooms:2
Full Baths:1
Half Baths:1
Garage:
Square Footage
Heated Area:934 Sq. Ft.
First Floor:934 Sq. Ft.
Unheated Area:
Dimensions
Ridge Height:20-0' 0''
Architectural Styles
Exterior Wall Material
Wood Siding
Roofing Type
Gable
Special Feature
Fireplace
Garage Type
Detached Garage
Fireplaces
One Fireplace
Exterior Wall Framing
2x4
Porches and Exterior Features
Courtyard

What’s Included

Most plan sets include the following:

What’s Not Included

These items are  NOT included:

icon text-secondary-400 includedArchitectural or Engineering Stamp - handled locally if required.

icon text-secondary-400 includedSite Plan - handled locally when required.

icon text-secondary-400 includedMechanical Drawings (location of heating and air equipment and ductwork) - your subcontractors handle this.

icon text-secondary-400 includedPlumbing Drawings (drawings showing the actual plumbing pipe sizes and locations) - your subcontractors handle this.

icon text-secondary-400 includedEnergy calculations - handled locally when required.

Related House Plans

Plan Collection
Plan Collection
Plan Collection
Plan#119-1185
Starting at$2045
1021
Sq Ft
1
Story
2
Bed
1.5
Bath
1
Car
Plan Collection
Plan Collection
Plan Collection
Plan#119-1087
Starting at$2045
1034
Sq Ft
1
Story
2
Bed
1.5
Bath
1
Car
Plan Collection
Plan Collection
Plan Collection
Plan#153-1152
Starting at$1200
1012
Sq Ft
1
Story
2
Bed
1
Bath
1
Car
View All

Other Plans By This Designer

Plan Collection
Plan Collection
Plan Collection
Plan#146-2806
Starting at$980
1933
Sq Ft
2
Story
3
Bed
2
Bath
0
Car
Plan Collection
Plan Collection
Plan Collection
Plan#146-2810
Starting at$1285
3594
Sq Ft
2
Story
4
Bed
3.5
Bath
2
Car
Plan Collection
Plan Collection
Plan Collection
Plan#146-1917
Starting at$1120
2525
Sq Ft
2
Story
4
Bed
2.5
Bath
3
Car

By Architectural Style

By Feature

By Region