Estimate your costs based on your location and materials.
Yes! This plan can be customized—contact us for a free quote.
Yes! This plan can be customized—contact us for a free quote.
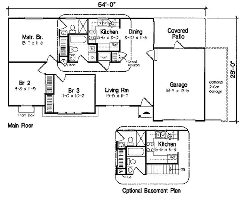
While its all about using space creatively, theres no lack of pretty detailing here. A bright Palladian window and double peaked roofs caress the exterior while space-saving artfulness tweaks the 988 sq. ft. interior. The airy atmosphere is achieved by opening the living room to the dining room and by the dining room flowing easily into the kitchen and beyond to a covered patio. Two cozy bed rooms at the front of the house share a bathroom. The master bedroom tucks cozily at the rear of the house and enjoys its own bathroom. Closets are arranged to give maximum storage. The garage, too,...
Estimate your costs based on your location and materials.
All sales of house plans, modifications, and other products found on this site are final. No refunds or exchanges can be given once your order has begun the fulfillment process. Please see our Policies for additional information.
All plans offered on ThePlanCollection.com are designed to conform to the local building codes when and where the original plan was drawn.
The homes as shown in photographs and renderings may differ from the actual blueprints. For more detailed information, please review the floor plan images herein carefully.
Estimate your costs based on your location and materials.