2-Bedroom, 998 Sq Ft Country Plan with Kitchen Island

Color rendering of Country home plan (ThePlanCollection: House Plan #126-1906)

Images/Plans copyrighted by designer. Photos may reflect homeowner modifications.

About House Plan #126-1906

Sq Ft
998
Sq Ft
Bedrooms
2
Bedrooms
Bathroom
1
Baths
Half Baths
1
Half Baths
Bedrooms
1
Cars
Bedrooms
1
Stories
Bedrooms
56' 0'
Width
Bedrooms
30
Depth
Starting at$1180.00What's included
STEP 1Bedrooms
STEP 2Bedrooms
STEP 3Bedrooms

Subtotal:$0
Plan Collection

How much will it cost to build?

Estimate your costs based on your location and materials.

Free Cost Instant Estimator

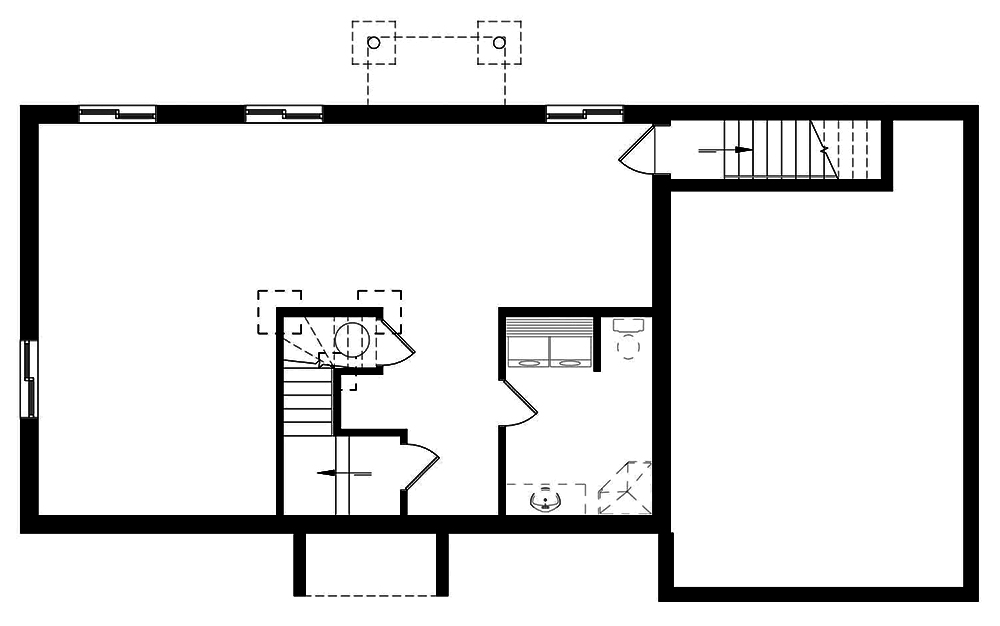
Floor Plans

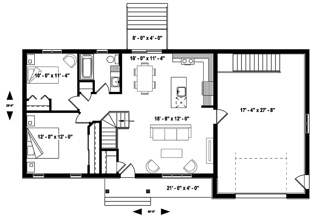
Floor Plan Main Level
Floor Plan Main Level
Floor Plan Basement
Floor Plan Basement
Plan Collection

Can I modify this plan?

Yes! This plan can be customized—contact us for a free quote.

Additional Notes from Designer

Please Note that the designer's office will be closed for the summer holidays from July 20th to August 2024. This designer's plans take 7-10 additional business days regardless of the type of delivery (express, email, etc). Please keep this in mind when ordering. BCIN is available for this designer - please submit a modification request for cost and time frame. PLEASE NOTE! This designer's plans do NOT come with an electrical layout. They will provide an electrical layout for an additional fee.

House Plan Description

This lovely Country style home plan with Bungalow influences (House Plan #126-1906) has 998 square feet of living space. The 1 story floor plan includes 2 bedrooms.

Home Details

Summary
Plan #:126-1906
Starting at:$1180.00
Floors:1
Bedrooms:2
Full Baths:1
Half Baths:1
Garage:
Square Footage
Heated Area:998 Sq. Ft.
First Floor:988 Sq. Ft.
Garage:543 Sq. Ft.
Unheated Area:
Basement:988 Sq. Ft.
Porch:84 Sq. Ft.
Dimensions
Ridge Height:13' 0''
Architectural Styles
Exterior Wall Material
Vinyl SidingRock/StoneWood Siding
Roofing Type
Gable
Roofing Material
Asphalt Shingles
Roof Pitch
6/128/12
Ceiling Height
8 Foot Ceiling
Special Feature
Open Floor Plan
Garage Type
Attached GarageFront Entry
Exterior Wall Framing
2x6
Kitchen Features
Kitchen IslandPeninsula/Eating Bar
Porches and Exterior Features
Covered Front Porch
Master Suite Features
Walk In Closet

What’s Included

Most plan sets include the following:

icon text-secondary-400 includedExterior elevations

icon text-secondary-400 includedFoundation plan

icon text-secondary-400 includedMain floor plan

icon text-secondary-400 includedUpper floor plan (if applicable)

icon text-secondary-400 includedRoof plan

icon text-secondary-400 includedTruss diagrams & building sections

icon text-secondary-400 includedConstruction details

icon text-secondary-400 includedTypical wall section

What’s Not Included

These items are  NOT included:

icon text-secondary-400 includedArchitectural or Engineering Stamp - handled locally if required.

icon text-secondary-400 includedSite Plan - handled locally when required.

icon text-secondary-400 includedNo Electrical

icon text-secondary-400 includedMechanical Drawings (location of heating and air equipment and ductwork) - your subcontractors handle this.

icon text-secondary-400 includedPlumbing Drawings (drawings showing the actual plumbing pipe sizes and locations) - your subcontractors handle this.

icon text-secondary-400 includedEnergy calculations - handled locally when required.

Related House Plans

Plan Collection
Plan Collection
Plan Collection
Plan#141-1184
Starting at$1205
800
Sq Ft
1
Story
2
Bed
1
Bath
0
Car
Plan Collection
Plan Collection
Plan Collection
Plan#109-1010
Starting at$1045
953
Sq Ft
1
Story
2
Bed
1.5
Bath
0
Car
Plan Collection
Plan Collection
Plan Collection
Plan#123-1042
Starting at$850
992
Sq Ft
1
Story
2
Bed
1
Bath
0
Car
View All

Other Plans By This Designer

Plan Collection
Plan Collection
Plan Collection
Plan#126-1856
Starting at$1180
943
Sq Ft
2
Story
3
Bed
2
Bath
0
Car
Plan Collection
Plan Collection
Plan Collection
Plan#126-1325
Starting at$3065
7624
Sq Ft
3
Story
16
Bed
8
Bath
0
Car
Plan Collection
Plan Collection
Plan Collection
Plan#126-1855
Starting at$1125
700
Sq Ft
1
Story
2
Bed
1
Bath
0
Car