3-Bedroom, 2635 Sq Ft Ranch Plan with Covered Rear Porch

Main image for house plan # 14756

Images/Plans copyrighted by designer. Photos may reflect homeowner modifications.

About House Plan #115-1325

Sq Ft
2635
Sq Ft
Bedrooms
3
Bedrooms
Bathroom
2
Baths
Half Baths
0
Half Baths
Bedrooms
3
Cars
Bedrooms
2
Stories
Bedrooms
56' 0'
Width
Bedrooms
58
Depth
Starting at$1800.00What's included
STEP 1Bedrooms
STEP 2Bedrooms
STEP 3Bedrooms

Subtotal:$0
Plan Collection

How much will it cost to build?

Estimate your costs based on your location and materials.

Free Cost Instant Estimator

Floor Plans

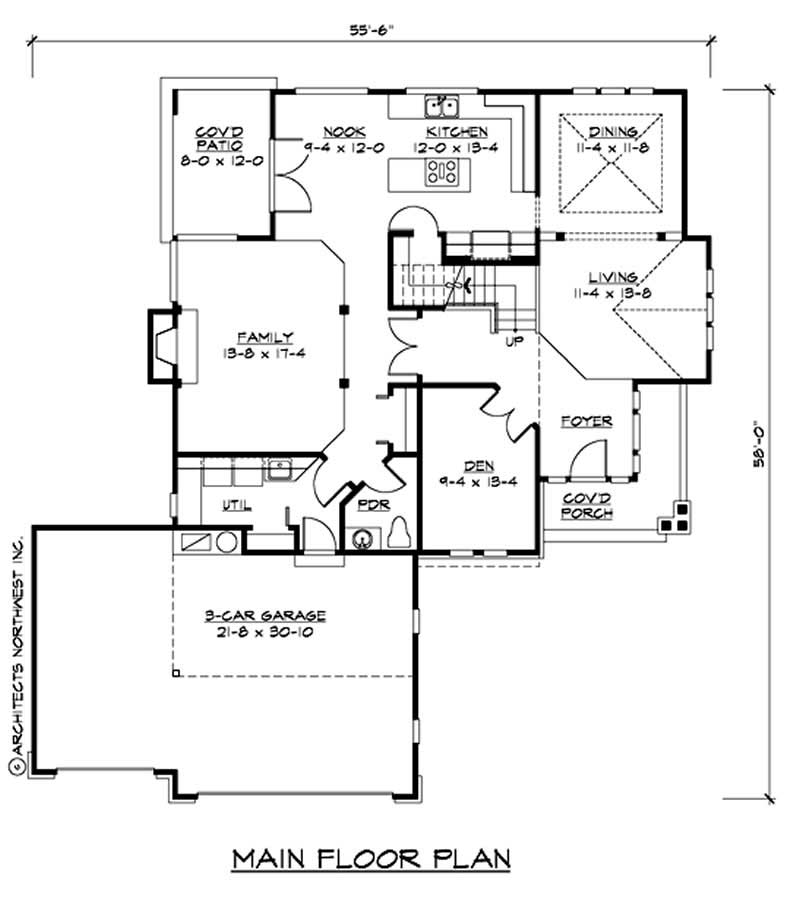
Main Floor Plan
Main Floor Plan
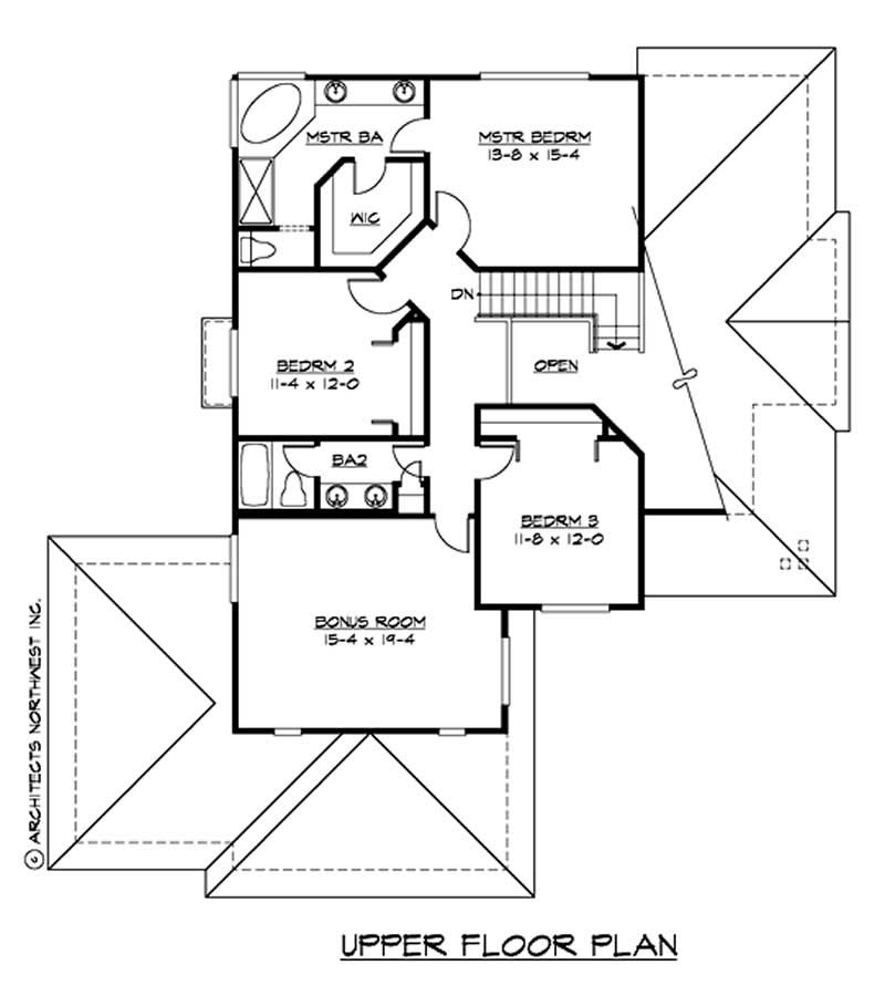
Second Floor Plan
Second Floor Plan
Plan Collection

Can I modify this plan?

Yes! This plan can be customized—contact us for a free quote.

Additional Notes from Designer

Please Note: The plans by this designer DO NOT include electrical plans or electrical layout plans. NOTE: If you are building this home in Washington State, please contact us BEFORE placing your order!

House Plan Description

This beautiful and inviting house plan has many great features to offer you such as: an open kitchen, breakfast nook, covered patio, dining room extended into the living room, a cozy den, covered porch as the entrance of the home, three car garage, powder room, utilities room, and an enjoyable master bedroom with a luxury master bath.

Home Details

Summary
Plan #:115-1325
Starting at:$1800.00
Floors:2
Bedrooms:3
Full Baths:2
Half Baths:0
Garage:
Square Footage
Heated Area:2635 Sq. Ft.
First Floor:1408 Sq. Ft.
Second Floor:1227 Sq. Ft.
Unheated Area:
Dimensions
Architectural Styles
Exterior Wall Material
Vinyl SidingRock/Stone
Special Feature
Dining Room
Garage Type
Attached Garage

What’s Included

Most plan sets include the following:

icon text-secondary-400 includedCover Sheet

icon text-secondary-400 includedSchedule Sheet

icon text-secondary-400 includedDetail Sheet

icon text-secondary-400 includedFoundation Plan Sheet

icon text-secondary-400 includedFloor Plan/Floor Framing Sheet(s)

icon text-secondary-400 includedRoof Framing Plan Sheet

icon text-secondary-400 includedElevation Sheet

icon text-secondary-400 includedBuilding Section Sheet

What’s Not Included

These items are  NOT included:

icon text-secondary-400 includedArchitectural or Engineering Stamp - handled locally if required.

icon text-secondary-400 includedSite Plan - handled locally when required.

icon text-secondary-400 includedMechanical Drawings (location of heating and air equipment and ductwork) - your subcontractors handle this.

icon text-secondary-400 includedPlumbing Drawings (drawings showing the actual plumbing pipe sizes and locations) - your subcontractors handle this.

icon text-secondary-400 includedEnergy calculations - handled locally when required.

Related House Plans

Plan Collection
Plan Collection
Plan Collection
Plan#126-1297
Starting at$1715
2257
Sq Ft
2
Story
3
Bed
2.5
Bath
2
Car
Plan Collection
Plan Collection
Plan Collection
Plan#198-1006
Starting at$2395
2587
Sq Ft
2
Story
3
Bed
2.5
Bath
3
Car
Plan Collection
Plan Collection
Plan Collection
Plan#117-1030
Starting at$1095
2112
Sq Ft
2
Story
3
Bed
2.5
Bath
2
Car
View All

Other Plans By This Designer

Plan Collection
Plan Collection
Plan Collection
Plan#115-1370
Starting at$1400
1000
Sq Ft
2
Story
2
Bed
2
Bath
0
Car
Plan Collection
Plan Collection
Plan Collection
Plan#115-1150
Starting at$1600
2025
Sq Ft
2
Story
3
Bed
2.5
Bath
3
Car
Plan Collection
Plan Collection
Plan Collection
Plan#115-1371
Starting at$1400
1000
Sq Ft
2
Story
2
Bed
2
Bath
0
Car