4-Bedroom, 7950 Sq Ft Country Plan with Courtyard

Main image for country house plans # 15148

Images/Plans copyrighted by designer. Photos may reflect homeowner modifications.

About House Plan #115-1144

Sq Ft
7950
Sq Ft
Bedrooms
4
Bedrooms
Bathroom
5
Baths
Half Baths
1
Half Baths
Bedrooms
4
Cars
Bedrooms
2
Stories
Bedrooms
125' 0'
Width
Bedrooms
71
Depth
Starting at$4600.00What's included
STEP 1Bedrooms
STEP 2Bedrooms
STEP 3Bedrooms

Subtotal:$0
Plan Collection

How much will it cost to build?

Estimate your costs based on your location and materials.

Free Cost Instant Estimator

Floor Plans

First Story
First Story
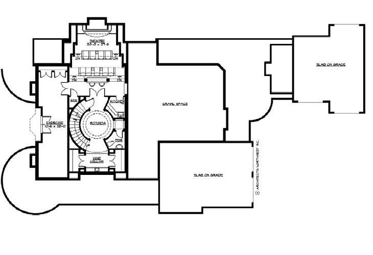
Floor Plan Basement
Floor Plan Basement
Second Story
Second Story
Plan Collection

Can I modify this plan?

Yes! This plan can be customized—contact us for a free quote.

Additional Notes from Designer

Please Note: The plans by this designer DO NOT include electrical plans or electrical layout plans. NOTE: If you are building this home in Washington State, please contact us BEFORE placing your order!

House Plan Description

House Plan #115-1144 is a Country Victorian with luxurious size and features. The house plans accommodate every kind of entertainment, both formal and informal, and have plenty of space allocated to guests. A detached garage with upper apartment is perfect for your friends, family, college bound child, in-laws, and even for rental space. The main floor enjoys and grand entrance with formal spaces like a living and dining room. The rotunda just ahead houses the stairs, a private half bath, and convenient storage. Beyond lies the informal areas namely the family room, dining nook, and...

Home Details

Summary
Plan #:115-1144
Starting at:$4600.00
Floors:2
Bedrooms:4
Full Baths:5
Half Baths:1
Garage:
Square Footage
Heated Area:7950 Sq. Ft.
First Floor:2895 Sq. Ft.
Second Floor:3545 Sq. Ft.
Unheated Area:
Dimensions
Architectural Styles
Exterior Wall Material
Rock/StoneWood Siding
Roofing Type
Gable
Roofing Material
Asphalt Shingles
Special Feature
FireplaceDining RoomGuest RoomHome OfficeMud RoomBonus RoomFamily RoomGame RoomMain Level LaundryApartmentSplit BathroomStorageDenVaulted CeilingsWorkshopBalcony
Garage Type
Attached GarageDetached GarageCourtyard EntrySide Entry
Fireplaces
Four Fireplaces
Building Lot Type
Flat Site
Kitchen Features
Kitchen IslandButler's PantryNook/Breakfast AreaWalk-in Pantry
Porches and Exterior Features
Wrap Around PorchBreezewayCovered Front PorchCovered Rear PorchFriend's EntryCovered Lanai
Master Suite Features
Fireplace in MasterMaster BathroomWalk In ClosetSitting AreaSecond Floor Master

What’s Included

Most plan sets include the following:

icon text-secondary-400 includedCover Sheet

icon text-secondary-400 includedSchedule Sheet

icon text-secondary-400 includedDetail Sheet

icon text-secondary-400 includedFoundation Plan Sheet

icon text-secondary-400 includedFloor Plan/Floor Framing Sheet(s)

icon text-secondary-400 includedRoof Framing Plan Sheet

icon text-secondary-400 includedElevation Sheet

icon text-secondary-400 includedBuilding Section Sheet

What’s Not Included

These items are  NOT included:

icon text-secondary-400 includedArchitectural or Engineering Stamp - handled locally if required.

icon text-secondary-400 includedSite Plan - handled locally when required.

icon text-secondary-400 includedMechanical Drawings (location of heating and air equipment and ductwork) - your subcontractors handle this.

icon text-secondary-400 includedPlumbing Drawings (drawings showing the actual plumbing pipe sizes and locations) - your subcontractors handle this.

icon text-secondary-400 includedEnergy calculations - handled locally when required.

Related House Plans

Plan Collection
Plan Collection
Plan Collection
Plan#134-1027
Starting at$0
6634
Sq Ft
2
Story
4
Bed
5.5
Bath
4
Car
Plan Collection
Plan Collection
Plan Collection
Plan#115-1182
Starting at$4600
7985
Sq Ft
2
Story
4
Bed
5
Bath
5
Car
Plan Collection
Plan Collection
Plan Collection
Plan#115-1226
Starting at$5400
9250
Sq Ft
2
Story
4
Bed
5
Bath
4
Car
View All

Other Plans By This Designer

Plan Collection
Plan Collection
Plan Collection
Plan#115-1370
Starting at$1400
1000
Sq Ft
2
Story
2
Bed
2
Bath
0
Car
Plan Collection
Plan Collection
Plan Collection
Plan#115-1150
Starting at$1600
2025
Sq Ft
2
Story
3
Bed
2.5
Bath
3
Car
Plan Collection
Plan Collection
Plan Collection
Plan#115-1371
Starting at$1400
1000
Sq Ft
2
Story
2
Bed
2
Bath
0
Car