Estimate your costs based on your location and materials.
Yes! This plan can be customized—contact us for a free quote.
Yes! This plan can be customized—contact us for a free quote.
Please Note: The plans by this designer DO NOT include electrical plans or electrical layout plans.
NOTE: If you are building this home in Washington State, please contact us BEFORE placing your order!
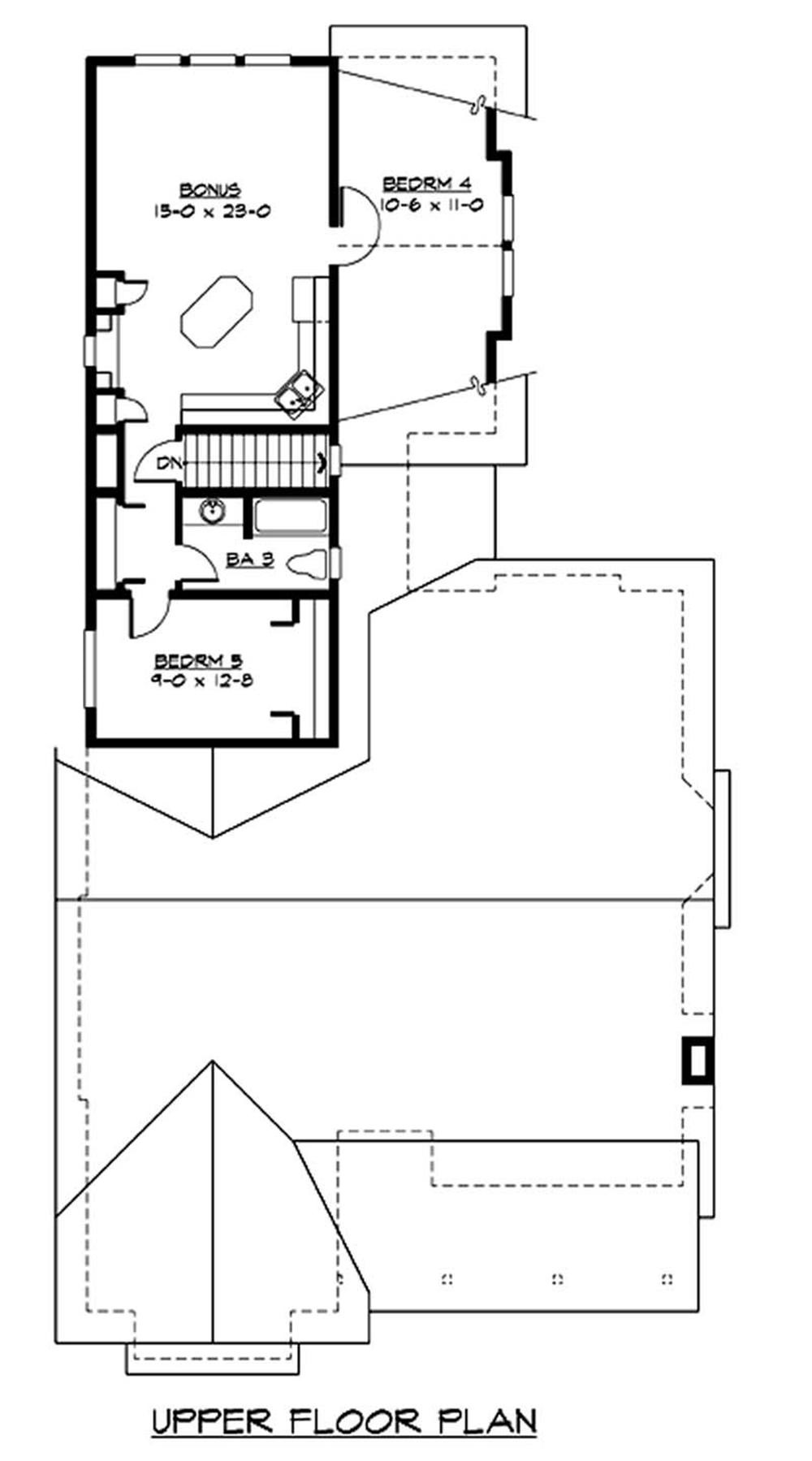
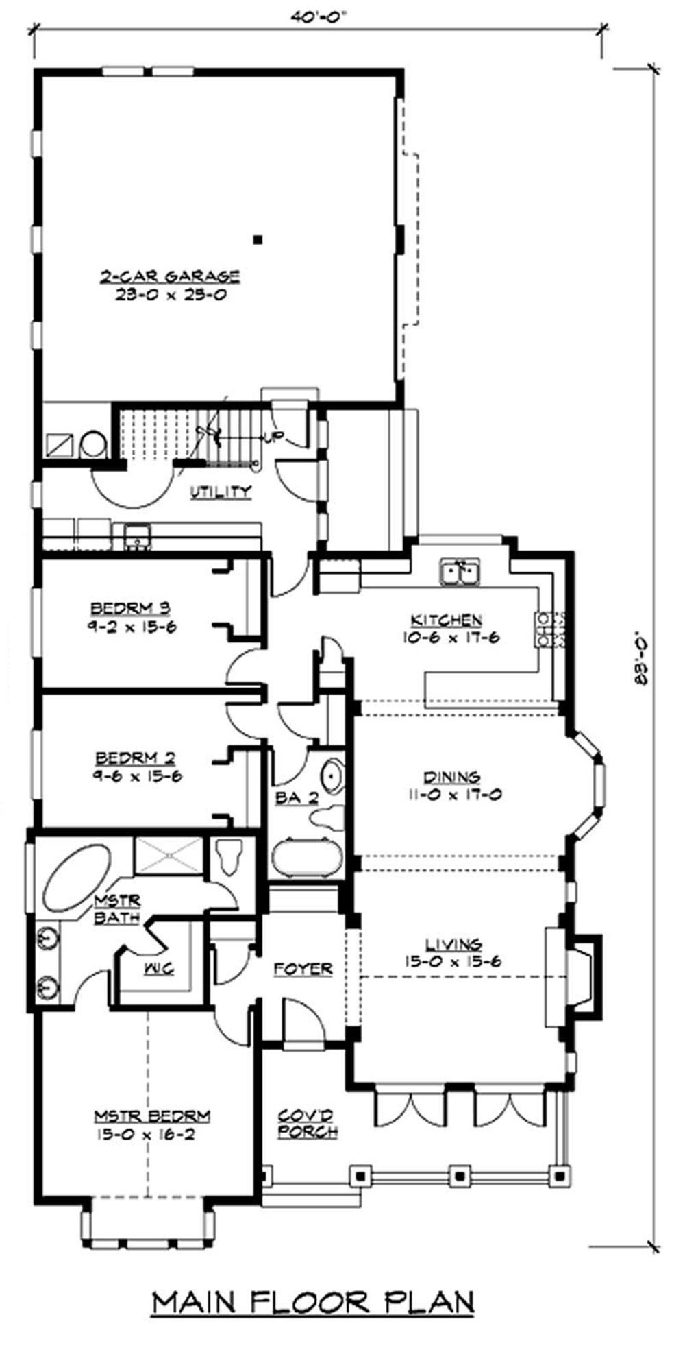
Secondary roof pitch is 4/12 Ceilings on main floor are 9'0" and on upper floor are 8'0"
This is a classic Craftsman-style bungalow house plan. This plan makes great use of its space, packing 5 good sized bedrooms into this modest-sized home. From the curb, the graceful porch with its columns and the distinctive rooflines make this a remarkable example of Craftsman design. Step in through the front door into the foyer. The wide opening to the right eases you into the living room with the fireplace as the focal point and vaulted ceilings creating a much larger feel. Designed for a narrow lot, the living room is open to the dining room and the kitchen. The...
Estimate your costs based on your location and materials.
All sales of house plans, modifications, and other products found on this site are final. No refunds or exchanges can be given once your order has begun the fulfillment process. Please see our Policies for additional information.
All plans offered on ThePlanCollection.com are designed to conform to the local building codes when and where the original plan was drawn.
The homes as shown in photographs and renderings may differ from the actual blueprints. For more detailed information, please review the floor plan images herein carefully.
Estimate your costs based on your location and materials.