4-Bedroom, 2545 Sq Ft Traditional Plan with Covered Front Porch

Main image for house plan # 2206

Images/Plans copyrighted by designer. Photos may reflect homeowner modifications.

About House Plan #102-1036

Sq Ft
2545
Sq Ft
Bedrooms
4
Bedrooms
Bathroom
4
Baths
Half Baths
0
Half Baths
Bedrooms
2
Cars
Bedrooms
2
Stories
Bedrooms
51' 8'
Width
Bedrooms
41
Depth
Starting at$1300.00What's included
STEP 1Bedrooms
STEP 2Bedrooms
STEP 3Bedrooms

Subtotal:$0
Plan Collection

How much will it cost to build?

Estimate your costs based on your location and materials.

Free Cost Instant Estimator

Floor Plans

Main Floor Plan
Main Floor Plan
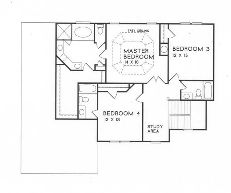
Upper Level Floor Plan
Upper Level Floor Plan
Plan Collection

Can I modify this plan?

Yes! This plan can be customized—contact us for a free quote.

House Plan Description

This is a two-level home with 4 bedrooms and bathrooms, front foyer, formal dining room, spacious sunken main level living room, attached two-car garage with storage area, main level laundry room, breakfast area, deck, and an upstairs study.

Home Details

Summary
Plan #:102-1036
Starting at:$1300.00
Floors:2
Bedrooms:4
Full Baths:4
Half Baths:0
Garage:
Square Footage
Heated Area:2545 Sq. Ft.
First Floor:1348 Sq. Ft.
Second Floor:1197 Sq. Ft.
Unheated Area:
Dimensions
Width:51' 8''
Architectural Styles
Exterior Wall Material
Vinyl SidingBrick
Roofing Type
Gable
Ceiling Height
8 Foot Ceiling
Special Feature
Dining RoomMain Level Laundry
Garage Type
Attached Garage

What’s Included

Most plan sets include the following:

icon text-secondary-400 includedArchitectural or Engineering Stamp - handled locally if required.

icon text-secondary-400 includedSite Plan - handled locally when required.

icon text-secondary-400 includedMechanical Drawings (location of heating and air equipment and ductwork) - your subcontractors handle this.

icon text-secondary-400 includedPlumbing Drawings (drawings showing the actual plumbing pipe sizes and locations) - your subcontractors handle this.

icon text-secondary-400 includedEnergy calculations - handled locally when required.

What’s Not Included

These items are  NOT included:

icon text-secondary-400 includedArchitectural or Engineering Stamp - handled locally if required.

icon text-secondary-400 includedSite Plan - handled locally when required.

icon text-secondary-400 includedMechanical Drawings (location of heating and air equipment and ductwork) - your subcontractors handle this.

icon text-secondary-400 includedPlumbing Drawings (drawings showing the actual plumbing pipe sizes and locations) - your subcontractors handle this.

icon text-secondary-400 includedEnergy calculations - handled locally when required.

Related House Plans

Plan Collection
Plan Collection
Plan Collection
Plan#141-1092
Starting at$1795
3000
Sq Ft
2
Story
4
Bed
4
Bath
3
Car
Plan Collection
Plan Collection
Plan Collection
Plan#109-1020
Starting at$1395
2493
Sq Ft
2
Story
4
Bed
4
Bath
3
Car
Plan Collection
Plan Collection
Plan Collection
Plan#176-1005
Starting at$800
2097
Sq Ft
2
Story
4
Bed
4.5
Bath
2
Car
View All

Other Plans By This Designer

Plan Collection
Plan Collection
Plan Collection
Plan#102-1018
Starting at$950
1658
Sq Ft
2
Story
3
Bed
2.5
Bath
2
Car
Plan Collection
Plan Collection
Plan Collection
Plan#102-1041
Starting at$950
1865
Sq Ft
2
Story
4
Bed
3
Bath
2
Car
Plan Collection
Plan Collection
Plan Collection
Plan#102-1030
Starting at$1500
3445
Sq Ft
2
Story
4
Bed
3.5
Bath
2
Car

By Architectural Style