4-Bedroom, 2891 Sq Ft European Plan with Walk In Closet

This image shows the front elevation of these European Houseplans.

Images/Plans copyrighted by designer. Photos may reflect homeowner modifications.

About House Plan #165-1106

Sq Ft
2891
Sq Ft
Bedrooms
4
Bedrooms
Bathroom
3
Baths
Half Baths
0
Half Baths
Bedrooms
3
Cars
Bedrooms
2
Stories
Bedrooms
76' 0'
Width
Bedrooms
50
Depth
Starting at$2050.00What's included
STEP 1Bedrooms
STEP 2Bedrooms
STEP 3Bedrooms

Subtotal:$0
Plan Collection

How much will it cost to build?

Estimate your costs based on your location and materials.

Free Cost Instant Estimator

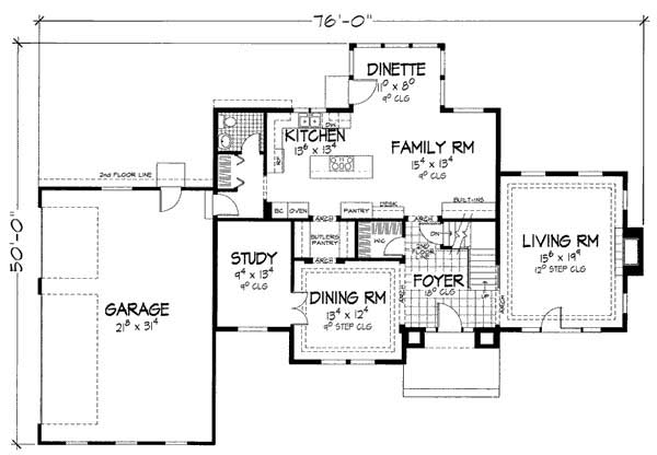
Floor Plans

Floor Plan First Story
Floor Plan First Story
Floor Plan Second Story
Floor Plan Second Story
Plan Collection

Can I modify this plan?

Yes! This plan can be customized—contact us for a free quote.

Additional Notes from Designer

PLEASE NOTE: Materials Lists are based on the STOCK plan ONLY without modifications! Custom materials lists are available if you modify a plan. Please ask for a quote.

House Plan Description

In this lovely home, the Mediterranean is as close as your front door. Arched dooways lead from the spacious foyer to the living room and formal dining room, both featuring stepped ceilings. Nearby, a study provides an ideal spot for relaxation or television viewing. The kitchen is adjacent to the family room, and contains a large island cooktop, built-in desk, and handsome dinette area. The butler's pantry offers convenient service to the dining room. The master suite is decidedly romantic with its European balcony and tray ceiling. The master bath features a huge walk-in closet, dual sinks,...

Home Details

Summary
Plan #:165-1106
Starting at:$2050.00
Floors:2
Bedrooms:4
Full Baths:3
Half Baths:0
Garage:
Square Footage
Heated Area:2891 Sq. Ft.
First Floor:1483 Sq. Ft.
Second Floor:1408 Sq. Ft.
Unheated Area:
Dimensions
Architectural Styles
Exterior Wall Material
Stucco
Roofing Type
Hip
Roofing Material
Asphalt Shingles
Roof Pitch
10/12Other
Ceiling Height
9 Foot Ceiling8 Foot Ceiling
Special Feature
FireplaceDining RoomHome OfficeMud RoomFamily RoomLibraryColor PhotosSplit BathroomVaulted CeilingsBalconySecond Level Laundry
Garage Type
Attached GarageSide Entry
Fireplaces
One Fireplace
Exterior Wall Framing
2x6Concrete
Building Lot Type
Flat Site
Kitchen Features
Kitchen IslandButler's PantryNook/Breakfast AreaWalk-in PantryPeninsula/Eating BarEat-In Kitchen
Porches and Exterior Features
Covered Front Porch
Master Suite Features
Master BathroomWalk In ClosetSitting AreaPrivate DeckSecond Floor Master

What’s Included

Most plan sets include the following:

icon text-secondary-400 includedFoundation plan

icon text-secondary-400 includedFloor plan(s)

icon text-secondary-400 includedExterior elevations

icon text-secondary-400 includedBuilding cross sections

icon text-secondary-400 includedRoof plan

icon text-secondary-400 includedNotes & details

What’s Not Included

These items are  NOT included:

icon text-secondary-400 includedArchitectural or Engineering Stamp - handled locally if required.

icon text-secondary-400 includedSite Plan - handled locally when required.

icon text-secondary-400 includedMechanical Drawings (location of heating and air equipment and ductwork) - your subcontractors handle this.

icon text-secondary-400 includedPlumbing Drawings (drawings showing the actual plumbing pipe sizes and locations) - your subcontractors handle this.

icon text-secondary-400 includedEnergy calculations - handled locally when required.

Related House Plans

Plan Collection
Plan Collection
Plan Collection
Plan#153-1786
Starting at$1200
2363
Sq Ft
2
Story
4
Bed
3
Bath
2
Car
Plan Collection
Plan Collection
Plan Collection
Plan#120-2176
Starting at$1255
3124
Sq Ft
2
Story
4
Bed
3.5
Bath
2
Car
Plan Collection
Plan Collection
Plan Collection
Plan#178-1096
Starting at$1055
2252
Sq Ft
2
Story
4
Bed
3
Bath
3
Car
View All

Other Plans By This Designer

Plan Collection
Plan Collection
Plan Collection
Plan#165-1077
Starting at$2450
6690
Sq Ft
1
Story
5
Bed
5
Bath
4
Car
Plan Collection
Plan Collection
Plan Collection
Plan#165-1186
Starting at$2050
2889
Sq Ft
2
Story
4
Bed
3.5
Bath
2
Car
Plan Collection
Plan Collection
Plan Collection
Plan#165-1168
Starting at$2050
2456
Sq Ft
2
Story
3
Bed
2.5
Bath
2
Car