3-Bedroom, 3749 Sq Ft European Plan with Main Floor Master

This image shows the front elevation of these Victorian House Plans.

Images/Plans copyrighted by designer. Photos may reflect homeowner modifications.

About House Plan #165-1115

Sq Ft
3749
Sq Ft
Bedrooms
3
Bedrooms
Bathroom
4
Baths
Half Baths
0
Half Baths
Bedrooms
3
Cars
Bedrooms
1
Stories
Bedrooms
81' 0'
Width
Bedrooms
51
Depth
Starting at$2050.00What's included
STEP 1Bedrooms
STEP 2Bedrooms
STEP 3Bedrooms

Subtotal:$0
Plan Collection

How much will it cost to build?

Estimate your costs based on your location and materials.

Free Cost Instant Estimator

Floor Plans

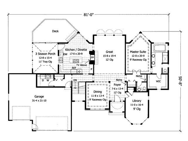
Floor Plan First Story
Floor Plan First Story
Floor Plan Basement
Floor Plan Basement
Plan Collection

Can I modify this plan?

Yes! This plan can be customized—contact us for a free quote.

Additional Notes from Designer

PLEASE NOTE: Materials Lists are based on the STOCK plan ONLY without modifications! Custom materials lists are available if you modify a plan. Please ask for a quote.

House Plan Description

This charming home's facade is highlighted by an arched entry, shining windows and handsome brick. Inside, the central Great Room is warmed by a two-sided fireplace that also looks into the kitchen, which hosts an island cooktop and access to a three-season porch. Past the dining room with its stepped ceiling and a library with a beautiful bay window, the master suite boasts a unique angled window treatment and a secluded bath with dual sinks, a garden tub and a walk-in closet. In the daylight basement, two secondary bedrooms enjoy a large recreation room with a fireplace and built-in...

Home Details

Summary
Plan #:165-1115
Starting at:$2050.00
Floors:1
Bedrooms:3
Full Baths:4
Half Baths:0
Garage:
Square Footage
Heated Area:3749 Sq. Ft.
First Floor:2167 Sq. Ft.
Unheated Area:
Basement:1582 Sq. Ft.
Dimensions
Architectural Styles
Exterior Wall Material
Vinyl SidingStucco
Roofing Type
Hip
Roofing Material
Asphalt Shingles
Ceiling Height
9 Foot Ceiling
Special Feature
FireplaceDining RoomMud RoomFamily RoomGame RoomMain Level LaundryLibraryStorageVaulted Ceilings
Garage Type
Attached GarageFront Entry
Fireplaces
Two Fireplaces
Exterior Wall Framing
2x6
Building Lot Type
Down Site
Kitchen Features
Kitchen IslandNook/Breakfast AreaPeninsula/Eating BarEat-In Kitchen
Porches and Exterior Features
Covered Front PorchSundeckScreened Porch/Sunroom
Master Suite Features
Main Floor MasterMaster BathroomWalk In ClosetSitting Area

What’s Included

Most plan sets include the following:

icon text-secondary-400 includedFoundation plan

icon text-secondary-400 includedFloor plan(s)

icon text-secondary-400 includedExterior elevations

icon text-secondary-400 includedBuilding cross sections

icon text-secondary-400 includedRoof plan

icon text-secondary-400 includedNotes & details

What’s Not Included

These items are  NOT included:

icon text-secondary-400 includedArchitectural or Engineering Stamp - handled locally if required.

icon text-secondary-400 includedSite Plan - handled locally when required.

icon text-secondary-400 includedMechanical Drawings (location of heating and air equipment and ductwork) - your subcontractors handle this.

icon text-secondary-400 includedPlumbing Drawings (drawings showing the actual plumbing pipe sizes and locations) - your subcontractors handle this.

icon text-secondary-400 includedEnergy calculations - handled locally when required.

Related House Plans

Plan Collection
Plan Collection
Plan Collection
Plan#165-1079
Starting at$2050
3950
Sq Ft
1
Story
3
Bed
4
Bath
3
Car
Plan Collection
Plan Collection
Plan Collection
Plan#175-1149
Starting at$1250
4354
Sq Ft
1
Story
3
Bed
4.5
Bath
3
Car
Plan Collection
Plan Collection
Plan Collection
Plan#165-1000
Starting at$2050
3553
Sq Ft
1
Story
3
Bed
4
Bath
3
Car
View All

Other Plans By This Designer

Plan Collection
Plan Collection
Plan Collection
Plan#165-1077
Starting at$2450
6690
Sq Ft
1
Story
5
Bed
5
Bath
4
Car
Plan Collection
Plan Collection
Plan Collection
Plan#165-1186
Starting at$2050
2889
Sq Ft
2
Story
4
Bed
3.5
Bath
2
Car
Plan Collection
Plan Collection
Plan Collection
Plan#165-1168
Starting at$2050
2456
Sq Ft
2
Story
3
Bed
2.5
Bath
2
Car