2–5-Bed, 4261–7805 Sq Ft Luxury Plan with His & Her Walk-in Closets

Mediterranean House - Plan #161-1034.
Plan Collection View Video

Images/Plans copyrighted by designer. Photos may reflect homeowner modifications.

About House Plan #161-1034

Sq Ft
4261
Sq Ft
Bedrooms
2
Bedrooms
Bathroom
3
Baths
Half Baths
2
Half Baths
Bedrooms
4
Cars
Bedrooms
2
Stories
Bedrooms
123' 6'
Width
Bedrooms
103
Depth
Starting at$2950.00What's included
STEP 1Bedrooms
STEP 2Bedrooms
STEP 3Bedrooms

Subtotal:$0
Plan Collection

How much will it cost to build?

Estimate your costs based on your location and materials.

Free Cost Instant Estimator

Floor Plans

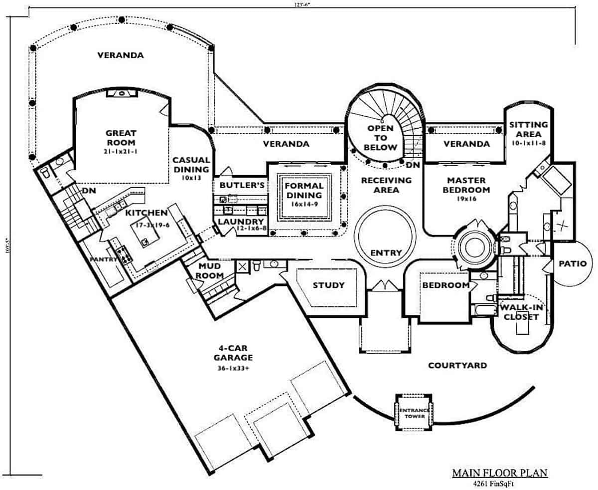
Main Level
Main Level
Lower Level
Lower Level
Plan Collection

Can I modify this plan?

Yes! This plan can be customized—contact us for a free quote.

Additional Notes from Designer

PLEASE NOTE! This designer's plans do NOT come with framing!

Square footage: 4261 finished sq. ft. above grade with 2–3 bedrooms, 3 full bathrooms, and 1 half bath; 4814 unfinished sq. ft. in a walkout basement. Finishing the basement according to the suggested floor plan yields 3544 finished sq. ft. with 2 bedrooms,  and 3 full bathrooms, and 1 half bath, plus 1270 sq. ft. of unfinished "cold" storage.

Please note there is no smaller version of this home. The home can only be reduced by a maximum of 10%. If more square footage is needed to be taken off, it is advised that the CAD File be purchased to work with someone locally to make the changes.

House Plan Description

This magnificent Luxury Mediterranean home has 4261 square feet of living space with 2 to 3 bedrooms, if you use the study as a bedroom suite. It comes with an unfinished walkout basement that would add 3544 square feet of heated and cooled living space if you chose to finish it according to the suggested floor plan, with 1270 square feet of unfinished storage. Finishing the basement according to the plan would add 2 bedrooms and 3.5 bathrooms.

You enter this luxurious home by passing through the entrance tower into the large courtyard and through the front porch. You are...

Home Details

Summary
Plan #:161-1034
Starting at:$2950.00
Floors:2
Bedrooms:2
Full Baths:3
Half Baths:2
Garage:
Square Footage
Heated Area:4261 Sq. Ft.
First Floor:4261 Sq. Ft.
Unheated Area:
Basement:4814 Sq. Ft.
Garage:1470 Sq. Ft.
Dimensions
Width:123' 6''
Depth:103' 6''
Ridge Height:29' 0''
Architectural Styles
Exterior Wall Material
StuccoRock/Stone
Roofing Type
Hip
Roofing Material
Tiles
Roof Pitch
5/12
Ceiling Height
10 Foot Ceiling
Special Feature
FireplaceDining RoomMud RoomFamily RoomGame RoomMain Level LaundryHome TheaterMedia RoomColor PhotosStorageDenWine CellarVideoOpen Floor PlanInterior PhotosL-Shaped
Garage Type
Attached GarageCourtyard Entry
Fireplaces
Two Fireplaces
Exterior Wall Framing
2x6
Building Lot Type
Down SiteView Lot
Kitchen Features
Kitchen IslandButler's PantryNook/Breakfast AreaWalk-in PantryPeninsula/Eating BarEat-In Kitchen
Porches and Exterior Features
CourtyardCovered Rear PorchSundeckPatio
Master Suite Features
Main Floor MasterTwo or More Master SuitesMaster BathroomWalk In ClosetSitting AreaPrivate Deck

What’s Included

Most plan sets include the following:

icon text-secondary-400 includedExterior elevations

icon text-secondary-400 includedMain Floor plan

icon text-secondary-400 includedArchitectural’ Foundation Plan

icon text-secondary-400 includedArchitectural’ Roof Plan

icon text-secondary-400 includedSections

icon text-secondary-400 includedMain Floor Electrical Plan

icon text-secondary-400 includedNo Framing

What’s Not Included

These items are  NOT included:

icon text-secondary-400 includedArchitectural or Engineering Stamp - handled locally if required.

icon text-secondary-400 includedSite Plan - handled locally when required.

icon text-secondary-400 includedPlumbing Drawings (drawings showing the actual plumbing pipe sizes and locations) - your subcontractors handle this.

icon text-secondary-400 includedEnergy calculations - handled locally when required.

Related House Plans

Plan Collection
Plan Collection
Plan Collection
Plan#195-1295
Starting at$2420
5323
Sq Ft
2
Story
2
Bed
3.5
Bath
0
Car
Plan Collection
Plan Collection
Plan Collection
Plan#175-1167
Starting at$1750
4370
Sq Ft
2
Story
2
Bed
3.5
Bath
2
Car
Plan Collection
Plan Collection
Plan Collection
Plan#195-1338
Starting at$1250
3554
Sq Ft
2
Story
2
Bed
3
Bath
3
Car
View All

Other Plans By This Designer

Plan Collection
Plan Collection
Plan Collection
Plan#161-1145
Starting at$2650
3907
Sq Ft
2
Story
4
Bed
3.5
Bath
3
Car
Plan Collection
Plan Collection
Plan Collection
Plan#161-1077
Starting at$4500
6563
Sq Ft
2
Story
5
Bed
5.5
Bath
5
Car
Plan Collection
Plan Collection
Plan Collection
Plan#161-1084
Starting at$4200
5170
Sq Ft
2
Story
5
Bed
5.5
Bath
3
Car