4-Bedroom, 3237 Sq Ft Farmhouse Plan with Mud Room

Farmhouse home (ThePlanCollection: Plan #161-1124)

Images/Plans copyrighted by designer. Photos may reflect homeowner modifications.

About House Plan #161-1124

Sq Ft
3237
Sq Ft
Bedrooms
4
Bedrooms
Bathroom
4
Baths
Half Baths
0
Half Baths
Bedrooms
3
Cars
Bedrooms
1.5
Stories
Bedrooms
64' 6'
Width
Bedrooms
75
Depth
Starting at$2200.00What's included
STEP 1Bedrooms
STEP 2Bedrooms
STEP 3Bedrooms

Subtotal:$0
Plan Collection

How much will it cost to build?

Estimate your costs based on your location and materials.

Free Cost Instant Estimator

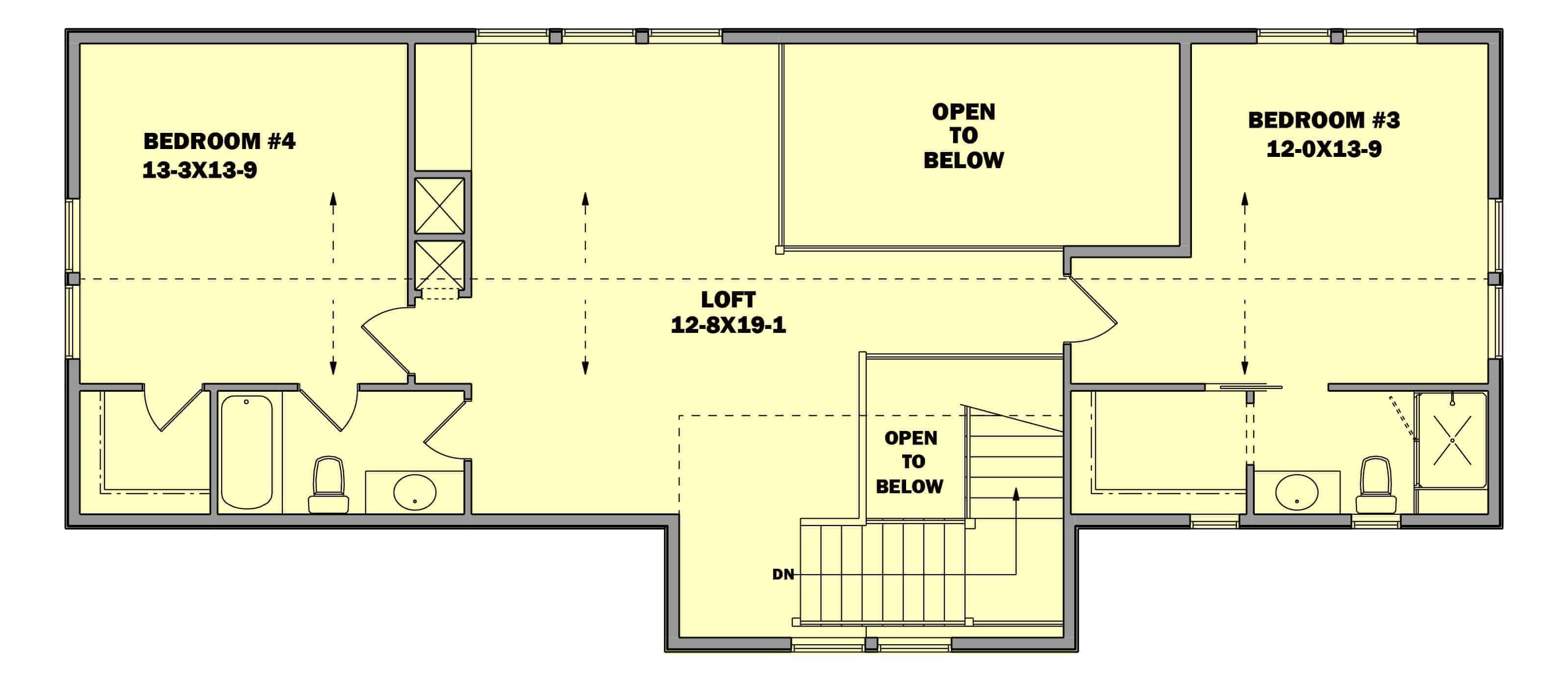
Floor Plans

Floor Plan Main Level
Floor Plan Main Level
Floor Plan Upper Level
Floor Plan Upper Level
Plan Collection

Can I modify this plan?

Yes! This plan can be customized—contact us for a free quote.

Additional Notes from Designer

PLEASE NOTE! This designer's plans do NOT come with framing!

House Plan Description

Designed to be a true example of exquisite craftsmanship, refinement, and sophistication, this luxurious Farmhouse style home may well be your family’s top choice once they get a look at it. Covering a total heated and cooled area of 3237 square feet with a 985-square-foot oversize garage, the house offers its residents comfort and a sumptuous ambiance in its well designed open plan.

From the front entry, the porch steps lead directly to the main entrance door, which opens to the foyer leading to an even grander area of the Great Room...

Home Details

Summary
Plan #:161-1124
Starting at:$2200.00
Floors:1.5
Bedrooms:4
Full Baths:4
Half Baths:0
Garage:
Square Footage
Heated Area:3237 Sq. Ft.
First Floor:2261 Sq. Ft.
Second Floor:976 Sq. Ft.
Unheated Area:
Basement:2261 Sq. Ft.
Garage:985 Sq. Ft.
Porch:606 Sq. Ft.
Dimensions
Width:64' 6''
Depth:75' 6''
Architectural Styles
Exterior Wall Material
Rock/StoneWood Siding
Roofing Type
Gable
Roofing Material
Asphalt ShinglesMetal
Roof Pitch
10/12
Ceiling Height
10 Foot Ceiling8 Foot Ceiling
Special Feature
FireplaceDining RoomHome OfficeMud RoomFamily RoomMain Level LaundryColor PhotosLoftSplit BathroomVaulted CeilingsOpen Floor PlanInterior Photos
Garage Type
Attached GarageFront Entry
Fireplaces
One Fireplace
Exterior Wall Framing
2x6
Kitchen Features
Kitchen IslandWalk-in PantryPeninsula/Eating Bar
Porches and Exterior Features
Covered Front PorchCovered Rear Porch
Master Suite Features
Main Floor MasterMaster BathroomWalk In ClosetSplit Master Bedroom

What’s Included

Most plan sets include the following:

icon text-secondary-400 includedExterior elevations

icon text-secondary-400 includedMain Floor plan

icon text-secondary-400 includedArchitectural’ Foundation Plan

icon text-secondary-400 includedArchitectural’ Roof Plan

icon text-secondary-400 includedSections

icon text-secondary-400 includedMain Floor Electrical Plan

icon text-secondary-400 includedNo Framing

What’s Not Included

These items are  NOT included:

icon text-secondary-400 includedArchitectural or Engineering Stamp - handled locally if required.

icon text-secondary-400 includedSite Plan - handled locally when required.

icon text-secondary-400 includedPlumbing Drawings (drawings showing the actual plumbing pipe sizes and locations) - your subcontractors handle this.

icon text-secondary-400 includedEnergy calculations - handled locally when required.

Related House Plans

Plan Collection
Plan Collection
Plan Collection
Plan#193-1089
Starting at$1850
3474
Sq Ft
1.5
Story
4
Bed
4
Bath
3
Car
Plan Collection
Plan Collection
Plan Collection
Plan#178-1322
Starting at$1085
2796
Sq Ft
1.5
Story
4
Bed
4
Bath
3
Car
Plan Collection
Plan Collection
Plan Collection
Plan#153-1205
Starting at$1200
3969
Sq Ft
1.5
Story
4
Bed
4
Bath
3
Car
View All

Other Plans By This Designer

Plan Collection
Plan Collection
Plan Collection
Plan#161-1145
Starting at$2650
3907
Sq Ft
2
Story
4
Bed
3.5
Bath
3
Car
Plan Collection
Plan Collection
Plan Collection
Plan#161-1077
Starting at$4500
6563
Sq Ft
2
Story
5
Bed
5.5
Bath
5
Car
Plan Collection
Plan Collection
Plan Collection
Plan#161-1084
Starting at$4200
5170
Sq Ft
2
Story
5
Bed
5.5
Bath
3
Car