5-Bedroom, 4580 Sq Ft Shingle Plan with Second Floor Master

Front elevation of Shingle home (ThePlanCollection: House Plan #168-1132)

Images/Plans copyrighted by designer. Photos may reflect homeowner modifications.

About House Plan #168-1132

Sq Ft
4580
Sq Ft
Bedrooms
5
Bedrooms
Bathroom
5
Baths
Half Baths
0
Half Baths
Bedrooms
3
Cars
Bedrooms
2
Stories
Bedrooms
75' 3'
Width
Bedrooms
102
Depth
Starting at$3050.00What's included
STEP 1Bedrooms
STEP 2Bedrooms
STEP 3Bedrooms

Subtotal:$0
Plan Collection

How much will it cost to build?

Estimate your costs based on your location and materials.

Free Cost Instant Estimator

Floor Plans

Floor Plan Main Level
Floor Plan Main Level
Floor Plan Main Level
Floor Plan Main Level
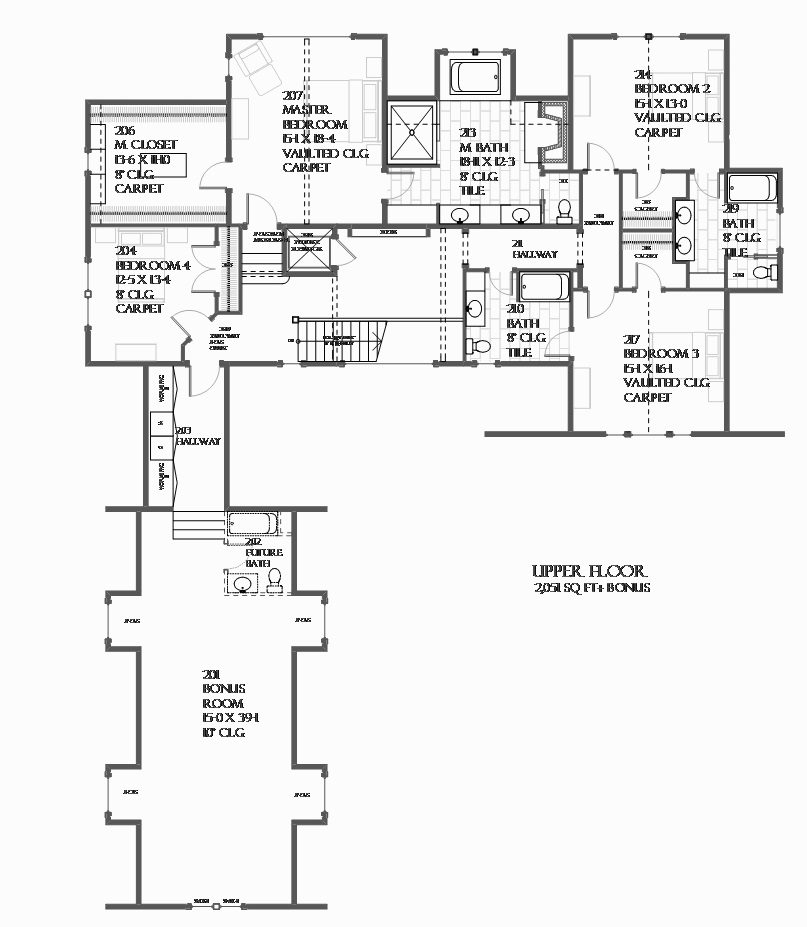
Floor Plan Upper Level
Floor Plan Upper Level
Plan Collection

Can I modify this plan?

Yes! This plan can be customized—contact us for a free quote.

House Plan Description

This lovely Shingle style home with Traditional influences (House Plan #168-1132) has 4580 square feet of living space. The 2 story floor plan includes 5 bedrooms.

Home Details

Summary
Plan #:168-1132
Starting at:$3050.00
Floors:2
Bedrooms:5
Full Baths:5
Half Baths:0
Garage:
Square Footage
Heated Area:4580 Sq. Ft.
First Floor:2529 Sq. Ft.
Second Floor:2051 Sq. Ft.
Unheated Area:
Dimensions
Width:75' 3''
Depth:102' 7''
Architectural Styles
Exterior Wall Material
Brick
Roofing Type
Gable/Dormer
Roofing Material
Asphalt Shingles
Roof Pitch
12/12
Ceiling Height
10 Foot Ceiling8 Foot Ceiling
Special Feature
FireplaceGuest RoomHome OfficeFamily RoomMain Level LaundryVaulted CeilingsSecond Level LaundryOpen Floor Plan
Garage Type
Attached GarageCourtyard Entry
Fireplaces
One Fireplace
Exterior Wall Framing
2x6
Kitchen Features
Kitchen IslandWalk-in PantryPeninsula/Eating Bar
Porches and Exterior Features
Wrap Around PorchCovered Rear Porch
Master Suite Features
Master BathroomWalk In ClosetSecond Floor Master

What’s Included

Most plan sets include the following:

icon text-secondary-400 includedTitle Sheet

icon text-secondary-400 includedFloor Plans

icon text-secondary-400 includedWindow & Door Sizes

icon text-secondary-400 includedExterior Elevations

icon text-secondary-400 includedBuilding and/or Wall sections

icon text-secondary-400 includedRoof plans

icon text-secondary-400 includedFoundation Plans

What’s Not Included

These items are  NOT included:

icon text-secondary-400 includedArchitectural or Engineering Stamp - handled locally if required.

icon text-secondary-400 includedSite Plan - handled locally when required.

icon text-secondary-400 includedMechanical Drawings (location of heating and air equipment and duct work) - your subcontractors handle this.

icon text-secondary-400 includedPlumbing Drawings (drawings showing the actual plumbing pipe sizes and locations) - your subcontractors handle this.

icon text-secondary-400 includedEnergy calculations - handled locally when required.

Related House Plans

Plan Collection
Plan Collection
Plan Collection
Plan#116-1106
Starting at$0
5165
Sq Ft
2
Story
5
Bed
5.5
Bath
3
Car
Plan Collection
Plan Collection
Plan Collection
Plan#161-1084
Starting at$4200
5170
Sq Ft
2
Story
5
Bed
5.5
Bath
3
Car
Plan Collection
Plan Collection
Plan Collection
Plan#175-1243
Starting at$4100
5653
Sq Ft
2
Story
5
Bed
5.5
Bath
3
Car
View All

Other Plans By This Designer

Plan Collection
Plan Collection
Plan Collection
Plan#168-1129
Starting at$2500
1930
Sq Ft
2
Story
3
Bed
2.5
Bath
2
Car
Plan Collection
Plan Collection
Plan Collection
Plan#168-1099
Starting at$2600
2609
Sq Ft
2
Story
4
Bed
3.5
Bath
3
Car
Plan Collection
Plan Collection
Plan Collection
Plan#168-1044
Starting at$1600
2798
Sq Ft
2
Story
4
Bed
3.5
Bath
0
Car