4-Bedroom, 3479 Sq Ft Beach House Plan with Photos

Front elevation of beach home (ThePlanCollection: House Plan #168-1143)

Images/Plans copyrighted by designer. Photos may reflect homeowner modifications.

About House Plan #168-1143

Sq Ft
3479
Sq Ft
Bedrooms
4
Bedrooms
Bathroom
3
Baths
Half Baths
1
Half Baths
Bedrooms
2
Cars
Bedrooms
3
Stories
Bedrooms
30' 0'
Width
Bedrooms
68
Depth
Starting at$2500.00What's included
STEP 1Bedrooms
STEP 2Bedrooms
STEP 3Bedrooms

Subtotal:$0
Plan Collection

How much will it cost to build?

Estimate your costs based on your location and materials.

Free Cost Instant Estimator

Floor Plans

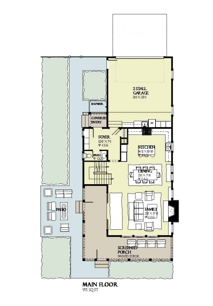
Main Level
Main Level
Upper Level
Upper Level
Third Story
Third Story
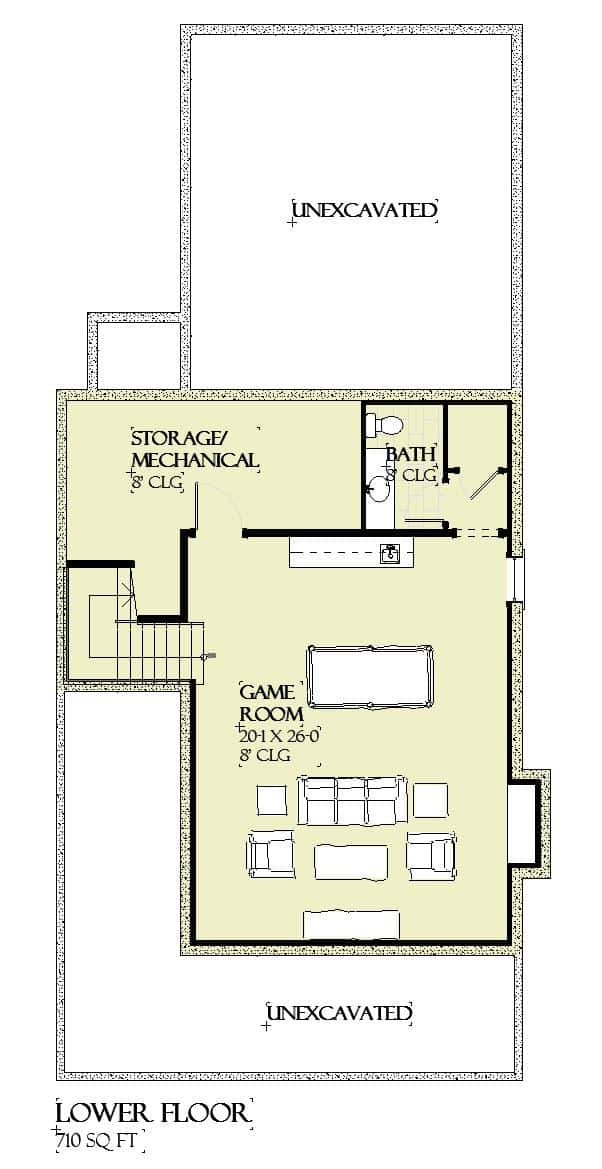
Lower Level
Lower Level
Plan Collection

Can I modify this plan?

Yes! This plan can be customized—contact us for a free quote.

House Plan Description

This beautiful beach home with Craftsman influences is 3,479 square feet with 4 bedrooms, 3.5 baths, and a 2-car garage. This stunning home also features these wonderful amenities:

  • Wraparound Deck
  • Family Room, Game Room
  • Spacious Dining Area
  • Kid's Nook
  • Master Bedroom with Walk-in Closet
  • Balcony
  • Covered Breezeway
  • Open Floor Plan

Home Details

Summary
Plan #:168-1143
Starting at:$2500.00
Floors:3
Bedrooms:4
Full Baths:3
Half Baths:1
Garage:
Square Footage
Heated Area:3479 Sq. Ft.
Basement:710 Sq. Ft.
First Floor:971 Sq. Ft.
Second Floor:1253 Sq. Ft.
Third Floor:545 Sq. Ft.
Unheated Area:
Dimensions
Architectural Styles
Exterior Wall Material
Vinyl SidingWood Siding
Roofing Type
Gable
Roofing Material
Asphalt ShinglesMetal
Roof Pitch
11/12
Ceiling Height
9 Foot Ceiling8 Foot Ceiling
Special Feature
FireplaceMud RoomFamily RoomGame RoomMain Level LaundryColor PhotosStorageBalconySecond Level LaundryOpen Floor PlanInterior Photos
Garage Type
Attached GarageRear Entry
Fireplaces
Two Fireplaces
Exterior Wall Framing
2x6
Building Lot Type
Down SiteNarrow Lot DesignView Lot
Kitchen Features
Kitchen IslandOutdoor KitchenEat-In Kitchen
Porches and Exterior Features
BreezewayCovered Front PorchSundeckScreened Porch/Sunroom
Master Suite Features
Fireplace in MasterMaster BathroomWalk In ClosetSitting AreaSecond Floor Master

What’s Included

Most plan sets include the following:

icon text-secondary-400 includedTitle Sheet

icon text-secondary-400 includedFloor Plans

icon text-secondary-400 includedWindow & Door Sizes

icon text-secondary-400 includedExterior Elevations

icon text-secondary-400 includedBuilding and/or Wall sections

icon text-secondary-400 includedRoof plans

icon text-secondary-400 includedFoundation Plans

What’s Not Included

These items are  NOT included:

icon text-secondary-400 includedArchitectural or Engineering Stamp - handled locally if required.

icon text-secondary-400 includedSite Plan - handled locally when required.

icon text-secondary-400 includedMechanical Drawings (location of heating and air equipment and duct work) - your subcontractors handle this.

icon text-secondary-400 includedPlumbing Drawings (drawings showing the actual plumbing pipe sizes and locations) - your subcontractors handle this.

icon text-secondary-400 includedEnergy calculations - handled locally when required.

Related House Plans

Plan Collection
Plan Collection
Plan Collection
Plan#175-1036
Starting at$1400
3763
Sq Ft
3
Story
4
Bed
3
Bath
4
Car
Plan Collection
Plan Collection
Plan Collection
Plan#168-1120
Starting at$2800
3470
Sq Ft
3
Story
4
Bed
3.5
Bath
2
Car
Plan Collection
Plan Collection
Plan Collection
Plan#146-3004
Starting at$1285
3968
Sq Ft
3
Story
4
Bed
3.5
Bath
3
Car
View All

Other Plans By This Designer

Plan Collection
Plan Collection
Plan Collection
Plan#168-1132
Starting at$3050
4580
Sq Ft
2
Story
5
Bed
5
Bath
3
Car
Plan Collection
Plan Collection
Plan Collection
Plan#168-1129
Starting at$2500
1930
Sq Ft
2
Story
3
Bed
2.5
Bath
2
Car
Plan Collection
Plan Collection
Plan Collection
Plan#168-1099
Starting at$2600
2609
Sq Ft
2
Story
4
Bed
3.5
Bath
3
Car