Estimate your costs based on your location and materials.
Yes! This plan can be customized—contact us for a free quote.
Yes! This plan can be customized—contact us for a free quote.
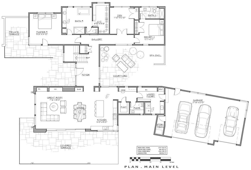
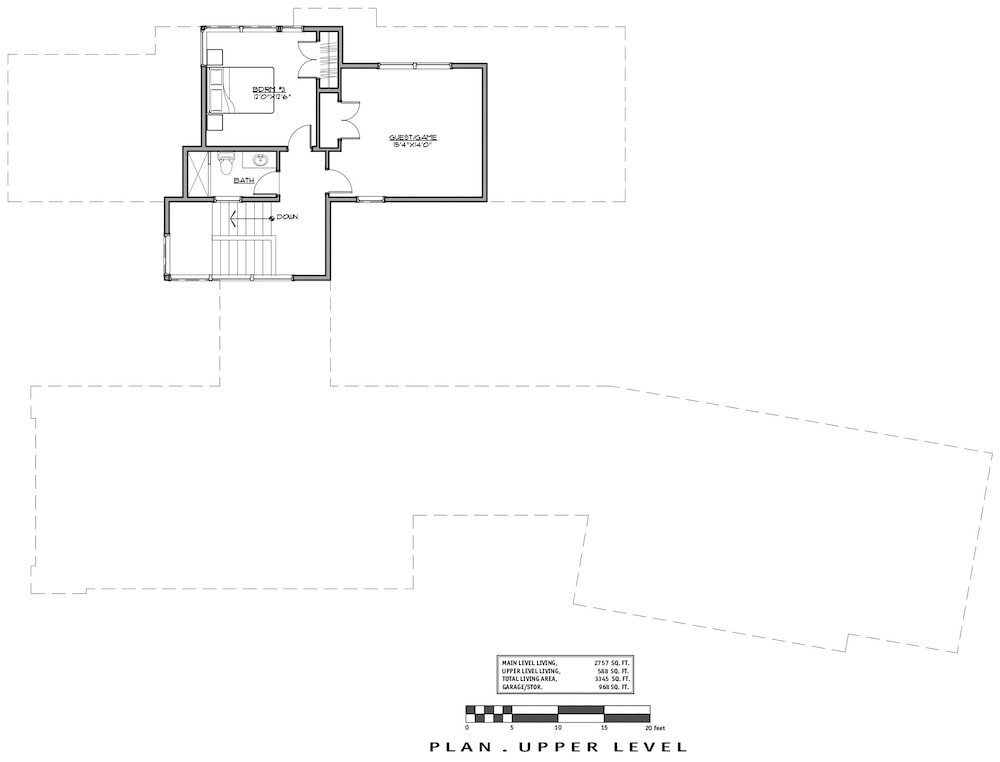
You will be awed by the whimsical play of rhythm and balance of this two-story Modern style home with courtyard plus garage at rear. The house has 3,345 square feet of heated area and a total area of 4,313 square feet of finished and unfinished space. This is a well-zoned floor plan, with public spaces transitioning into semi-private communal spaces toward quiet private bedroom spaces, which you will surely love.
The covered terrace ushers you to a large entrance door with sidelights. Upon entering the house, the open floor plan on the right gives you an ample amount of breathing...
Estimate your costs based on your location and materials.
All sales of house plans, modifications, and other products found on this site are final. No refunds or exchanges can be given once your order has begun the fulfillment process. Please see our Policies for additional information.
All plans offered on ThePlanCollection.com are designed to conform to the local building codes when and where the original plan was drawn.
The homes as shown in photographs and renderings may differ from the actual blueprints. For more detailed information, please review the floor plan images herein carefully.
Estimate your costs based on your location and materials.