3-Bedroom, 3642 Sq Ft Rustic Plan with Fireplace

Rustic home (ThePlanCollection: Plan #198-1125)

Images/Plans copyrighted by designer. Photos may reflect homeowner modifications.

About House Plan #198-1125

Sq Ft
3642
Sq Ft
Bedrooms
3
Bedrooms
Bathroom
3
Baths
Half Baths
1
Half Baths
Bedrooms
3
Cars
Bedrooms
1.5
Stories
Bedrooms
104' 6'
Width
Bedrooms
84
Depth
Starting at$3400.00What's included
STEP 1Bedrooms
STEP 2Bedrooms
STEP 3Bedrooms

Subtotal:$0
Plan Collection

How much will it cost to build?

Estimate your costs based on your location and materials.

Free Cost Instant Estimator

Floor Plans

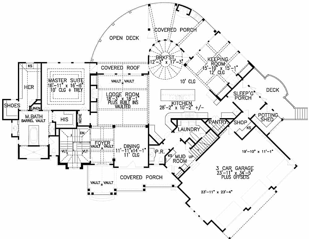
Floor Plan Main Level
Floor Plan Main Level
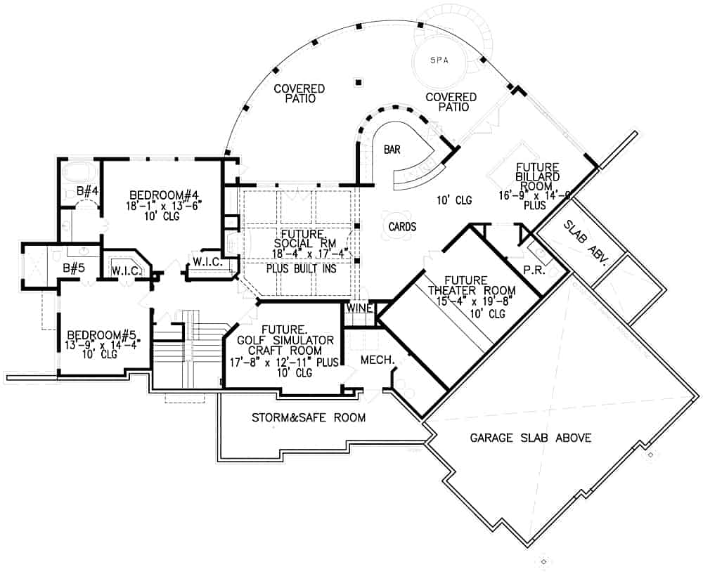
Floor Plan Upper Level
Floor Plan Upper Level
Floor Plan Basement
Floor Plan Basement
Plan Collection

Can I modify this plan?

Yes! This plan can be customized—contact us for a free quote.

Additional Notes from Designer

NO Material lists.

House Plan Description

This elegant and luxurious Rustic Farmhouse style home is truly admirable. The house has 3 bedrooms, 3 bathrooms, 1 half bathroom, and an open floor plan living area with awesome vaulted ceiling. It has an 860-square-foot 3-car garage diagonally oriented at the right side with 2 bedrooms, 2 baths, and a multipurpose room on the upper level above the garage.

The grand front covered porch protects the vaulted foyer that leads to lodge room, dining room, kitchen, and breakfast area. The attached open deck, covered porch, and keeping room are meant to further enhance...

Home Details

Summary
Plan #:198-1125
Starting at:$3400.00
Floors:1.5
Bedrooms:3
Full Baths:3
Half Baths:1
Garage:
Square Footage
Heated Area:3642 Sq. Ft.
First Floor:2887 Sq. Ft.
Second Floor:755 Sq. Ft.
Unheated Area:
Garage:860 Sq. Ft.
Dimensions
Width:104' 6''
Architectural Styles
Exterior Wall Material
Vinyl SidingRock/StoneWood Siding
Roofing Type
GableGable/Dormer
Roofing Material
Asphalt Shingles
Ceiling Height
10 Foot Ceiling
Special Feature
FireplaceDining RoomMud RoomFamily RoomMain Level LaundrySplit BathroomStorageVaulted CeilingsWorkshopOpen Floor Plan
Garage Type
Attached GarageSide Entry
Fireplaces
Three Fireplaces
Building Lot Type
Corner Lot
Kitchen Features
Kitchen IslandNook/Breakfast AreaWalk-in PantryPeninsula/Eating BarEat-In Kitchen
Porches and Exterior Features
Covered Front PorchCovered Rear PorchSundeck
Master Suite Features
Main Floor MasterMaster BathroomWalk In ClosetSplit Master Bedroom

What’s Included

Most plan sets include the following:

icon text-secondary-400 includedExterior elevations

icon text-secondary-400 includedFoundation plan

icon text-secondary-400 includedDetailed floor plans

icon text-secondary-400 includedInterior details

icon text-secondary-400 includedRoof plan

icon text-secondary-400 includedCross-section details

icon text-secondary-400 includedElectrical layout

What’s Not Included

These items are  NOT included:

icon text-secondary-400 includedArchitectural or Engineering Stamp - handled locally if required.

icon text-secondary-400 includedSite Plan - handled locally when required.

icon text-secondary-400 includedMechanical Drawings (location of heating and air equipment and ductwork) - your subcontractors handle this.

icon text-secondary-400 includedPlumbing Drawings (drawings showing the actual plumbing pipe sizes and locations) - your subcontractors handle this.

icon text-secondary-400 includedEnergy calculations - handled locally when required.

Related House Plans

Plan Collection
Plan Collection
Plan Collection
Plan#153-1944
Starting at$2850
4384
Sq Ft
1.5
Story
3
Bed
3.5
Bath
3
Car
Plan Collection
Plan Collection
Plan Collection
Plan#202-1024
Starting at$995
3345
Sq Ft
1.5
Story
3
Bed
3.5
Bath
3
Car
Plan Collection
Plan Collection
Plan Collection
Plan#198-1032
Starting at$2795
3480
Sq Ft
1.5
Story
3
Bed
3.5
Bath
3
Car
View All

Other Plans By This Designer

Plan Collection
Plan Collection
Plan Collection
Plan#198-1053
Starting at$2195
2498
Sq Ft
1.5
Story
3
Bed
3
Bath
3
Car
Plan Collection
Plan Collection
Plan Collection
Plan#198-1054
Starting at$2630
4376
Sq Ft
2
Story
4
Bed
4.5
Bath
3
Car
Plan Collection
Plan Collection
Plan Collection
Plan#198-1060
Starting at$1985
3970
Sq Ft
2
Story
5
Bed
4.5
Bath
2
Car