2-Bedroom, 2041 Sq Ft Country Plan with Main Floor Master

Main image for house plan # 3790

Images/Plans copyrighted by designer. Photos may reflect homeowner modifications.

About House Plan #153-1553

Sq Ft
2041
Sq Ft
Bedrooms
4
Bedrooms
Bathroom
2
Baths
Half Baths
1
Half Baths
Bedrooms
2
Cars
Bedrooms
1.5
Stories
Bedrooms
50' 6'
Width
Bedrooms
54
Depth
Starting at$1000.00What's included
STEP 1Bedrooms
STEP 2Bedrooms
STEP 3Bedrooms

Subtotal:$0
Plan Collection

How much will it cost to build?

Estimate your costs based on your location and materials.

Free Cost Instant Estimator

Floor Plans

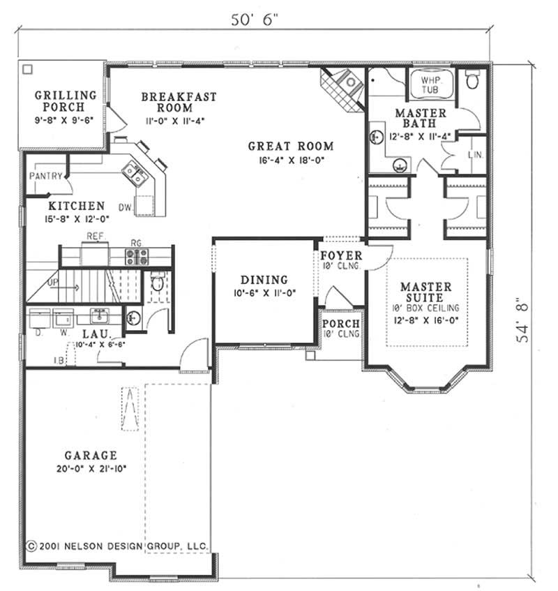
Main Floor Plan
Main Floor Plan
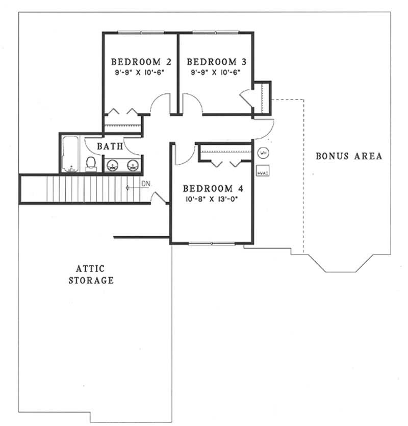
Upper Level Floor Plan
Upper Level Floor Plan
Plan Collection

Can I modify this plan?

Yes! This plan can be customized—contact us for a free quote.

Additional Notes from Designer

Plans by this designer do NOT usually come with FRAMING - some plans may have framing available for an extra fee - please contact us to find out about a specific plan & we will check with the designer!! Additionally: For this designer, if you choose optional features such as but not limited to: 2x6 framing, reverse or optional basement, the designer will need an additional 2-5 business days to adjust the plan accordingly. Please keep this in mind when choosing your shipping option. If you would like Express or Priority shipping, the designer will ship the plan to you using the method you choose but you will still have the 2-5 business day waiting period BEFORE they ship! Please feel free to contact us with any questions! PLEASE NOTE: Multi-licenses are available. The plans do not come with ICF specifications. If ICF construction method is desired, the CAD plan can be purchased and then forwarded to the ICF dealer and they’ll do a takeoff to assist with that specific projec

House Plan Description

Drive into a courtyard entry garage and retreat to your French Country home. A beautiful floor plan has been designed that is very family oriented beginning with a porch and foyer with ten foot ceilings. Enter the foyer and travel into a massive great room adjoining the breakfast room with access to a grilling porch. The kitchen bar area makes grilling easy and gives extra seating for large family gatherings. The master suite enhanced by ten foot ceiling, is located on the main level and offers 'his and her' closets leading to the master bathroom full of amenities. As you travel...

Home Details

Summary
Plan #:153-1553
Starting at:$1000.00
Floors:1.5
Bedrooms:4
Full Baths:2
Half Baths:1
Garage:
Square Footage
Heated Area:2041 Sq. Ft.
First Floor:1495 Sq. Ft.
Second Floor:546 Sq. Ft.
Unheated Area:
Garage:419 Sq. Ft.
Porch:157 Sq. Ft.
Dimensions
Width:50' 6''
Depth:54' 8''
Ridge Height:27-7' 0''
Architectural Styles
Roofing Type
Gable
Roof Pitch
10/12
Ceiling Height
9 Foot Ceiling8 Foot Ceiling
Garage Type
Attached Garage
Porches and Exterior Features
Courtyard

What’s Included

Most plan sets include the following:

icon text-secondary-400 included floorplan

icon text-secondary-400 included 4 side exterior elevations,

icon text-secondary-400 included electrical plan,

icon text-secondary-400 included birds-eye view of the roof,

icon text-secondary-400 included foundation plan,

icon text-secondary-400 included and some miscellaneous details. Please Note We do not offer plumbing, HVAC, or window scheduling. This will have to be done on a local level, probably by your building team!

What’s Not Included

These items are  NOT included:

icon text-secondary-400 includedArchitectural or Engineering Stamp - handled locally if required.

icon text-secondary-400 includedSite Plan - handled locally when required.

icon text-secondary-400 includedMechanical Drawings (location of heating and air equipment and ductwork) - your subcontractors handle this.

icon text-secondary-400 includedPlumbing Drawings (drawings showing the actual plumbing pipe sizes and locations) - your subcontractors handle this.

icon text-secondary-400 includedEnergy calculations - handled locally when required.

Related House Plans

Plan Collection
Plan Collection
Plan Collection
Plan#153-1940
Starting at$1550
2180
Sq Ft
1.5
Story
4
Bed
2.5
Bath
3
Car
Plan Collection
Plan Collection
Plan Collection
Plan#142-1131
Starting at$1345
2420
Sq Ft
1.5
Story
4
Bed
2.5
Bath
3
Car
Plan Collection
Plan Collection
Plan Collection
Plan#142-1160
Starting at$1345
2399
Sq Ft
1.5
Story
4
Bed
2.5
Bath
2
Car
View All

Other Plans By This Designer

Plan Collection
Plan Collection
Plan Collection
Plan#153-1432
Starting at$1200
2096
Sq Ft
1
Story
3
Bed
2.5
Bath
3
Car
Plan Collection
Plan Collection
Plan Collection
Plan#153-1744
Starting at$800
1800
Sq Ft
1
Story
3
Bed
2
Bath
2
Car
Plan Collection
Plan Collection
Plan Collection
Plan#153-1608
Starting at$700
1382
Sq Ft
1
Story
3
Bed
2
Bath
2
Car