4-Bedroom, 2550 Sq Ft Colonial Plan with Master Bathroom

Main image for house plan # 6012

Images/Plans copyrighted by designer. Photos may reflect homeowner modifications.

About House Plan #113-1027

Sq Ft
2550
Sq Ft
Bedrooms
4
Bedrooms
Bathroom
3
Baths
Half Baths
0
Half Baths
Bedrooms
2
Cars
Bedrooms
2
Stories
Bedrooms
66' 0'
Width
Bedrooms
70
Depth
Starting at$625.00What's included
STEP 1Bedrooms
STEP 2Bedrooms
STEP 3Bedrooms

Subtotal:$0
Plan Collection

How much will it cost to build?

Estimate your costs based on your location and materials.

Free Cost Instant Estimator

Floor Plans

Floor Plans
Floor Plans
Plan Collection

Can I modify this plan?

Yes! This plan can be customized—contact us for a free quote.

House Plan Description

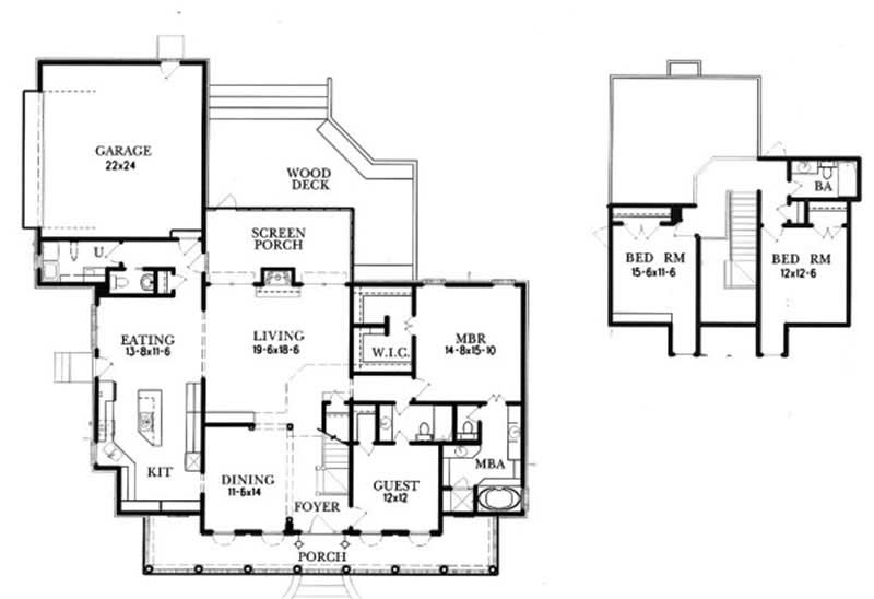
This Southern/California style home plan has four bedrooms, 3.5 bathrooms, side-entry two-car garage. Front porch leads in to foyer, dining room, living room, and guest room. Upper Level includes 2 bedrooms. Master bedroom has large walk-in closets and bathroom. Screen porch in rear turns to large wood deck. Kitchen with island, eating area.

Home Details

Summary
Plan #:113-1027
Starting at:$625.00
Floors:2
Bedrooms:4
Full Baths:3
Half Baths:0
Garage:
Square Footage
Heated Area:2550 Sq. Ft.
First Floor:1972 Sq. Ft.
Second Floor:578 Sq. Ft.
Unheated Area:
Dimensions
Ridge Height:28' 0''
Architectural Styles
Exterior Wall Material
BrickStucco
Roofing Type
Hip
Roof Pitch
10/12
Ceiling Height
9 Foot Ceiling
Special Feature
Dining RoomGuest Room
Garage Type
Attached Garage
Fireplaces
One Fireplace
Exterior Wall Framing
2x4

What’s Included

Most plan sets include the following:

icon text-secondary-400 includedInformation Cover Sheet

icon text-secondary-400 includedFoundation Plan

icon text-secondary-400 includedDetailed Floor Plans

icon text-secondary-400 includedWindow & Door Schedules

icon text-secondary-400 includedElectrical Layout

icon text-secondary-400 includedExterior Elevations

icon text-secondary-400 includedBuilding Sections

icon text-secondary-400 includedComplete Construction Details

What’s Not Included

These items are  NOT included:

icon text-secondary-400 includedArchitectural or Engineering Stamp - handled locally if required.

icon text-secondary-400 includedSite Plan - handled locally when required.

icon text-secondary-400 includedMechanical Drawings (location of heating and air equipment and ductwork) - your subcontractors handle this.

icon text-secondary-400 includedPlumbing Drawings (drawings showing the actual plumbing pipe sizes and locations) - your subcontractors handle this.

icon text-secondary-400 includedEnergy calculations - handled locally when required.

Related House Plans

Plan Collection
Plan Collection
Plan Collection
Plan#120-2176
Starting at$1255
3124
Sq Ft
2
Story
4
Bed
3.5
Bath
2
Car
Plan Collection
Plan Collection
Plan Collection
Plan#178-1096
Starting at$1055
2252
Sq Ft
2
Story
4
Bed
3
Bath
3
Car
Plan Collection
Plan Collection
Plan Collection
Plan#109-1191
Starting at$1495
2909
Sq Ft
2
Story
4
Bed
3.5
Bath
0
Car
View All

Other Plans By This Designer

Plan Collection
Plan Collection
Plan Collection
Plan#113-1060
Starting at$325
1719
Sq Ft
1
Story
3
Bed
2
Bath
2
Car
Plan Collection
Plan Collection
Plan Collection
Plan#113-1083
Starting at$400
3450
Sq Ft
2
Story
4
Bed
3
Bath
3
Car
Plan Collection
Plan Collection
Plan Collection
Plan#113-1063
Starting at$350
1835
Sq Ft
1
Story
3
Bed
2
Bath
2
Car