6-Bedroom, 2082 Sq Ft Contemporary Plan with Nook/Breakfast Area

Main image for house plan # 8250

Images/Plans copyrighted by designer. Photos may reflect homeowner modifications.

About House Plan #129-1045

Sq Ft
2082
Sq Ft
Bedrooms
6
Bedrooms
Bathroom
3
Baths
Half Baths
0
Half Baths
Bedrooms
0
Cars
Bedrooms
1
Stories
Bedrooms
79' 0'
Width
Bedrooms
48
Depth
Starting at$1149.50What's included
STEP 1Bedrooms
STEP 2Bedrooms
STEP 3Bedrooms

Subtotal:$0
Plan Collection

How much will it cost to build?

Estimate your costs based on your location and materials.

Free Cost Instant Estimator

Floor Plans

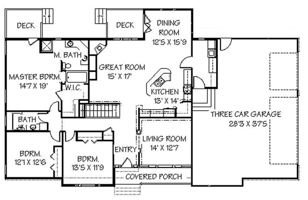
Floor Plan Main Level
Floor Plan Main Level
Plan Collection

Can I modify this plan?

Yes! This plan can be customized—contact us for a free quote.

House Plan Description

This is a great house plan with a simple design for cost effective construction that doesn't compromise its curb appeal. This plan has been one of our most popular plans offering all you need on one level with nice sized rooms and a spacious feel.

Home Details

Summary
Plan #:129-1045
Starting at:$1149.50
Floors:1
Bedrooms:6
Full Baths:3
Half Baths:0
Garage:
Square Footage
Heated Area:2082 Sq. Ft.
First Floor:2082 Sq. Ft.
Unheated Area:
Basement:2084 Sq. Ft.
Garage:1015 Sq. Ft.
Dimensions
Architectural Styles
Exterior Wall Material
Brick
Roofing Type
Gable
Roof Pitch
6/12
Ceiling Height
9 Foot Ceiling
Garage Type
Attached Garage
Fireplaces
One Fireplace
Exterior Wall Framing
2x6

What’s Included

Most plan sets include the following:

icon text-secondary-400 includedExterior elevations

icon text-secondary-400 includedFloor plans

icon text-secondary-400 includedFraming plans

icon text-secondary-400 includedCross-sections

icon text-secondary-400 includedElectrical layout

What’s Not Included

These items are  NOT included:

icon text-secondary-400 includedArchitectural or Engineering Stamp - handled locally if required.

icon text-secondary-400 includedSite Plan - handled locally when required.

icon text-secondary-400 includedMechanical Drawings (location of heating and air equipment and ductwork) - your subcontractors handle this.

icon text-secondary-400 includedPlumbing Drawings (drawings showing the actual plumbing pipe sizes and locations) - your subcontractors handle this.

icon text-secondary-400 includedEnergy calculations - handled locally when required.

Related House Plans

Plan Collection
Plan Collection
Plan Collection
Plan#135-1054
Starting at$1725
2597
Sq Ft
1
Story
6
Bed
3.5
Bath
3
Car
Plan Collection
Plan Collection
Plan Collection
Plan#187-1003
Starting at$1250
2343
Sq Ft
1
Story
6
Bed
3.5
Bath
3
Car
Plan Collection
Plan Collection
Plan Collection
Plan#135-1133
Starting at$1380
1821
Sq Ft
1
Story
6
Bed
3.5
Bath
2
Car
View All

Other Plans By This Designer

Plan Collection
Plan Collection
Plan Collection
Plan#129-1046
Starting at$1029
1490
Sq Ft
1
Story
3
Bed
2
Bath
3
Car
Plan Collection
Plan Collection
Plan Collection
Plan#129-1032
Starting at$1150
2318
Sq Ft
2
Story
5
Bed
2.5
Bath
3
Car
Plan Collection
Plan Collection
Plan Collection
Plan#129-1015
Starting at$1029
1035
Sq Ft
1.5
Story
2
Bed
1
Bath
2
Car