3-Bedroom, 2438 Sq Ft Contemporary Plan with Patio

Front view of Contemporary home (ThePlanCollection: House Plan #145-1824)

Images/Plans copyrighted by designer. Photos may reflect homeowner modifications.

About House Plan #145-1824

Sq Ft
2438
Sq Ft
Bedrooms
2
Bedrooms
Bathroom
3
Baths
Half Baths
0
Half Baths
Bedrooms
3
Cars
Bedrooms
2
Stories
Bedrooms
92' 0'
Width
Bedrooms
41
Depth
Starting at$950.00What's included
STEP 1Bedrooms
STEP 2Bedrooms
STEP 3Bedrooms

Subtotal:$0
Plan Collection

How much will it cost to build?

Estimate your costs based on your location and materials.

Free Cost Instant Estimator

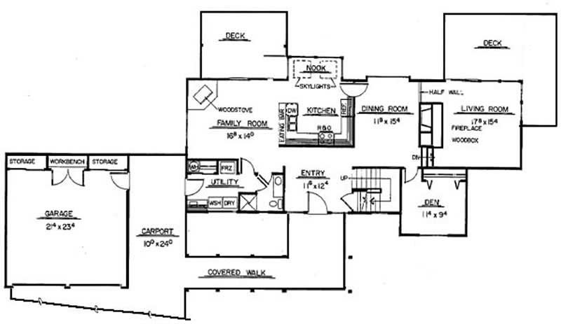
Floor Plans

Floor Plan First Story
Floor Plan First Story
Floor Plan Second Story
Floor Plan Second Story
Plan Collection

Can I modify this plan?

Yes! This plan can be customized—contact us for a free quote.

Additional Notes from Designer

NOTE: Due to a family emergency, NO modifications are available with this designer at this time. If you would like to purchase a CAD or Right Reading Reverse, please contact us for availability and price as not all plans are available in CAD or RRR.

House Plan Description

This gorgeous contemporary home with modern design elements has 2438 square feet of living space. The two story floor plan includes 2 bedrooms.

Home Details

Summary
Plan #:145-1824
Starting at:$950.00
Floors:2
Bedrooms:2
Full Baths:3
Half Baths:0
Garage:
Square Footage
Heated Area:2438 Sq. Ft.
First Floor:1414 Sq. Ft.
Second Floor:1024 Sq. Ft.
Unheated Area:
Garage:528 Sq. Ft.
Dimensions
Depth:41' 6''
Ridge Height:24' 0''
Architectural Styles
Roof Pitch
6/12
Garage Type
Attached Garage
Exterior Wall Framing
2x6

What’s Included

Most plan sets include the following:

icon text-secondary-400 includedFloor plans

icon text-secondary-400 includedFoundations

icon text-secondary-400 includedElevations

icon text-secondary-400 includedFraming

icon text-secondary-400 includedElectrical

icon text-secondary-400 includedRoofing

icon text-secondary-400 includedDetailed Construction Notes

What’s Not Included

These items are  NOT included:

icon text-secondary-400 includedArchitectural or Engineering Stamp - handled locally if required.

icon text-secondary-400 includedSite Plan - handled locally when required.

icon text-secondary-400 includedMechanical Drawings (location of heating and air equipment and ductwork) - your subcontractors handle this.

icon text-secondary-400 includedPlumbing Drawings (drawings showing the actual plumbing pipe sizes and locations) - your subcontractors handle this.

icon text-secondary-400 includedEnergy calculations - handled locally when required.

Related House Plans

Plan Collection
Plan Collection
Plan Collection
Plan#162-1058
Starting at$1200
2823
Sq Ft
2
Story
2
Bed
3.5
Bath
3
Car
Plan Collection
Plan Collection
Plan Collection
Plan#132-1323
Starting at$1245
2800
Sq Ft
2
Story
2
Bed
3
Bath
3
Car
Plan Collection
Plan Collection
Plan Collection
Plan#145-1857
Starting at$950
2283
Sq Ft
2
Story
2
Bed
3
Bath
2
Car
View All

Other Plans By This Designer

Plan Collection
Plan Collection
Plan Collection
Plan#145-1555
Starting at$1000
2778
Sq Ft
1
Story
3
Bed
2.5
Bath
4
Car
Plan Collection
Plan Collection
Plan Collection
Plan#145-1442
Starting at$800
770
Sq Ft
1
Story
2
Bed
1
Bath
0
Car
Plan Collection
Plan Collection
Plan Collection
Plan#145-1200
Starting at$900
1746
Sq Ft
1
Story
3
Bed
2
Bath
2
Car