3-Bedroom, 3386 Sq Ft Craftsman Plan with Master Bathroom

Main image for house plan # 9314

Images/Plans copyrighted by designer. Photos may reflect homeowner modifications.

About House Plan #115-1405

Sq Ft
3386
Sq Ft
Bedrooms
3
Bedrooms
Bathroom
4
Baths
Half Baths
2
Half Baths
Bedrooms
2
Cars
Bedrooms
2
Stories
Bedrooms
40' 0'
Width
Bedrooms
62
Depth
Starting at$2000.00What's included
STEP 1Bedrooms
STEP 2Bedrooms
STEP 3Bedrooms

Subtotal:$0
Plan Collection

How much will it cost to build?

Estimate your costs based on your location and materials.

Free Cost Instant Estimator

Floor Plans

Floor Plan Lower Story
Floor Plan Lower Story
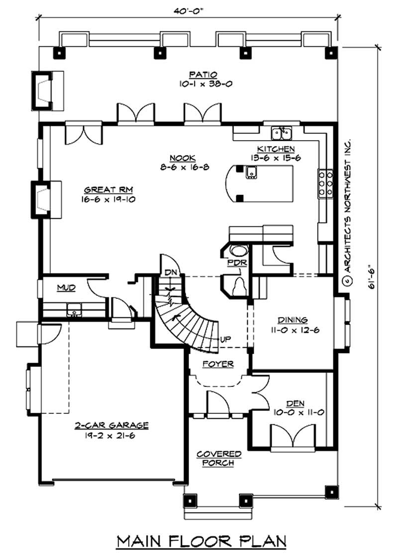
Floor Plan First Story
Floor Plan First Story
Floor Plan Second Story
Floor Plan Second Story
Plan Collection

Can I modify this plan?

Yes! This plan can be customized—contact us for a free quote.

Additional Notes from Designer

Please Note: The plans by this designer DO NOT include electrical plans or electrical layout plans. NOTE: If you are building this home in Washington State, please contact us BEFORE placing your order!

House Plan Description

SPS 2823 is a definite party pleaser. Guests and family alike are greeted by a foyer, which looks onto a grand staircase to the second floor. French doors open to a library/den/study, and French doors open from the den to the spacious Craftsman front porch; one of the staples of a true home of the category. This home offers a formal dining room conveniently located off of the kitchen and butlers kitchen. Two fireplaces on the main floor will keep you, your family, and guests warm inside the great room, or outside on the patio. A large mudroom and coat closet greet this home’s occupants...

Home Details

Summary
Plan #:115-1405
Starting at:$2000.00
Floors:2
Bedrooms:3
Full Baths:4
Half Baths:2
Garage:
Square Footage
Heated Area:3386 Sq. Ft.
First Floor:1400 Sq. Ft.
Second Floor:1423 Sq. Ft.
Unheated Area:
Basement:563 Sq. Ft.
Bonus Room:173 Sq. Ft.
Garage:414 Sq. Ft.
Dimensions
Ridge Height:25'0' 0''
Architectural Styles
Roof Pitch
8/12
Ceiling Height
9 Foot Ceiling8 Foot Ceiling
Special Feature
FireplaceDining RoomGuest RoomBonus RoomLibrary
Garage Type
Attached Garage
Fireplaces
Four Fireplaces
Building Lot Type
Narrow Lot Design

What’s Included

Most plan sets include the following:

icon text-secondary-400 includedCover Sheet

icon text-secondary-400 includedSchedule Sheet

icon text-secondary-400 includedDetail Sheet

icon text-secondary-400 includedFoundation Plan Sheet

icon text-secondary-400 includedFloor Plan/Floor Framing Sheet(s)

icon text-secondary-400 includedRoof Framing Plan Sheet

icon text-secondary-400 includedElevation Sheet

icon text-secondary-400 includedBuilding Section Sheet

What’s Not Included

These items are  NOT included:

icon text-secondary-400 includedArchitectural or Engineering Stamp - handled locally if required.

icon text-secondary-400 includedSite Plan - handled locally when required.

icon text-secondary-400 includedMechanical Drawings (location of heating and air equipment and ductwork) - your subcontractors handle this.

icon text-secondary-400 includedPlumbing Drawings (drawings showing the actual plumbing pipe sizes and locations) - your subcontractors handle this.

icon text-secondary-400 includedEnergy calculations - handled locally when required.

Related House Plans

Plan Collection
Plan Collection
Plan Collection
Plan#180-1047
Starting at$1550
3314
Sq Ft
2
Story
3
Bed
4.5
Bath
3
Car
Plan Collection
Plan Collection
Plan Collection
Plan#202-1002
Starting at$1200
3959
Sq Ft
2
Story
3
Bed
4.5
Bath
3
Car
Plan Collection
Plan Collection
Plan Collection
Plan#146-2144
Starting at$1285
3655
Sq Ft
2
Story
3
Bed
4.5
Bath
3
Car
View All

Other Plans By This Designer

Plan Collection
Plan Collection
Plan Collection
Plan#115-1370
Starting at$1400
1000
Sq Ft
2
Story
2
Bed
2
Bath
0
Car
Plan Collection
Plan Collection
Plan Collection
Plan#115-1150
Starting at$1600
2025
Sq Ft
2
Story
3
Bed
2.5
Bath
3
Car
Plan Collection
Plan Collection
Plan Collection
Plan#115-1371
Starting at$1400
1000
Sq Ft
2
Story
2
Bed
2
Bath
0
Car