4-Bedroom, 1296 Sq Ft Small House Plan with Nook/Breakfast Area

Front elevation of Small House Plans home (ThePlanCollection: House Plan #136-1011)

Images/Plans copyrighted by designer. Photos may reflect homeowner modifications.

About House Plan #136-1011

Sq Ft
1296
Sq Ft
Bedrooms
4
Bedrooms
Bathroom
2
Baths
Half Baths
0
Half Baths
Bedrooms
2
Cars
Bedrooms
1
Stories
Bedrooms
54' 0'
Width
Bedrooms
49
Depth
Starting at$1350.00What's included
STEP 1Bedrooms
STEP 2Bedrooms
STEP 3Bedrooms

Subtotal:$0
Plan Collection

How much will it cost to build?

Estimate your costs based on your location and materials.

Free Cost Instant Estimator

Floor Plans

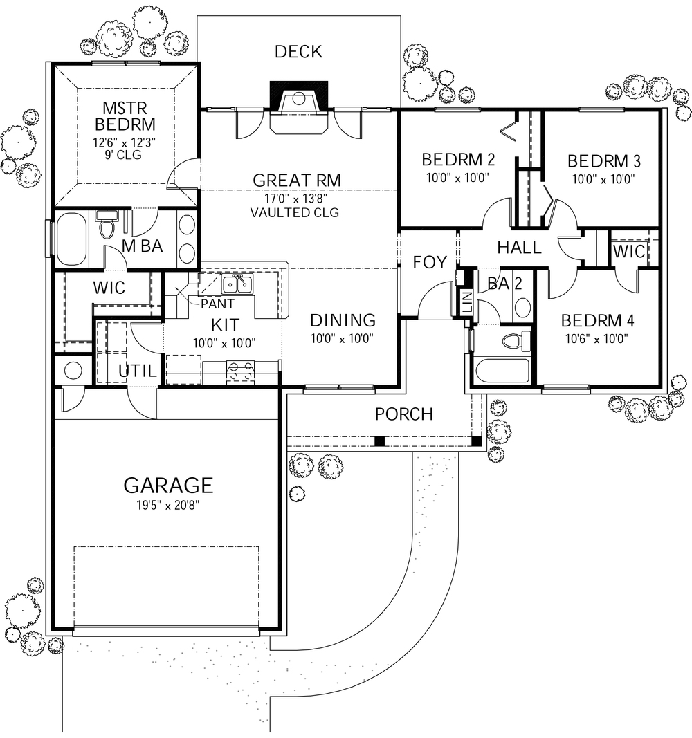
First Floor Plan
First Floor Plan
Plan Collection

Can I modify this plan?

Yes! This plan can be customized—contact us for a free quote.

Additional Notes from Designer

PLEASE NOTE: This plan may take 1-2 weeks to prepare prior to shipment.

House Plan Description

An efficient traditional home plan with a vaulted ceiling in the great room and a large covered front porch. A master suite with a coffered 9' ceiling also includes a large walk-in closet. A breakfast bar separates the kitchen from the great room and the dining room. An optional basement is accessed thru the garage.

Home Details

Summary
Plan #:136-1011
Starting at:$1350.00
Floors:1
Bedrooms:4
Full Baths:2
Half Baths:0
Garage:
Square Footage
Heated Area:1296 Sq. Ft.
First Floor:1296 Sq. Ft.
Unheated Area:
Dimensions
Depth:49' 6''
Architectural Styles
Exterior Wall Material
Brick
Special Feature
FireplaceDining RoomMain Level Laundry
Garage Type
Attached GarageFront Entry
Building Lot Type
Flat Site
Kitchen Features
Peninsula/Eating Bar
Porches and Exterior Features
Covered Front Porch
Master Suite Features
Main Floor MasterMaster BathroomWalk In Closet

What’s Included

Most plan sets include the following:

icon text-secondary-400 includedCover Sheet

icon text-secondary-400 includedFloor Plans

icon text-secondary-400 includedExterior Elevations

icon text-secondary-400 includedInterior Elevations

icon text-secondary-400 includedElectrical Layout

icon text-secondary-400 includedSchematic Framing Plan

icon text-secondary-400 includedRoof Plan

icon text-secondary-400 includedFoundation Plan (non-engineered)

icon text-secondary-400 includedGeneric wall sections & details​

What’s Not Included

These items are  NOT included:

icon text-secondary-400 includedArchitectural or Engineering Stamp - handled locally if required.

icon text-secondary-400 includedSite Plan - handled locally when required.

icon text-secondary-400 includedMechanical Drawings (location of heating and air equipment and ductwork) - your subcontractors handle this.

icon text-secondary-400 includedPlumbing Drawings (drawings showing the actual plumbing pipe sizes and locations) - your subcontractors handle this.

icon text-secondary-400 includedEnergy calculations - handled locally when required.

Related House Plans

Plan Collection
Plan Collection
Plan Collection
Plan#178-1109
Starting at$965
1451
Sq Ft
1
Story
4
Bed
2
Bath
2
Car
Plan Collection
Plan Collection
Plan Collection
Plan#117-1040
Starting at$895
1553
Sq Ft
1
Story
4
Bed
2
Bath
2
Car
Plan Collection
Plan Collection
Plan Collection
Plan#117-1047
Starting at$895
1512
Sq Ft
1
Story
4
Bed
2
Bath
2
Car
View All

Other Plans By This Designer

Plan Collection
Plan Collection
Plan Collection
Plan#136-1036
Starting at$1800
2002
Sq Ft
1
Story
3
Bed
2.5
Bath
2
Car
Plan Collection
Plan Collection
Plan Collection
Plan#136-1037
Starting at$1950
2772
Sq Ft
1
Story
4
Bed
3.5
Bath
2
Car
Plan Collection
Plan Collection
Plan Collection
Plan#136-1030
Starting at$2250
3716
Sq Ft
2
Story
4
Bed
4.5
Bath
3
Car