2-Bedroom, 1407 Sq Ft Cape Cod Plan with Walk In Closet

Front view of Cape Cod home (ThePlanCollection: House Plan #146-2995)

Images/Plans copyrighted by designer. Photos may reflect homeowner modifications.

About House Plan #146-2995

Sq Ft
1407
Sq Ft
Bedrooms
2
Bedrooms
Bathroom
2
Baths
Half Baths
0
Half Baths
Bedrooms
2
Cars
Bedrooms
2
Stories
Bedrooms
55' 0'
Width
Bedrooms
26
Depth
Starting at$885.00What's included
STEP 1Bedrooms
STEP 2Bedrooms
STEP 3Bedrooms

Subtotal:$0
Plan Collection

How much will it cost to build?

Estimate your costs based on your location and materials.

Free Cost Instant Estimator

Floor Plans

Floor Plan First Story
Floor Plan First Story
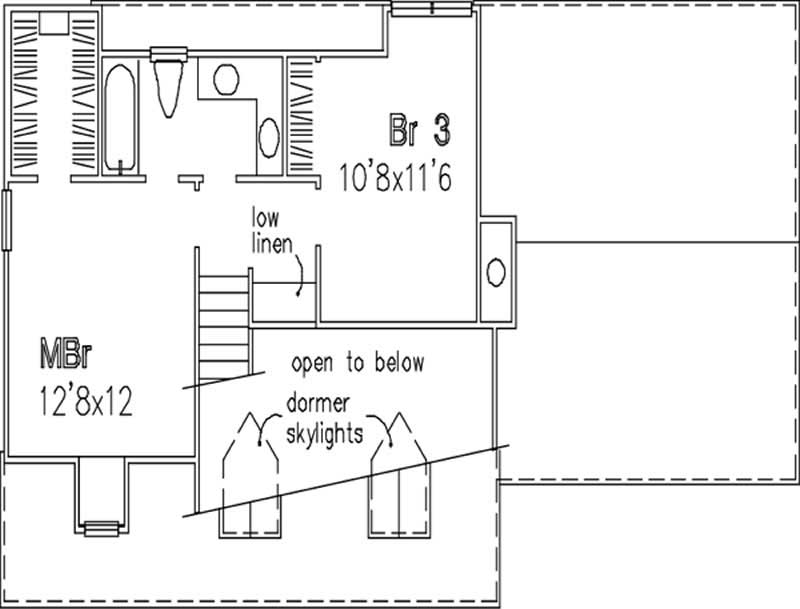
Floor Plan Second Story
Floor Plan Second Story
Plan Collection

Can I modify this plan?

Yes! This plan can be customized—contact us for a free quote.

House Plan Description

A homey and appealing exterior is presented with this friendly two-story home. The shuttered entrance is topped with three decorative dormers. The dormers create a skylight effect and shed light upon the entry, the living room and the upper hallway. A boxed-out window and a 17-ft. vaulted ceiling further enhance the living room. The country kitchen is the perfect family haven for dining or just relaxing by the cozy fireplace. Sliding glass doors open to a backyard patio. For changing family needs, the swing suite is a nice extra. Designed to accommodate a returning or visiting child, an...

Home Details

Summary
Plan #:146-2995
Starting at:$885.00
Floors:2
Bedrooms:2
Full Baths:2
Half Baths:0
Garage:
Square Footage
Heated Area:1407 Sq. Ft.
First Floor:900 Sq. Ft.
Second Floor:507 Sq. Ft.
Unheated Area:
Dimensions
Ridge Height:21' 0''
Architectural Styles
Exterior Wall Material
Wood Siding
Roofing Type
Gable
Roofing Material
Asphalt Shingles
Special Feature
FireplaceFamily RoomSplit BathroomVaulted Ceilings
Garage Type
Attached GarageFront Entry
Fireplaces
One Fireplace
Exterior Wall Framing
2x6
Building Lot Type
Flat Site
Kitchen Features
Nook/Breakfast AreaPeninsula/Eating BarEat-In Kitchen
Porches and Exterior Features
Covered Front PorchSundeck
Master Suite Features
Walk In ClosetSecond Floor Master

What’s Included

Most plan sets include the following:

What’s Not Included

These items are  NOT included:

icon text-secondary-400 includedArchitectural or Engineering Stamp - handled locally if required.

icon text-secondary-400 includedSite Plan - handled locally when required.

icon text-secondary-400 includedMechanical Drawings (location of heating and air equipment and ductwork) - your subcontractors handle this.

icon text-secondary-400 includedPlumbing Drawings (drawings showing the actual plumbing pipe sizes and locations) - your subcontractors handle this.

icon text-secondary-400 includedEnergy calculations - handled locally when required.

Related House Plans

Plan Collection
Plan Collection
Plan Collection
Plan#108-1538
Starting at$725
1216
Sq Ft
2
Story
2
Bed
2
Bath
0
Car
Plan Collection
Plan Collection
Plan Collection
Plan#205-1018
Starting at$1775
1362
Sq Ft
2
Story
2
Bed
2
Bath
0
Car
Plan Collection
Plan Collection
Plan Collection
Plan#126-1546
Starting at$1395
1226
Sq Ft
2
Story
2
Bed
2
Bath
0
Car
View All

Other Plans By This Designer

Plan Collection
Plan Collection
Plan Collection
Plan#146-2806
Starting at$980
1933
Sq Ft
2
Story
3
Bed
2
Bath
0
Car
Plan Collection
Plan Collection
Plan Collection
Plan#146-2810
Starting at$1285
3594
Sq Ft
2
Story
4
Bed
3.5
Bath
2
Car
Plan Collection
Plan Collection
Plan Collection
Plan#146-1917
Starting at$1120
2525
Sq Ft
2
Story
4
Bed
2.5
Bath
3
Car