3-Bedroom, 1638 Sq Ft Cape Cod Plan with Kitchen Island

Main image for house plan # 7521

Images/Plans copyrighted by designer. Photos may reflect homeowner modifications.

About House Plan #124-1046

Sq Ft
1638
Sq Ft
Bedrooms
3
Bedrooms
Bathroom
2
Baths
Half Baths
0
Half Baths
Bedrooms
2
Cars
Bedrooms
2
Stories
Bedrooms
48' 4'
Width
Bedrooms
36
Depth
Starting at$645.00What's included
STEP 1Bedrooms
STEP 2Bedrooms
STEP 3Bedrooms

Subtotal:$0
Plan Collection

How much will it cost to build?

Estimate your costs based on your location and materials.

Free Cost Instant Estimator

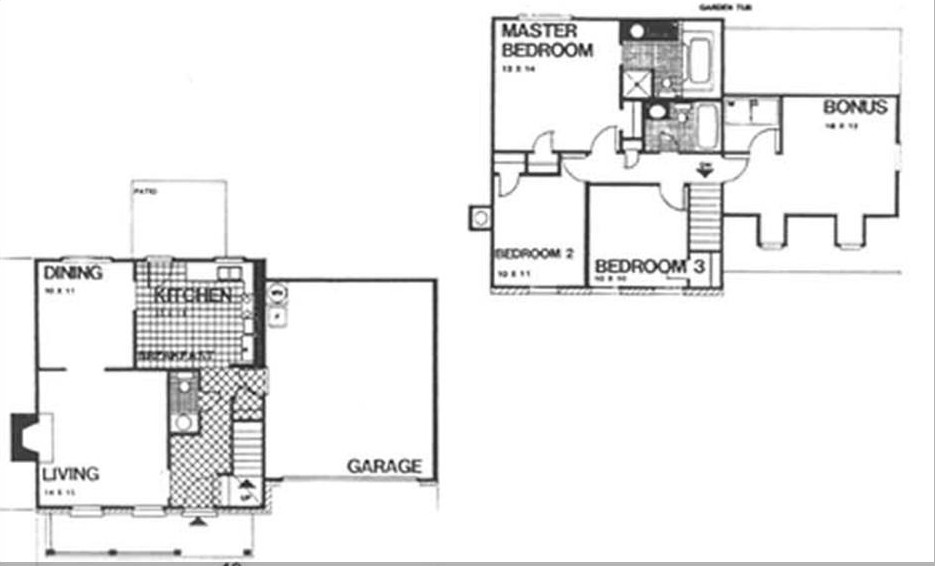
Floor Plans

Floor Plan First Story
Floor Plan First Story
Plan Collection

Can I modify this plan?

Yes! This plan can be customized—contact us for a free quote.

House Plan Description

Similar Plans: 15-16; 16-13; 21-7

Home Details

Summary
Plan #:124-1046
Starting at:$645.00
Floors:2
Bedrooms:3
Full Baths:2
Half Baths:0
Garage:
Square Footage
Heated Area:1638 Sq. Ft.
First Floor:793 Sq. Ft.
Second Floor:845 Sq. Ft.
Unheated Area:
Bonus Room:250 Sq. Ft.
Dimensions
Width:48' 4''
Depth:36' 8''
Architectural Styles
Exterior Wall Material
Vinyl Siding
Garage Type
Attached Garage
Fireplaces
One Fireplace

What’s Included

Most plan sets include the following:

icon text-secondary-400 includedCover sheet

icon text-secondary-400 includedFoundation plan

icon text-secondary-400 includedFloor plans

icon text-secondary-400 includedExterior elevations

icon text-secondary-400 includedBuilding cross-sections

icon text-secondary-400 includedTypical wall section

icon text-secondary-400 includedBasic details

icon text-secondary-400 includedSpecification notes

What’s Not Included

These items are  NOT included:

icon text-secondary-400 includedArchitectural or Engineering Stamp - handled locally if required.

icon text-secondary-400 includedSite Plan - handled locally when required.

icon text-secondary-400 includedMechanical Drawings (location of heating and air equipment and ductwork) - your subcontractors handle this.

icon text-secondary-400 includedPlumbing Drawings (drawings showing the actual plumbing pipe sizes and locations) - your subcontractors handle this.

icon text-secondary-400 includedEnergy calculations - handled locally when required.

Related House Plans

Plan Collection
Plan Collection
Plan Collection
Plan#160-1009
Starting at$945
1235
Sq Ft
2
Story
3
Bed
2
Bath
0
Car
Plan Collection
Plan Collection
Plan Collection
Plan#117-1104
Starting at$895
1421
Sq Ft
2
Story
3
Bed
2
Bath
2
Car
Plan Collection
Plan Collection
Plan Collection
Plan#109-1029
Starting at$1195
1334
Sq Ft
2
Story
3
Bed
2.5
Bath
0
Car
View All

Other Plans By This Designer

Plan Collection
Plan Collection
Plan Collection
Plan#124-1092
Starting at$645
1488
Sq Ft
1
Story
3
Bed
2
Bath
2
Car
Plan Collection
Plan Collection
Plan Collection
Plan#124-1063
Starting at$645
1265
Sq Ft
2
Story
2
Bed
2
Bath
1
Car
Plan Collection
Plan Collection
Plan Collection
Plan#124-1061
Starting at$645
1141
Sq Ft
1
Story
3
Bed
2
Bath
1
Car