3-Bedroom, 1690 Sq Ft Contemporary Plan with Outdoor Kitchen

Main image for house plan # 6547

Images/Plans copyrighted by designer. Photos may reflect homeowner modifications.

About House Plan #129-1044

Sq Ft
1690
Sq Ft
Bedrooms
3
Bedrooms
Bathroom
2
Baths
Half Baths
0
Half Baths
Bedrooms
3
Cars
Bedrooms
1
Stories
Bedrooms
72' 10'
Width
Bedrooms
53
Depth
Starting at$1149.50What's included
STEP 1Bedrooms
STEP 2Bedrooms
STEP 3Bedrooms

Subtotal:$0
Plan Collection

How much will it cost to build?

Estimate your costs based on your location and materials.

Free Cost Instant Estimator

Floor Plans

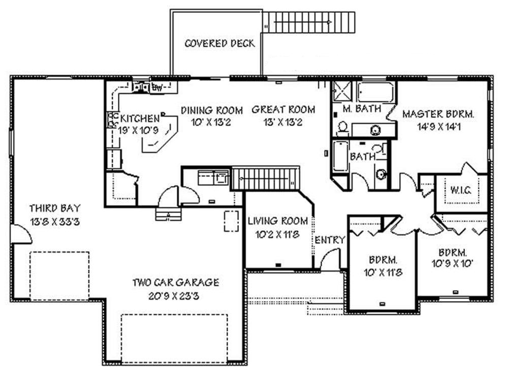
Floor Plan Main Level
Floor Plan Main Level
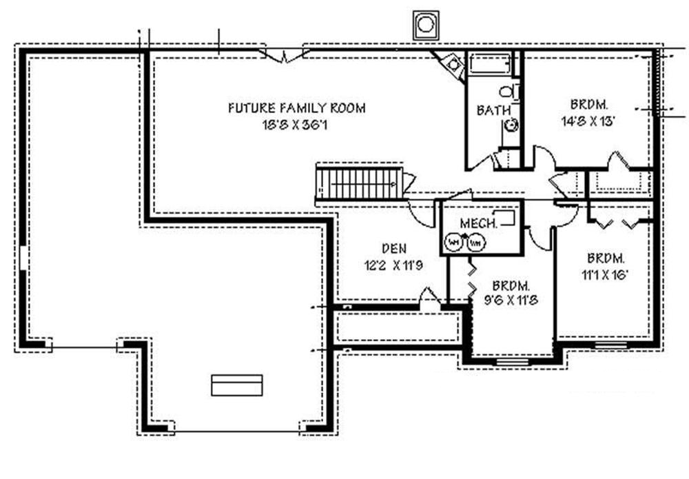
Floor Plan Basement
Floor Plan Basement
Plan Collection

Can I modify this plan?

Yes! This plan can be customized—contact us for a free quote.

House Plan Description

This house plan was designed for a walk out basement with the lot sloping to the back of the home, though it would be easily redlined to build without a walkout or different sloping conditions. This is a popular plan with a full master suite, main level laundry and a large kitchen island.

Home Details

Summary
Plan #:129-1044
Starting at:$1149.50
Floors:1
Bedrooms:3
Full Baths:2
Half Baths:0
Garage:
Square Footage
Heated Area:1690 Sq. Ft.
First Floor:1690 Sq. Ft.
Unheated Area:
Basement:1760 Sq. Ft.
Garage:1012 Sq. Ft.
Dimensions
Width:72' 10''
Depth:53' 8''
Architectural Styles
Exterior Wall Material
Brick
Roofing Type
Gable
Roof Pitch
6/12
Special Feature
Main Level Laundry
Garage Type
Attached Garage
Exterior Wall Framing
2x6
Kitchen Features
Kitchen Island

What’s Included

Most plan sets include the following:

icon text-secondary-400 includedExterior elevations

icon text-secondary-400 includedFloor plans

icon text-secondary-400 includedFraming plans

icon text-secondary-400 includedCross-sections

icon text-secondary-400 includedElectrical layout

What’s Not Included

These items are  NOT included:

icon text-secondary-400 includedArchitectural or Engineering Stamp - handled locally if required.

icon text-secondary-400 includedSite Plan - handled locally when required.

icon text-secondary-400 includedMechanical Drawings (location of heating and air equipment and ductwork) - your subcontractors handle this.

icon text-secondary-400 includedPlumbing Drawings (drawings showing the actual plumbing pipe sizes and locations) - your subcontractors handle this.

icon text-secondary-400 includedEnergy calculations - handled locally when required.

Related House Plans

Plan Collection
Plan Collection
Plan Collection
Plan#117-1092
Starting at$1095
2091
Sq Ft
1
Story
3
Bed
2.5
Bath
2
Car
Plan Collection
Plan Collection
Plan Collection
Plan#141-1243
Starting at$1485
1640
Sq Ft
1
Story
3
Bed
2
Bath
2
Car
Plan Collection
Plan Collection
Plan Collection
Plan#176-1012
Starting at$600
1412
Sq Ft
1
Story
3
Bed
2
Bath
0
Car
View All

Other Plans By This Designer

Plan Collection
Plan Collection
Plan Collection
Plan#129-1046
Starting at$1029
1490
Sq Ft
1
Story
3
Bed
2
Bath
3
Car
Plan Collection
Plan Collection
Plan Collection
Plan#129-1032
Starting at$1150
2318
Sq Ft
2
Story
5
Bed
2.5
Bath
3
Car
Plan Collection
Plan Collection
Plan Collection
Plan#129-1015
Starting at$1029
1035
Sq Ft
1.5
Story
2
Bed
1
Bath
2
Car