4-Bedroom, 1992 Sq Ft Colonial Plan with Fireplace in Master

This is a very traditional front rendering of these home plans.

Images/Plans copyrighted by designer. Photos may reflect homeowner modifications.

About House Plan #109-1035

Sq Ft
1992
Sq Ft
Bedrooms
4
Bedrooms
Bathroom
3
Baths
Half Baths
0
Half Baths
Bedrooms
2
Cars
Bedrooms
1
Stories
Bedrooms
66' 2'
Width
Bedrooms
62
Depth
Starting at$1295.00What's included
STEP 1Bedrooms
STEP 2Bedrooms
STEP 3Bedrooms

Subtotal:$0
Plan Collection

How much will it cost to build?

Estimate your costs based on your location and materials.

Free Cost Instant Estimator

Floor Plans

First Story
First Story
Plan Collection

Can I modify this plan?

Yes! This plan can be customized—contact us for a free quote.

Additional Notes from Designer

Optional Foundations are considered modifications so please send us a modification request if you would like a free quote. Thank you! PLEASE NOTE! Any options that are ordered such as RRR or 2x6 conversion will each take 4-7 business days to complete BEFORE the plans are sent. Materials Lists can take up to 14 business days to complete BEFORE plans are sent.

House Plan Description

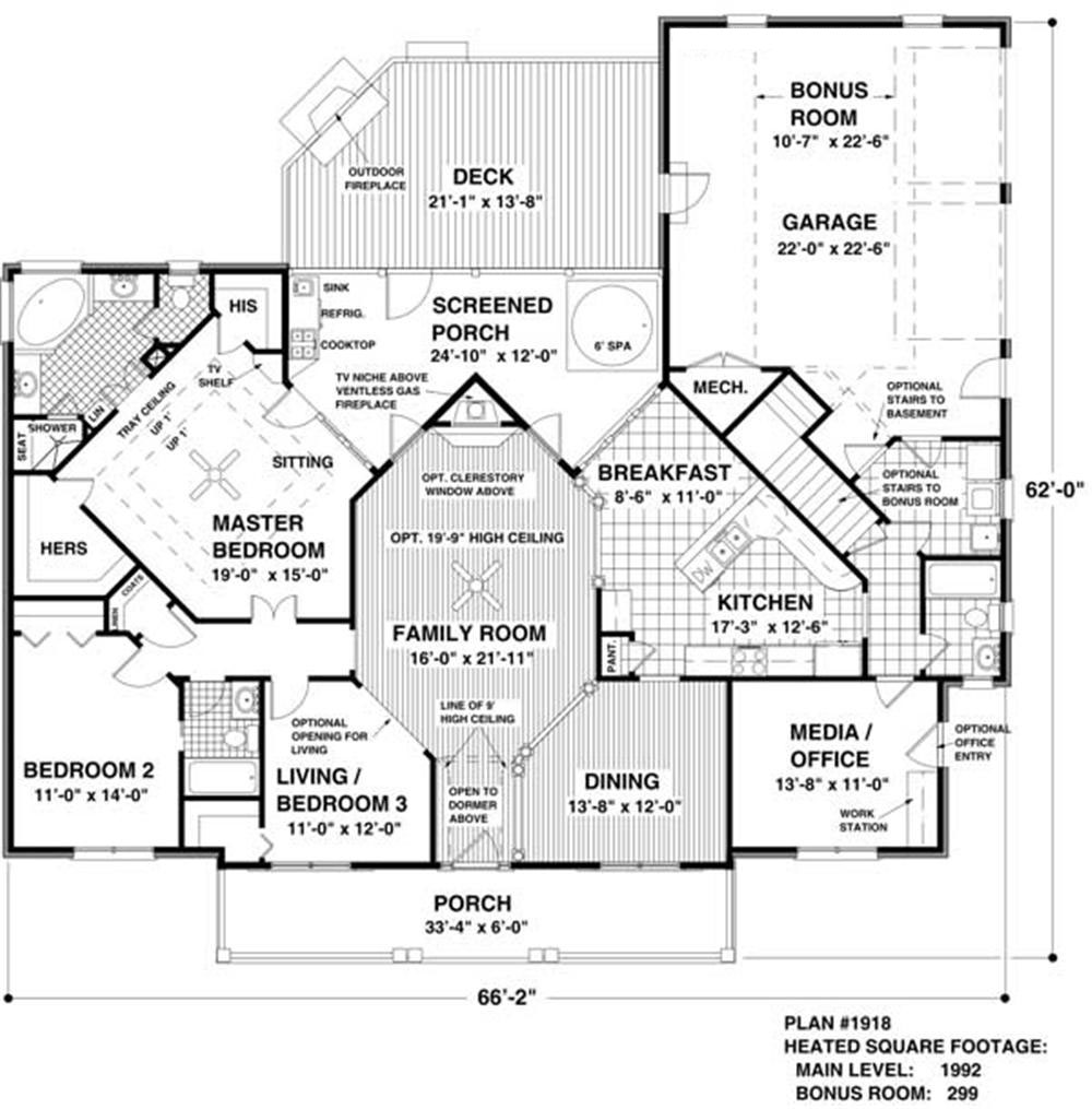
This elegant country porch style home is both classic and contemporary. From the inviting front porch to the screened porch and deck, this home provides dramatic spaces, luxurious appointments, and true flexibility. Its innovative design provides an abundance of living area, flexible multi-purpose rooms, and exciting features, all in an affordable 1992 square feet. The bonus room and optional basement provide areas for future expansion. Just beyond the porch, the entry, is lit by the open dormer above. Directly ahead is a spacious octagonally shaped family room with a 19'-9" high ceiling....

Home Details

Summary
Plan #:109-1035
Starting at:$1295.00
Floors:1
Bedrooms:4
Full Baths:3
Half Baths:0
Garage:
Square Footage
Heated Area:1992 Sq. Ft.
First Floor:1992 Sq. Ft.
Unheated Area:
Dimensions
Width:66' 2''
Ridge Height:24' 0''
Architectural Styles
Exterior Wall Material
BrickWood Siding
Roofing Type
Gable/Dormer
Roofing Material
Asphalt Shingles
Roof Pitch
7/1210/12
Special Feature
FireplaceDining RoomHome OfficeMud RoomBonus RoomFamily RoomMain Level LaundryMedia RoomSplit BathroomVaulted Ceilings
Garage Type
Attached GarageSide Entry
Fireplaces
One Fireplace
Exterior Wall Framing
2x4
Building Lot Type
Flat Site
Kitchen Features
Nook/Breakfast AreaWalk-in PantryPeninsula/Eating BarEat-In Kitchen
Porches and Exterior Features
Covered Front PorchSundeckScreened Porch/Sunroom
Master Suite Features
Main Floor MasterMaster BathroomWalk In ClosetSitting AreaPrivate Deck

What’s Included

Most plan sets include the following:

icon text-secondary-400 includedRendering cover page

icon text-secondary-400 includedElevations

icon text-secondary-400 includedFloor plans

icon text-secondary-400 includedFoundation plan

icon text-secondary-400 includedCabinet/interior elevations

icon text-secondary-400 includedRoof plan

icon text-secondary-400 includedSection

icon text-secondary-400 includedConstruction details

icon text-secondary-400 includedIRC code specifications

What’s Not Included

These items are  NOT included:

icon text-secondary-400 includedArchitectural or Engineering Stamp - handled locally if required.

icon text-secondary-400 includedSite Plan - handled locally when required.

icon text-secondary-400 includedMechanical Drawings (location of heating and air equipment and duct work) - your subcontractors handle this.

icon text-secondary-400 includedPlumbing Drawings (drawings showing the actual plumbing pipe sizes and locations) - your subcontractors handle this.

icon text-secondary-400 includedEnergy calculations - handled locally when required.

Related House Plans

Plan Collection
Plan Collection
Plan Collection
Plan#146-2173
Starting at$1015
2464
Sq Ft
1
Story
4
Bed
3
Bath
3
Car
Plan Collection
Plan Collection
Plan Collection
Plan#153-1417
Starting at$1000
2405
Sq Ft
1
Story
4
Bed
3
Bath
3
Car
Plan Collection
Plan Collection
Plan Collection
Plan#153-1454
Starting at$1100
2039
Sq Ft
1
Story
4
Bed
3
Bath
2
Car
View All

Other Plans By This Designer

Plan Collection
Plan Collection
Plan Collection
Plan#109-1193
Starting at$1395
2156
Sq Ft
1
Story
3
Bed
3
Bath
3
Car
Plan Collection
Plan Collection
Plan Collection
Plan#109-1179
Starting at$1395
2253
Sq Ft
2
Story
4
Bed
3
Bath
2
Car
Plan Collection
Plan Collection
Plan Collection
Plan#109-1013
Starting at$1295
1831
Sq Ft
1
Story
3
Bed
2.5
Bath
2
Car