4-Bedroom, 2128 Sq Ft Contemporary Plan with Main Floor Master

Main image for house plan # 3687

Images/Plans copyrighted by designer. Photos may reflect homeowner modifications.

About House Plan #173-1017

Sq Ft
2128
Sq Ft
Bedrooms
4
Bedrooms
Bathroom
2
Baths
Half Baths
0
Half Baths
Bedrooms
2
Cars
Bedrooms
1
Stories
Bedrooms
56' 0'
Width
Bedrooms
60
Depth
Starting at$1200.00What's included
STEP 1Bedrooms
STEP 2Bedrooms
STEP 3Bedrooms

Subtotal:$0
Plan Collection

How much will it cost to build?

Estimate your costs based on your location and materials.

Free Cost Instant Estimator

Floor Plans

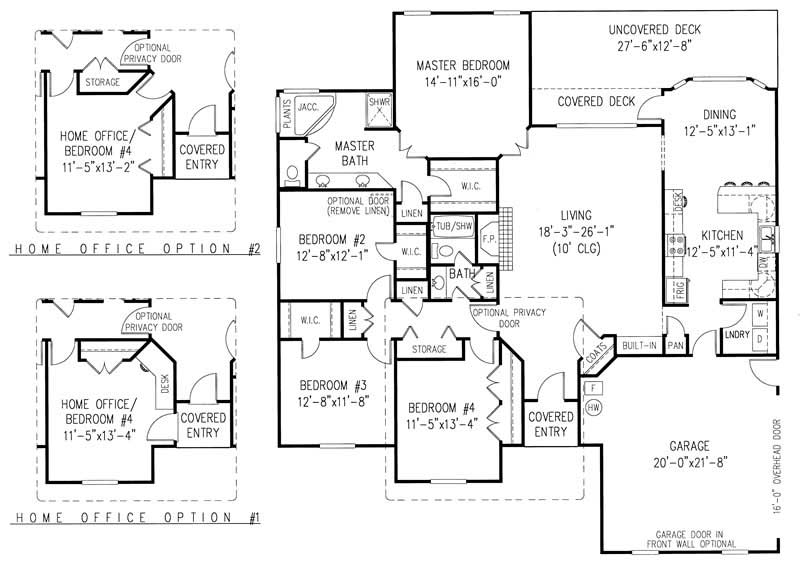
Main Level Floor Plan
Main Level Floor Plan
Plan Collection

Can I modify this plan?

Yes! This plan can be customized—contact us for a free quote.

Additional Notes from Designer

House Plan Description

This house plan features a fireplace, sun room, built-ins, bonus room, foyer, corner lot/side load garage, great/gathering room, study/bedroom, home office, walk-in closet, den/library, storage space, special ceiling treatments, master suite, split bedroom, guest room, island kitchen, front porch, rear porch, and deck/patio.

Home Details

Summary
Plan #:173-1017
Starting at:$1200.00
Floors:1
Bedrooms:4
Full Baths:2
Half Baths:0
Garage:
Square Footage
Heated Area:2128 Sq. Ft.
First Floor:2128 Sq. Ft.
Unheated Area:
Garage:457 Sq. Ft.
Dimensions
Depth:60' 8''
Ridge Height:19'-9' 0''
Architectural Styles
Exterior Wall Material
Vinyl SidingBrick
Roof Pitch
12/127/12
Ceiling Height
8 Foot Ceiling
Special Feature
FireplaceGuest RoomHome OfficeBonus RoomLibrary
Garage Type
Attached Garage
Fireplaces
One Fireplace
Exterior Wall Framing
2x4

What’s Included

Most plan sets include the following:

icon text-secondary-400 includedFoundation plan

icon text-secondary-400 includedFloor plan(s)

icon text-secondary-400 includedElectrical layout

icon text-secondary-400 includedExterior elevations

icon text-secondary-400 includedCabinet details

icon text-secondary-400 includedInterior elevations (when necessary)

icon text-secondary-400 includedRoof plan

icon text-secondary-400 includedTypical wall section

icon text-secondary-400 includedStandard detail sheet

What’s Not Included

These items are  NOT included:

icon text-secondary-400 includedArchitectural or Engineering Stamp - handled locally if required.

icon text-secondary-400 includedSite Plan - handled locally when required.

icon text-secondary-400 includedMechanical Drawings (location of heating and air equipment and duct work) - your subcontractors handle this.

icon text-secondary-400 includedPlumbing Drawings (drawings showing the actual plumbing pipe sizes and locations) - your subcontractors handle this.

icon text-secondary-400 includedEnergy calculations - handled locally when required.

Related House Plans

Plan Collection
Plan Collection
Plan Collection
Plan#116-1031
Starting at$0
2457
Sq Ft
1
Story
4
Bed
2
Bath
2
Car
Plan Collection
Plan Collection
Plan Collection
Plan#206-1004
Starting at$1195
1889
Sq Ft
1
Story
4
Bed
2
Bath
2
Car
Plan Collection
Plan Collection
Plan Collection
Plan#107-1068
Starting at$1250
2441
Sq Ft
1
Story
4
Bed
2
Bath
2
Car
View All

Other Plans By This Designer

Plan Collection
Plan Collection
Plan Collection
Plan#173-1029
Starting at$1300
2750
Sq Ft
2
Story
5
Bed
3.5
Bath
2
Car
Plan Collection
Plan Collection
Plan Collection
Plan#173-1003
Starting at$1300
2989
Sq Ft
2
Story
4
Bed
2.5
Bath
3
Car
Plan Collection
Plan Collection
Plan Collection
Plan#173-1033
Starting at$1200
2433
Sq Ft
2
Story
4
Bed
2.5
Bath
2
Car