3-Bedroom, 2360 Sq Ft Rustic Plan with Peninsula/Eating Bar

Front elevation of Rustic home (ThePlanCollection: House Plan #202-1008)

Images/Plans copyrighted by designer. Photos may reflect homeowner modifications.

About House Plan #202-1008

Sq Ft
2360
Sq Ft
Bedrooms
3
Bedrooms
Bathroom
3
Baths
Half Baths
1
Half Baths
Bedrooms
2
Cars
Bedrooms
1.5
Stories
Bedrooms
64' 0'
Width
Bedrooms
71
Depth
Starting at$1695.00What's included
STEP 1Bedrooms
STEP 2Bedrooms
STEP 3Bedrooms

Subtotal:$0
Plan Collection

How much will it cost to build?

Estimate your costs based on your location and materials.

Free Cost Instant Estimator

Floor Plans

Floor Plan Main Level
Floor Plan Main Level
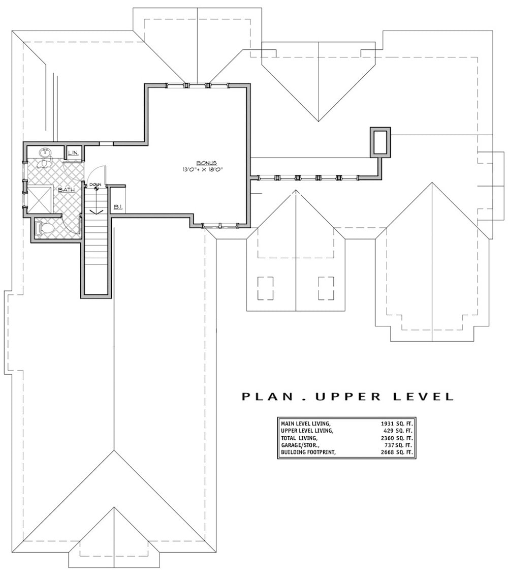
Floor Plan Upper Level
Floor Plan Upper Level
Plan Collection

Can I modify this plan?

Yes! This plan can be customized—contact us for a free quote.

House Plan Description

Rustic with plenty of Craftsman elements, this home has a open floor plan perfect for home traffic and entertaining guests. The split bedroom is must have feature to every home. A cozy fireplace brings the family together for the evening. There are 3 bedrooms, 3.5 baths, and 2360square feet of living square feet.

Home Details

Summary
Plan #:202-1008
Starting at:$1695.00
Floors:1.5
Bedrooms:3
Full Baths:3
Half Baths:1
Garage:
Square Footage
Heated Area:2360 Sq. Ft.
First Floor:1931 Sq. Ft.
Second Floor:429 Sq. Ft.
Unheated Area:
Garage:737 Sq. Ft.
Dimensions
Architectural Styles
Exterior Wall Material
Vinyl SidingRock/StoneWood SidingShakes
Roofing Type
GableHip
Roofing Material
Asphalt Shingles
Roof Pitch
8/12
Ceiling Height
9 Foot Ceiling8 Foot Ceiling
Special Feature
FireplaceBonus RoomFamily RoomMain Level LaundryColor PhotosColor PhotosStorageVaulted CeilingsOpen Floor PlanInterior PhotosInterior PhotosL-Shaped
Garage Type
Attached GarageCourtyard Entry
Fireplaces
One Fireplace
Exterior Wall Framing
2x6
Kitchen Features
Kitchen IslandWalk-in PantryPeninsula/Eating Bar
Porches and Exterior Features
Covered Front Porch
Master Suite Features
Main Floor MasterMaster BathroomWalk In ClosetSplit Master Bedroom

What’s Included

Most plan sets include the following:

icon text-secondary-400 includedCover sheet with renderings or photos

icon text-secondary-400 includedSite plan sheet with an original site plan for reference

icon text-secondary-400 includedFloor plans

icon text-secondary-400 includedExterior elevations

icon text-secondary-400 includedSections

icon text-secondary-400 includedTypical detail sheets

icon text-secondary-400 includedStructural sheets

icon text-secondary-400 includedFoundation/floor framing

icon text-secondary-400 includedRoof framing

What’s Not Included

These items are  NOT included:

icon text-secondary-400 includedArchitectural or Engineering Stamp - handled locally if required.

icon text-secondary-400 includedSite Plan - handled locally when required.

icon text-secondary-400 includedMechanical Drawings (location of heating and air equipment and ductwork) - your subcontractors handle this.

icon text-secondary-400 includedPlumbing Drawings (drawings showing the actual plumbing pipe sizes and locations) - your subcontractors handle this.

icon text-secondary-400 includedEnergy calculations - handled locally when required.

Related House Plans

Plan Collection
Plan Collection
Plan Collection
Plan#106-1274
Starting at$1695
2499
Sq Ft
1.5
Story
3
Bed
3.5
Bath
3
Car
Plan Collection
Plan Collection
Plan Collection
Plan#187-1006
Starting at$1350
2631
Sq Ft
1.5
Story
3
Bed
3
Bath
2
Car
Plan Collection
Plan Collection
Plan Collection
Plan#153-1976
Starting at$1200
1792
Sq Ft
1.5
Story
3
Bed
3
Bath
0
Car
View All

Other Plans By This Designer

Plan Collection
Plan Collection
Plan Collection
Plan#202-1021
Starting at$1095
3217
Sq Ft
1.5
Story
5
Bed
3.5
Bath
2
Car
Plan Collection
Plan Collection
Plan Collection
Plan#202-1013
Starting at$995
3264
Sq Ft
1
Story
3
Bed
3.5
Bath
3
Car
Plan Collection
Plan Collection
Plan Collection
Plan#202-1017
Starting at$795
4412
Sq Ft
2
Story
5
Bed
5.5
Bath
3
Car