4-Bedroom, 2457 Sq Ft Country Plan with Kitchen Island

Front elevation of Country home (ThePlanCollection: House Plan #173-1011)

Images/Plans copyrighted by designer. Photos may reflect homeowner modifications.

About House Plan #173-1011

Sq Ft
2457
Sq Ft
Bedrooms
4
Bedrooms
Bathroom
3
Baths
Half Baths
1
Half Baths
Bedrooms
3
Cars
Bedrooms
2
Stories
Bedrooms
67' 6'
Width
Bedrooms
56
Depth
Starting at$1200.00What's included
STEP 1Bedrooms
STEP 2Bedrooms
STEP 3Bedrooms

Subtotal:$0
Plan Collection

How much will it cost to build?

Estimate your costs based on your location and materials.

Free Cost Instant Estimator

Floor Plans

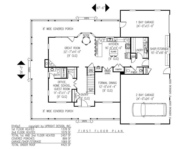
Floor Plan Main Level
Floor Plan Main Level
Floor Plan Upper Level
Floor Plan Upper Level
Plan Collection

Can I modify this plan?

Yes! This plan can be customized—contact us for a free quote.

Additional Notes from Designer

House Plan Description

This gorgeous home combines classic Victorian style with features for today's family. The wide, 3-sided wrap-around porch with its elegant columns makes this home a true standout. The center hall layout creates a traditional feel as you enter the foyer with the dining room on the right and a home office or guest room on the left. The rear of the home embraces an open floor plan design The great room is a large space and transitions to the breakfast nook and U-shaped kitchen with its eat-at bar and center kitchen island. An oversized three-car garage with a workshop in the middle...

Home Details

Summary
Plan #:173-1011
Starting at:$1200.00
Floors:2
Bedrooms:4
Full Baths:3
Half Baths:1
Garage:
Square Footage
Heated Area:2457 Sq. Ft.
First Floor:1378 Sq. Ft.
Second Floor:1079 Sq. Ft.
Unheated Area:
Basement:1378 Sq. Ft.
Garage:1069 Sq. Ft.
Dimensions
Width:67' 6''
Ridge Height:30' 0''
Architectural Styles
Exterior Wall Material
BrickWood Siding
Roofing Type
Gable
Roof Pitch
8/12
Ceiling Height
9 Foot Ceiling
Garage Type
Attached GarageSide Entry
Fireplaces
One Fireplace
Exterior Wall Framing
2x4

What’s Included

Most plan sets include the following:

icon text-secondary-400 includedFoundation plan

icon text-secondary-400 includedFloor plan(s)

icon text-secondary-400 includedElectrical layout

icon text-secondary-400 includedExterior elevations

icon text-secondary-400 includedCabinet details

icon text-secondary-400 includedInterior elevations (when necessary)

icon text-secondary-400 includedRoof plan

icon text-secondary-400 includedTypical wall section

icon text-secondary-400 includedStandard detail sheet

What’s Not Included

These items are  NOT included:

icon text-secondary-400 includedArchitectural or Engineering Stamp - handled locally if required.

icon text-secondary-400 includedSite Plan - handled locally when required.

icon text-secondary-400 includedMechanical Drawings (location of heating and air equipment and duct work) - your subcontractors handle this.

icon text-secondary-400 includedPlumbing Drawings (drawings showing the actual plumbing pipe sizes and locations) - your subcontractors handle this.

icon text-secondary-400 includedEnergy calculations - handled locally when required.

Related House Plans

Plan Collection
Plan Collection
Plan Collection
Plan#153-1020
Starting at$1200
2373
Sq Ft
2
Story
4
Bed
3
Bath
3
Car
Plan Collection
Plan Collection
Plan Collection
Plan#153-1786
Starting at$1200
2363
Sq Ft
2
Story
4
Bed
3
Bath
2
Car
Plan Collection
Plan Collection
Plan Collection
Plan#178-1096
Starting at$1055
2252
Sq Ft
2
Story
4
Bed
3
Bath
3
Car
View All

Other Plans By This Designer

Plan Collection
Plan Collection
Plan Collection
Plan#173-1029
Starting at$1300
2750
Sq Ft
2
Story
5
Bed
3.5
Bath
2
Car
Plan Collection
Plan Collection
Plan Collection
Plan#173-1003
Starting at$1300
2989
Sq Ft
2
Story
4
Bed
2.5
Bath
3
Car
Plan Collection
Plan Collection
Plan Collection
Plan#173-1033
Starting at$1200
2433
Sq Ft
2
Story
4
Bed
2.5
Bath
2
Car