2-Bedroom, 2577 Sq Ft Log Cabin Plan with Master Bathroom

Front Elevation of this Log Cabin House (#132-1342) at The Plan Collection.

Images/Plans copyrighted by designer. Photos may reflect homeowner modifications.

About House Plan #132-1342

Sq Ft
2577
Sq Ft
Bedrooms
2
Bedrooms
Bathroom
2
Baths
Half Baths
0
Half Baths
Bedrooms
0
Cars
Bedrooms
3
Stories
Bedrooms
40' 0'
Width
Bedrooms
45
Depth
Starting at$1795.00What's included
STEP 1Bedrooms
STEP 2Bedrooms
STEP 3Bedrooms

Subtotal:$0
Plan Collection

How much will it cost to build?

Estimate your costs based on your location and materials.

Free Cost Instant Estimator

Floor Plans

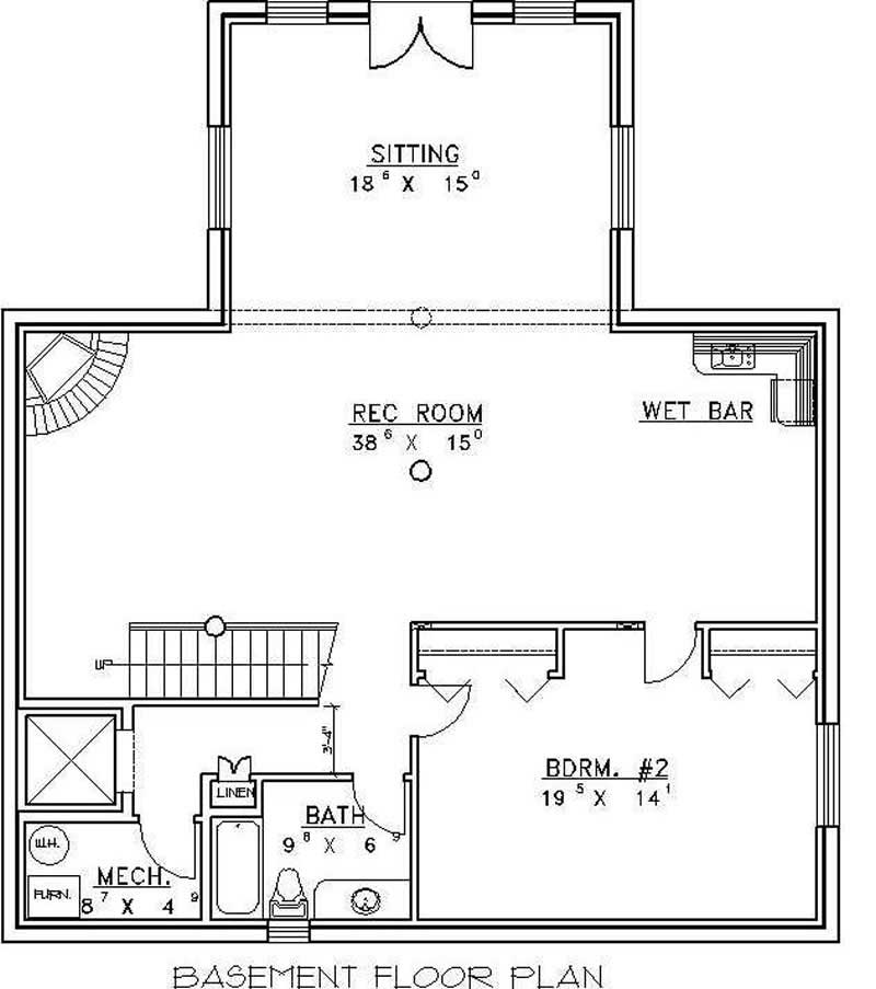
BASEMENT
BASEMENT
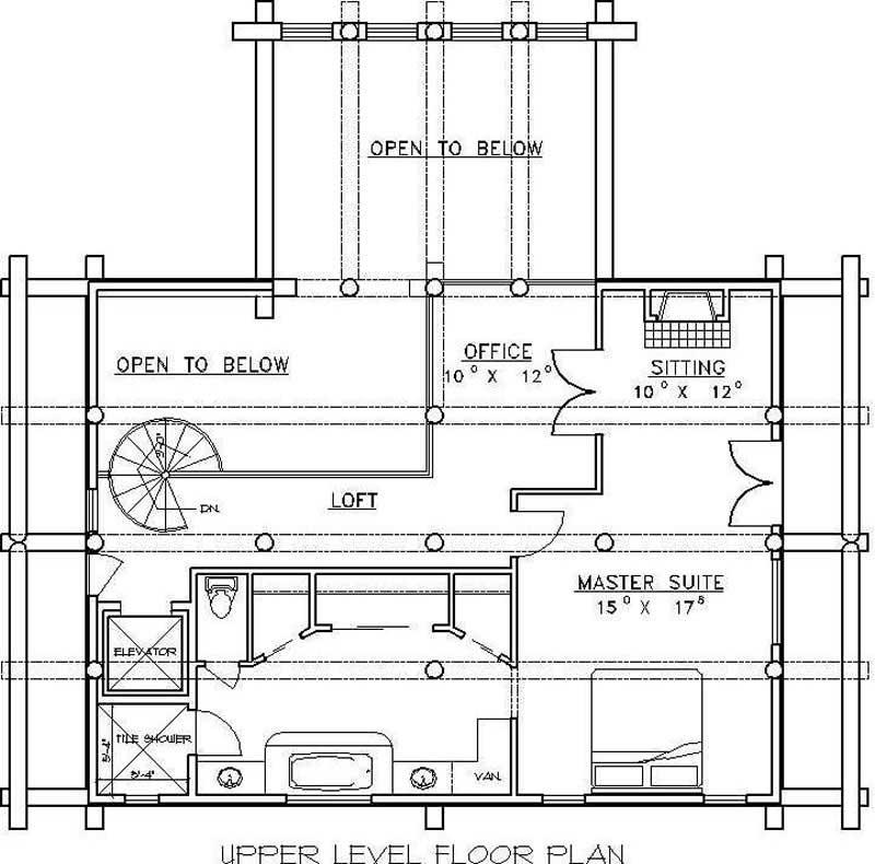
SECOND FLOOR
SECOND FLOOR
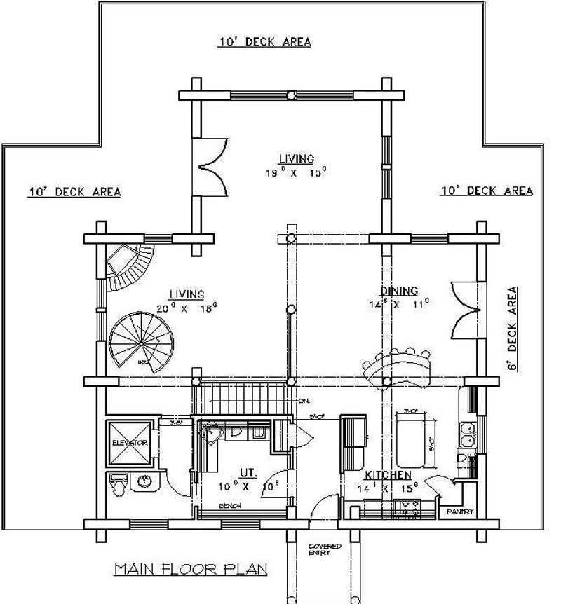
FIRST FLOOR
FIRST FLOOR
Plan Collection

Can I modify this plan?

Yes! This plan can be customized—contact us for a free quote.

Additional Notes from Designer

PLEASE NOTE! The CAD - Unlimited package is NOT an unlimited license - it is a license to build up to 5 homes.

House Plan Description

This log cabin could just be the perfect vacation home. Custom windows shed light on the entire home. Vaulted ceilings give everything a comfortable feeling of space. The loft makes a great addition. The kitchen features a center island and a breakfast bar. There is a nice home office upstairs as well as the master suite. Downstairs is a huge recreation room with a wet bar and a fireplace. There is also an elevator and spiral staircase.

Home Details

Summary
Plan #:132-1342
Starting at:$1795.00
Floors:3
Bedrooms:2
Full Baths:2
Half Baths:0
Garage:
Square Footage
Heated Area:2577 Sq. Ft.
First Floor:1500 Sq. Ft.
Second Floor:1077 Sq. Ft.
Unheated Area:
Basement:1557 Sq. Ft.
Dimensions
Ridge Height:36-5' 0''
Architectural Styles
Exterior Wall Material
Log
Roofing Type
Gable
Roof Pitch
12/12
Ceiling Height
9 Foot Ceiling
Special Feature
FireplaceDining RoomHome OfficeGame RoomMain Level LaundryLoftVaulted CeilingsElevator
Fireplaces
Three Fireplaces
Exterior Wall Framing
2x62x4Log
Building Lot Type
Down SiteNarrow Lot Design
Kitchen Features
Kitchen IslandNook/Breakfast AreaWalk-in PantryPeninsula/Eating BarEat-In Kitchen
Porches and Exterior Features
Covered Front PorchSundeck
Master Suite Features
Fireplace in MasterMaster BathroomWalk In ClosetSitting AreaSecond Floor Master

What’s Included

Most plan sets include the following:

icon text-secondary-400 includedExterior elevations: shows the home on all four sides, calls out exterior finishes, rooflines, window and door locations.

icon text-secondary-400 includedFloor plans: includes interior and exterior dimensions, window/door schedule, wall framing details.

icon text-secondary-400 includedFoundation plan: shows footing, stem wall, and slab placement, including all connection details.

icon text-secondary-400 includedFloor and roof framing plans show truss/rafter placements, including all beams/connection details.

icon text-secondary-400 includedCross-sections: cut-through view of the structure from roof to foundation, shows framing, plate heights, insulation, etc.

icon text-secondary-400 includedElectrical layout

icon text-secondary-400 includedGeneral notes/details to cover the entirety of the project

What’s Not Included

These items are  NOT included:

icon text-secondary-400 includedArchitectural or Engineering Stamp - handled locally if required.

icon text-secondary-400 includedSite Plan - handled locally when required.

icon text-secondary-400 includedMechanical Drawings (location of heating and air equipment and ductwork) - your subcontractors handle this.

icon text-secondary-400 includedPlumbing Drawings (drawings showing the actual plumbing pipe sizes and locations) - your subcontractors handle this.

icon text-secondary-400 includedEnergy calculations - handled locally when required.

Related House Plans

Plan Collection
Plan Collection
Plan Collection
Plan#132-1364
Starting at$1245
2937
Sq Ft
3
Story
2
Bed
2.5
Bath
0
Car
Plan Collection
Plan Collection
Plan Collection
Plan#145-1526
Starting at$1100
3136
Sq Ft
3
Story
2
Bed
2.5
Bath
2
Car
Plan Collection
Plan Collection
Plan Collection
Plan#132-1194
Starting at$1245
2483
Sq Ft
3
Story
2
Bed
2
Bath
3
Car
View All

Other Plans By This Designer

Plan Collection
Plan Collection
Plan Collection
Plan#132-1697
Starting at$1145
1176
Sq Ft
1
Story
2
Bed
2
Bath
0
Car
Plan Collection
Plan Collection
Plan Collection
Plan#132-1313
Starting at$1245
2281
Sq Ft
2
Story
3
Bed
2.5
Bath
0
Car
Plan Collection
Plan Collection
Plan Collection
Plan#132-1107
Starting at$995
689
Sq Ft
1
Story
1
Bed
1
Bath
0
Car