4-Bedroom, 2587 Sq Ft Craftsman Plan with Covered Rear Porch

Main image for house plan # 2205

Images/Plans copyrighted by designer. Photos may reflect homeowner modifications.

About House Plan #102-1049

Sq Ft
2587
Sq Ft
Bedrooms
4
Bedrooms
Bathroom
3
Baths
Half Baths
0
Half Baths
Bedrooms
2
Cars
Bedrooms
2
Stories
Bedrooms
54' 0'
Width
Bedrooms
51
Depth
Starting at$1300.00What's included
STEP 1Bedrooms
STEP 2Bedrooms
STEP 3Bedrooms

Subtotal:$0
Plan Collection

How much will it cost to build?

Estimate your costs based on your location and materials.

Free Cost Instant Estimator

Floor Plans

Main Floor Plan
Main Floor Plan
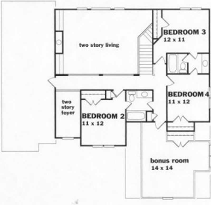
Upper Level Floor Plan
Upper Level Floor Plan
Plan Collection

Can I modify this plan?

Yes! This plan can be customized—contact us for a free quote.

House Plan Description

The Sherrington is a two-story home with four bedrooms plus a bonus room, 3.5 baths, two-story foyer and living room, breakfast nook with exterior deck, main level laundry room, and an attached two-car garage.

Home Details

Summary
Plan #:102-1049
Starting at:$1300.00
Floors:2
Bedrooms:4
Full Baths:3
Half Baths:0
Garage:
Square Footage
Heated Area:2587 Sq. Ft.
First Floor:1798 Sq. Ft.
Second Floor:789 Sq. Ft.
Unheated Area:
Garage:287 Sq. Ft.
Dimensions
Depth:51' 8''
Architectural Styles
Exterior Wall Material
Vinyl Siding
Roofing Type
Gable
Ceiling Height
8 Foot Ceiling
Special Feature
Bonus RoomMain Level Laundry
Garage Type
Attached Garage

What’s Included

Most plan sets include the following:

icon text-secondary-400 includedArchitectural or Engineering Stamp - handled locally if required.

icon text-secondary-400 includedSite Plan - handled locally when required.

icon text-secondary-400 includedMechanical Drawings (location of heating and air equipment and ductwork) - your subcontractors handle this.

icon text-secondary-400 includedPlumbing Drawings (drawings showing the actual plumbing pipe sizes and locations) - your subcontractors handle this.

icon text-secondary-400 includedEnergy calculations - handled locally when required.

What’s Not Included

These items are  NOT included:

icon text-secondary-400 includedArchitectural or Engineering Stamp - handled locally if required.

icon text-secondary-400 includedSite Plan - handled locally when required.

icon text-secondary-400 includedMechanical Drawings (location of heating and air equipment and ductwork) - your subcontractors handle this.

icon text-secondary-400 includedPlumbing Drawings (drawings showing the actual plumbing pipe sizes and locations) - your subcontractors handle this.

icon text-secondary-400 includedEnergy calculations - handled locally when required.

Related House Plans

Plan Collection
Plan Collection
Plan Collection
Plan#153-1020
Starting at$1200
2373
Sq Ft
2
Story
4
Bed
3
Bath
3
Car
Plan Collection
Plan Collection
Plan Collection
Plan#153-1786
Starting at$1200
2363
Sq Ft
2
Story
4
Bed
3
Bath
2
Car
Plan Collection
Plan Collection
Plan Collection
Plan#109-1191
Starting at$1495
2909
Sq Ft
2
Story
4
Bed
3.5
Bath
0
Car
View All

Other Plans By This Designer

Plan Collection
Plan Collection
Plan Collection
Plan#102-1018
Starting at$950
1658
Sq Ft
2
Story
3
Bed
2.5
Bath
2
Car
Plan Collection
Plan Collection
Plan Collection
Plan#102-1041
Starting at$950
1865
Sq Ft
2
Story
4
Bed
3
Bath
2
Car
Plan Collection
Plan Collection
Plan Collection
Plan#102-1030
Starting at$1500
3445
Sq Ft
2
Story
4
Bed
3.5
Bath
2
Car