3-Bedroom, 2647 Sq Ft Country Plan with Nook/Breakfast Area

Front elevation of Country home (ThePlanCollection: House Plan #131-1057)

Images/Plans copyrighted by designer. Photos may reflect homeowner modifications.

About House Plan #131-1057

Sq Ft
2647
Sq Ft
Bedrooms
3
Bedrooms
Bathroom
2
Baths
Half Baths
1
Half Baths
Bedrooms
2
Cars
Bedrooms
1
Stories
Bedrooms
71' 0'
Width
Bedrooms
45
Depth
Starting at$1050.00What's included
STEP 1Bedrooms
STEP 2Bedrooms
STEP 3Bedrooms

Subtotal:$0
Plan Collection

How much will it cost to build?

Estimate your costs based on your location and materials.

Free Cost Instant Estimator

Floor Plans

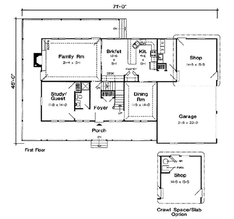
Floor Plan First Story
Floor Plan First Story
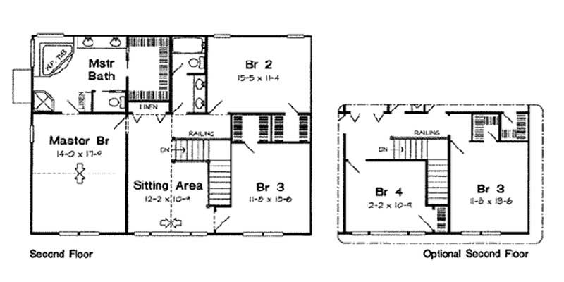
Floor Plan Second Story
Floor Plan Second Story
Plan Collection

Can I modify this plan?

Yes! This plan can be customized—contact us for a free quote.

House Plan Description

The wrap-around front says “Country home.” The interior layout with 2,647 sq. ft. says “Contemporary” all the way. The foyer, home office/guest room with full bath, and dining room enjoy the forefront. The back of the house showcases a family room with fireplace, huge breakfast room with built-in desk and open kitchen with pantry, and lunch counter. The upstairs Palladian window illuminates the landing sitting area. The master suite luxuriates with a cathedral ceiling. The master bath shows off a spa tub, separate shower and walk-in closet. Bedrooms #2 and #3 have...

Home Details

Summary
Plan #:131-1057
Starting at:$1050.00
Floors:1
Bedrooms:3
Full Baths:2
Half Baths:1
Garage:
Square Footage
Heated Area:2647 Sq. Ft.
First Floor:1378 Sq. Ft.
Second Floor:1269 Sq. Ft.
Unheated Area:
Garage:717 Sq. Ft.
Dimensions
Ridge Height:29'0' 0''
Architectural Styles
Exterior Wall Material
Vinyl Siding
Roofing Type
GableHalf Hip
Roof Pitch
6/12
Ceiling Height
9 Foot Ceiling8 Foot Ceiling
Special Feature
FireplaceDining RoomGuest RoomHome OfficeFamily RoomColor PhotosInterior Photos
Fireplaces
One Fireplace
Exterior Wall Framing
2x4

What’s Included

Most plan sets include the following:

icon text-secondary-400 includedExterior elevations

icon text-secondary-400 includedFoundation plans

icon text-secondary-400 includedInterior elevations

icon text-secondary-400 includedElectrical layout

icon text-secondary-400 includedDetailed house floor plans

What’s Not Included

These items are  NOT included:

icon text-secondary-400 includedArchitectural or Engineering Stamp - handled locally if required.

icon text-secondary-400 includedSite Plan - handled locally when required.

icon text-secondary-400 includedMechanical Drawings (location of heating and air equipment and ductwork) - your subcontractors handle this.

icon text-secondary-400 includedPlumbing Drawings (drawings showing the actual plumbing pipe sizes and locations) - your subcontractors handle this.

icon text-secondary-400 includedEnergy calculations - handled locally when required.

Related House Plans

Plan Collection
Plan Collection
Plan Collection
Plan#142-1168
Starting at$1395
2597
Sq Ft
1
Story
3
Bed
2.5
Bath
2
Car
Plan Collection
Plan Collection
Plan Collection
Plan#117-1092
Starting at$1095
2091
Sq Ft
1
Story
3
Bed
2.5
Bath
2
Car
Plan Collection
Plan Collection
Plan Collection
Plan#142-1158
Starting at$1345
2004
Sq Ft
1
Story
3
Bed
2.5
Bath
2
Car
View All

Other Plans By This Designer

Plan Collection
Plan Collection
Plan Collection
Plan#131-1013
Starting at$900
2083
Sq Ft
2
Story
3
Bed
2.5
Bath
2
Car
Plan Collection
Plan Collection
Plan Collection
Plan#131-1047
Starting at$800
1792
Sq Ft
1
Story
3
Bed
2
Bath
0
Car
Plan Collection
Plan Collection
Plan Collection
Plan#131-1243
Starting at$600
972
Sq Ft
2
Story
3
Bed
1
Bath
0
Car