3-Bedroom, 2709 Sq Ft Vacation Homes Plan with Nook/Breakfast Area

Front Elevation of this Vacation Homes House (#132-1378) at The Plan Collection.

Images/Plans copyrighted by designer. Photos may reflect homeowner modifications.

About House Plan #132-1378

Sq Ft
2709
Sq Ft
Bedrooms
3
Bedrooms
Bathroom
3
Baths
Half Baths
0
Half Baths
Bedrooms
3
Cars
Bedrooms
1
Stories
Bedrooms
89' 8'
Width
Bedrooms
66
Depth
Starting at$1245.00What's included
STEP 1Bedrooms
STEP 2Bedrooms
STEP 3Bedrooms

Subtotal:$0
Plan Collection

How much will it cost to build?

Estimate your costs based on your location and materials.

Free Cost Instant Estimator

Floor Plans

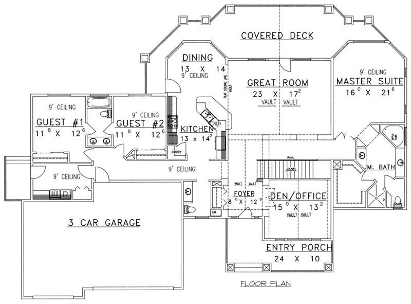
MAIN LEVEL FLOOR PLAN
MAIN LEVEL FLOOR PLAN
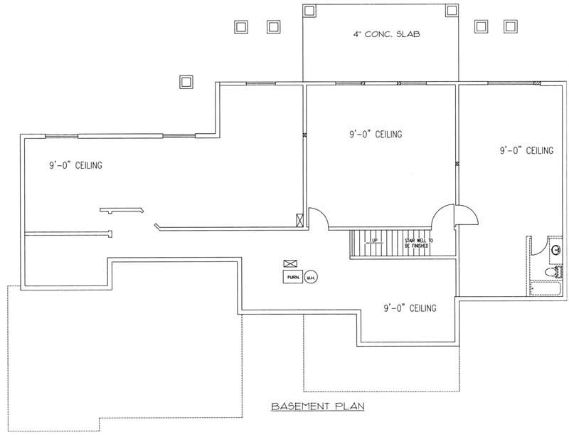
BASEMENT FLOOR PLAN
BASEMENT FLOOR PLAN
Plan Collection

Can I modify this plan?

Yes! This plan can be customized—contact us for a free quote.

Additional Notes from Designer

PLEASE NOTE! The CAD - Unlimited package is NOT an unlimited license - it is a license to build up to 5 homes.

House Plan Description

With standard frame construction, this home has many great exterior features including a covered entry porch, and a covered rear deck. Inside, the Foyer is vaulted and leads into the den/office, which is also vaulted. The master suite boasts a large master bathroom with spa tub and walk-in shower. To add an even greater sense of space, the Great Room is also vaulted. Past the bay-windowed dining room and kitchen are guest bedrooms and access to the 3-car garage.

Home Details

Summary
Plan #:132-1378
Starting at:$1245.00
Floors:1
Bedrooms:3
Full Baths:3
Half Baths:0
Garage:
Square Footage
Heated Area:2709 Sq. Ft.
First Floor:2709 Sq. Ft.
Unheated Area:
Basement:2619 Sq. Ft.
Garage:826 Sq. Ft.
Dimensions
Width:89' 8''
Ridge Height:20'9' 0''
Architectural Styles
Exterior Wall Material
Vinyl SidingRock/Stone
Roofing Type
Hip
Roofing Material
Metal
Roof Pitch
6/12
Ceiling Height
9 Foot Ceiling
Special Feature
Dining RoomGuest RoomHome OfficeMain Level LaundrySplit BathroomDenVaulted Ceilings
Garage Type
Attached GarageFront Entry
Exterior Wall Framing
2x6
Building Lot Type
View Lot
Porches and Exterior Features
Covered Front PorchCovered Rear PorchSundeck
Master Suite Features
Main Floor MasterMaster BathroomWalk In Closet

What’s Included

Most plan sets include the following:

icon text-secondary-400 includedExterior elevations: shows the home on all four sides, calls out exterior finishes, rooflines, window and door locations.

icon text-secondary-400 includedFloor plans: includes interior and exterior dimensions, window/door schedule, wall framing details.

icon text-secondary-400 includedFoundation plan: shows footing, stem wall, and slab placement, including all connection details.

icon text-secondary-400 includedFloor and roof framing plans show truss/rafter placements, including all beams/connection details.

icon text-secondary-400 includedCross-sections: cut-through view of the structure from roof to foundation, shows framing, plate heights, insulation, etc.

icon text-secondary-400 includedElectrical layout

icon text-secondary-400 includedGeneral notes/details to cover the entirety of the project

What’s Not Included

These items are  NOT included:

icon text-secondary-400 includedArchitectural or Engineering Stamp - handled locally if required.

icon text-secondary-400 includedSite Plan - handled locally when required.

icon text-secondary-400 includedMechanical Drawings (location of heating and air equipment and ductwork) - your subcontractors handle this.

icon text-secondary-400 includedPlumbing Drawings (drawings showing the actual plumbing pipe sizes and locations) - your subcontractors handle this.

icon text-secondary-400 includedEnergy calculations - handled locally when required.

Related House Plans

Plan Collection
Plan Collection
Plan Collection
Plan#126-1834
Starting at$2230
2808
Sq Ft
1
Story
3
Bed
3
Bath
1
Car
Plan Collection
Plan Collection
Plan Collection
Plan#132-1521
Starting at$1245
2380
Sq Ft
1
Story
3
Bed
3
Bath
2
Car
Plan Collection
Plan Collection
Plan Collection
Plan#132-1246
Starting at$1245
3202
Sq Ft
1
Story
3
Bed
3
Bath
3
Car
View All

Other Plans By This Designer

Plan Collection
Plan Collection
Plan Collection
Plan#132-1697
Starting at$1145
1176
Sq Ft
1
Story
2
Bed
2
Bath
0
Car
Plan Collection
Plan Collection
Plan Collection
Plan#132-1313
Starting at$1245
2281
Sq Ft
2
Story
3
Bed
2.5
Bath
0
Car
Plan Collection
Plan Collection
Plan Collection
Plan#132-1107
Starting at$995
689
Sq Ft
1
Story
1
Bed
1
Bath
0
Car